Id 157572

Большой Тишинский переулок, 30 / 91 кв. м. - Продажа / Помещение свободного назначения

адрес Москва, Большой Тишинский переулок, 30

Арендный бизнес
Многофункциональный
С отдельным входом
Торговая

Окупаемость: 13.4 лет

Доходность:7.45%

120 000 000 RUB | за все

(за 1 м2 — 1 318 681 RUB)

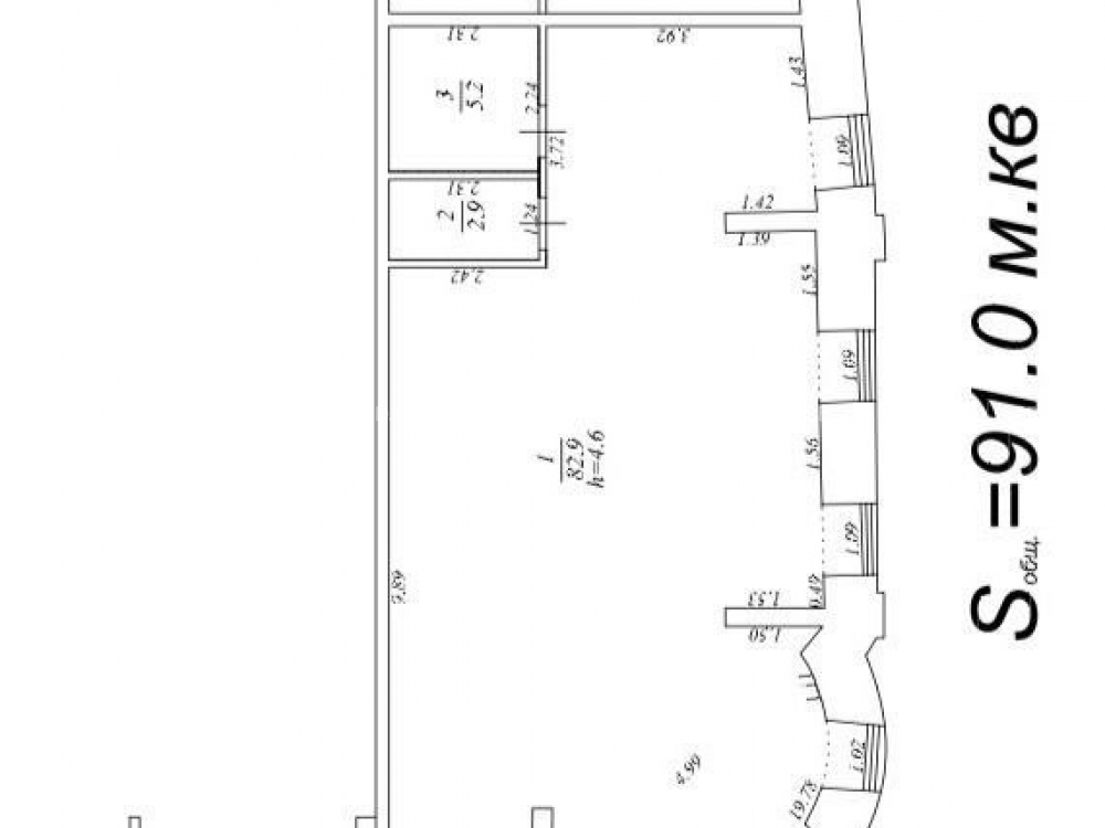
площадь 91.0 м2

QR код Qr код

Продажа помещения свободного назначения с сетевым арендатором в ЖК Фантастик Хаус по адресу: Большой Тишинский переулок, 30 Пресненский район.
Объект расположен в престижном районе Москвы в шаговой доступности от станций метро Белорусская (14 минут пешком) и Краснопресненская (14 минут пешком). ЖК Фантастик Хаус находится в деловом кластере с высокой концентрацией бизнес-центров, жилых резиденций и гостиниц, что обеспечивает постоянный высокий пешеходный трафик. Рядом с жилым комплексом расположены ключевые остановки общественного транспорта. В непосредственной близости находятся деловые центры "Москва-Сити", башня "Империя", "Серебряный город", ТРЦ "Афимолл Сити", бутики на Тверской улице, супермаркеты "Азбука Вкуса" и "ВкусВилл", многочисленные рестораны, фитнес-центры и салоны красоты.

Технические характеристики:
Общая площадь: 91 кв. м., с действующим арендатором – салоном красоты. Помещение расположено на 1 этаже, имеет 2 отдельных входа и витринные окна. Высота потолков составляет 4 м. Коммуникации: электрическая мощность – по запросу, приточная вентиляция, центральное кондиционирование и отопление. Выполнена офисная отделка.

Коммерческие условия:
Стоимость объекта: 120 000 000 рублей (УСН).
Стоимость за 1 кв. м.: 1 318 682 рубля.
Арендатора: Моне
МАП: 750 000 рублей.
ГАП: 9 000 000 рублей.
ДДА до 2027 года
Тип договора: Прямая продажа.

Технические характеристики

Тип здания: Арендный бизнес,Многофункциональный,С отдельным входом,Торговая

Общая площадь: 91  м2

Этаж: 1

Всего этажей: 5

Электрическая мощность: по запросу

Высота потолков: 4 м

Парковка: наземная

Коммерческие условия

Цена за все: 120 000 000 RUB

ФОРМА ВЛАДЕНИЯ: по запросу

Общий МАП: 750 000 RUB (данный МАП является минимальным, при оптимизации арендаторов арендный поток можно значительно увеличить)

Общий ГАП: 9 000 000 RUB

Окупаемость: 13.4 лет

Доходность: 7.45%

карта

Расположение

Адрес: Москва, Большой Тишинский переулок, 30

Округ: Центральный административный округ

Близость метро: Белорусская,Краснопресненская

Транспортная доступность: в пешей доступности

Окружение

Торговое окружение: развитое торговое окружение

Адрес:

Москва, Большой Тишинский переулок, 30

Округ:

Центральный административный округ

Близость метро:

Белорусская,Краснопресненская

Транспортная доступность:

в пешей доступности

карта

Торговое окружение:

развитое торговое окружение

Общая площадь:

91  м2

Этаж:

1

Всего этажей:

5

Тип:

Арендный бизнес,Многофункциональный,С отдельным входом,Торговая

Электрическая мощность:

по запросу

Высота потолков:

4 м

Парковка:

наземная

ФОРМА ВЛАДЕНИЯ:

по запросу

Цена за все:

120 000 000 RUB

Общий МАП: 750 000

(данный МАП является минимальным, при оптимизации арендаторов арендный поток можно значительно увеличить)

Общий ГАП:

9 000 000

Окупаемость:

13.4 лет

Доходность:

7.45%

Планировка

Степанов Анатолий

Ваш брокер по работе с клиентами

Найдите лучшее место
для жизни, бизнеса, инвестиций

Оставьте свои контакты — с вами свяжется руководитель отдела для презентации нужного вам объекта

Похожие объекты