Id 157596

Москва, Измайловский Проезд, 9к2 / 210 м2 / Аренда торгового помещения

адрес Москва, Измайловский проезд, 9к2

Многофункциональный
С отдельным входом
Склад

400 000 RUB | в месяц

(за 1 м2 — 1 905 RUB)

площадь 210.0 м2

QR код Qr код

Аренда помещения свободного назначения / под даркстор по адресу Измайловский Проспект, 9к2.
Рядом жилая застройка, новый ЖК Измайловский, премиальный ЖК Виноградный.

Технические характеристики:
1 этаж 8-ми этажного жилого дома, пристроенная часть,
2 отдельных входа, зона погрузки/разгрузки,
Электрическая мощность: 70 кВт

Коммерческие условия:
Стоимость аренды в месяц: 400 000 рублей,
Стоимость аренды за м2 в год: 22 857 рублей.

Технические характеристики

Тип здания: Многофункциональный,С отдельным входом,Склад

Общая площадь: 210  м2

Этаж: 1

Всего этажей: 8

Электрическая мощность: 70 кВт

Высота потолков: -

Парковка: зона погрузки/разгрузки

Коммерческие условия

Цена в месяц: 400 000 RUB

ФОРМА ВЛАДЕНИЯ: -

карта

Расположение

Адрес: Москва, Измайловский проезд, 9к2

Округ: Восточный административный округ

Близость метро: Измайловская

Транспортная доступность: хорошая

Окружение

Торговое окружение: Рядом жилая застройка, новый ЖК Измайловский, премиальный ЖК Виноградный.

Адрес:

Москва, Измайловский проезд, 9к2

Округ:

Восточный административный округ

Близость метро:

Измайловская

Транспортная доступность:

хорошая

карта

Торговое окружение:

Рядом жилая застройка, новый ЖК Измайловский, премиальный ЖК Виноградный.

Общая площадь:

210  м2

Этаж:

1

Всего этажей:

8

Тип:

Многофункциональный,С отдельным входом,Склад

Электрическая мощность:

70 кВт

Высота потолков:

-

Парковка:

зона погрузки/разгрузки

ФОРМА ВЛАДЕНИЯ:

-

Цена в месяц:

400 000 RUB

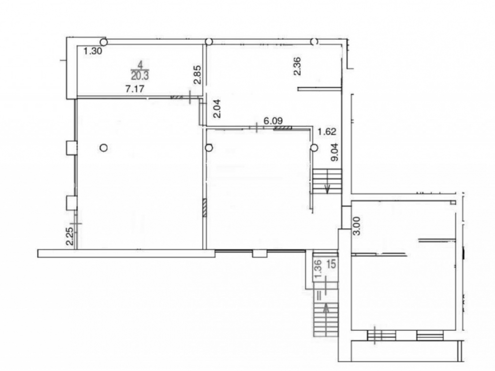
Планировка

Александра

Ваш брокер по работе с клиентами

Найдите лучшее место
для жизни, бизнеса, инвестиций

Оставьте свои контакты — с вами свяжется руководитель отдела для презентации нужного вам объекта

Похожие объекты