Id 157940

Москва, ЮЗАО, р-н Академический, ул. Дмитрия Ульянова, 10/1К1/ 194 кв.м./ продажа торгового помещения

адрес Москва, улица Дмитрия Ульянова, 10/1к1

С отдельным входом
Торговая
Склад

15 000 000 RUB | за все

(за 1 м2 — 77 320 RUB)

площадь 194.0 м2

QR код Qr код

Предлагается в продажу торговое помещение по адресу: г. Москва, ул. Дмитрия Ульянова, 10/1К1. От метро Академическая 5 мин. пешком. Первая линия, плотная жилая застройка, активный пешеходный трафик, рядом автобусная остановка. Высокий спрос на аренду.

Торговое окружение: кофейня French Bakery, Чебуреки, Милти, магазин цветов Бриндиль и другие сетевые арендаторы.

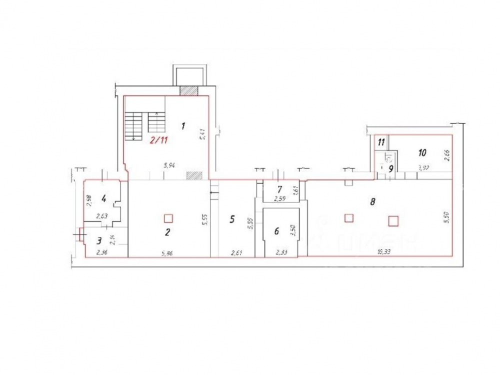
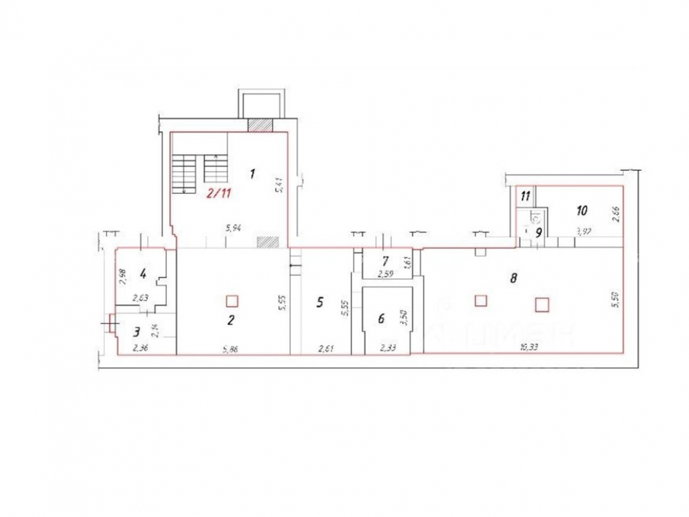
Технические характеристики: общая площадь 194 кв.м. • -1 этаж жилого 4 этажного жилого дома • электроэнергия 20 кВт (возможно увеличение) • высота потолков 2,4 м. • отдельный вход со двора • мокрые точки • без отделки.

Коммерческие условия:
• Стоимость 15 000 000 рублей
• Стоимость кв.м. 77 320 рублей
• Потенциальный МАП 200 000 рублей/ ГАП 2 400 000 рублей
• Потенциальный срок окупаемости 6 лет
• Продажа по ДКПн от физ. лица

Технические характеристики

Тип здания: С отдельным входом,Торговая,Склад

Общая площадь: 194  м2

Этаж: -1

Всего этажей: 4

Электрическая мощность: 20 кВт

Высота потолков: 2,4

Парковка: наземная

Коммерческие условия

Цена за все: 15 000 000 RUB

ФОРМА ВЛАДЕНИЯ: ДКП

карта

Расположение

Адрес: Москва, улица Дмитрия Ульянова, 10/1к1

Округ: Юго-Западный административный округ

Близость метро: Академическая

Транспортная доступность: метро Академическая

Окружение

Торговое окружение: офейня French Bakery, Чебуреки, Милти, магазин цветов Бриндиль и другие сетевые арендаторы

Адрес:

Москва, улица Дмитрия Ульянова, 10/1к1

Округ:

Юго-Западный административный округ

Близость метро:

Академическая

Транспортная доступность:

метро Академическая

карта

Торговое окружение:

офейня French Bakery, Чебуреки, Милти, магазин цветов Бриндиль и другие сетевые арендаторы

Общая площадь:

194  м2

Этаж:

-1

Всего этажей:

4

Тип:

С отдельным входом,Торговая,Склад

Электрическая мощность:

20 кВт

Высота потолков:

2,4

Парковка:

наземная

ФОРМА ВЛАДЕНИЯ:

ДКП

Цена за все:

15 000 000 RUB

Планировка

Надежда Лежнина

Ваш брокер по работе с клиентами

Найдите лучшее место
для жизни, бизнеса, инвестиций

Оставьте свои контакты — с вами свяжется руководитель отдела для презентации нужного вам объекта

Похожие объекты