Id 158225

Москва, ул. Озёрная, ЖК Левел Мичуринский, к11 - 43.9 кв.м / Продажа ПСН

адрес Москва, жилой комплекс Левел Мичуринский, к11_Озёрная

С отдельным входом
Торговая

38 177 773 RUB | за все

(за 1 м2 — 869 653 RUB)

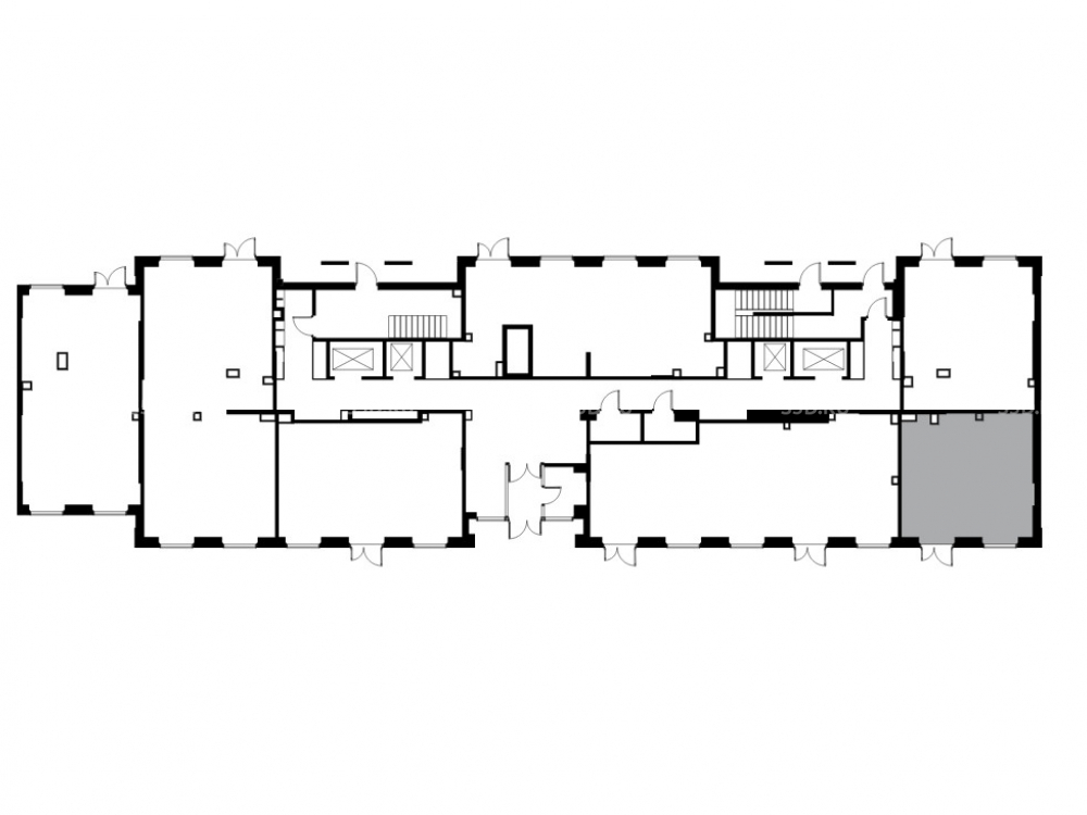
площадь 43.9 м2

QR код Qr код

Продажа торгового помещения в новом ЖК по адресу: район Очаково-Матвеевское, ЗАО, Москва, жилой комплекс Левел Мичуринский, к11 (ул. Озёрная)
Ближайшая станция метро Мичуринский проспект - 15 мин. пешком.
7 мин. на авто до МКАД. 10 мин. на авто до Третьего транспортного кольца. 16 мин. на авто до Садового кольца.
Комплекс состоит из 13 корпусов, максимальной этажностью 54 этажа, на 3 807 квартир и 8 164 жителей.
В пешей доступности расположены сады, школы, поликлиники, медцентры, фитнес клубы и парк.
Торговое окружение развивающееся. Жилой район с развитой инфраструктурой - на противоположной стороне ул.Озерная. Рядом - ЖК с сетевыми арендаторами: Бристоль, ПВЗ, маникюрные салоны, барбер-шоп, кафе.

Выдача ключей: III кв. 2027 г.

Технические характеристики:
Площадь - 43.9 кв.м, 1-й этаж жилого дома этажностью 24 этажей, отдельный вход на первую линию, витринное остекление. Высота потолков - 5.9 м, электрическая мощность -0.2кВт на м2(с возможностью увеличения). Современные инженерные системы. Выводы ХВС/ГВС, канализация. Помещение в бетоне. Подземный паркинг.

Коммерческие условия:
Стоимость: 38 177 773 руб.
Стоимость за кв.м - 869 653 руб.
Форма продажи - ДДУ

Технические характеристики

Тип здания: С отдельным входом,Торговая

Общая площадь: 43.9  м2

Этаж: 1

Всего этажей: 24

Электрическая мощность: 0.2кВт/м2

Высота потолков: 5.9м

Парковка: открытая, общая

Коммерческие условия

Цена за все: 38 177 773 RUB

ФОРМА ВЛАДЕНИЯ: ДДУ

карта

Расположение

Адрес: Москва, жилой комплекс Левел Мичуринский, к11_Озёрная

Округ: Западный административный округ

Близость метро: Мичуринский проспект

Транспортная доступность: лижайшая станция метро Мичуринский проспект - 15 мин. пешком.

Окружение

Торговое окружение: --

Адрес:

Москва, жилой комплекс Левел Мичуринский, к11_Озёрная

Округ:

Западный административный округ

Близость метро:

Мичуринский проспект

Транспортная доступность:

лижайшая станция метро Мичуринский проспект - 15 мин. пешком.

карта

Торговое окружение:

--

Общая площадь:

43.9  м2

Этаж:

1

Всего этажей:

24

Тип:

С отдельным входом,Торговая

Электрическая мощность:

0.2кВт/м2

Высота потолков:

5.9м

Парковка:

открытая, общая

ФОРМА ВЛАДЕНИЯ:

ДДУ

Цена за все:

38 177 773 RUB

Планировка

Никифоров Андрей

Ваш брокер по работе с клиентами

Найдите лучшее место
для жизни, бизнеса, инвестиций

Оставьте свои контакты — с вами свяжется руководитель отдела для презентации нужного вам объекта

Похожие объекты