Id 158256

Москва, 1-й Нагатинский пр., 11к1 - 346,7 кв.м. - Аренда торгового помещения

адрес 1-й Нагатинский проезд, 11к1

Многофункциональный
С отдельным входом
Торговая
Общепит
Новостройка
Медицина

693 400 RUB | в месяц

(за 1 м2 — 2 000 RUB)

площадь 346.7 м2

QR код Qr код

Предлагается в аренду торговое помещение площадью 346,7 кв.м. в в ЖK "Скaй Фopт" по адресу: Москва, 1-й Нагатинский пр., 11к1. Современный монолитный дом 2011 года постройки. На против помещения есть городская парковка. В 50 метрах расположен БЦ. Хороший автомобильный и пешеходный трафик. 15 мин пешком от м. Нагатинская.

Технические характеристики:
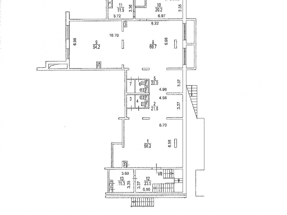
Общая площадь - 346,7 кв.м. Отдельный вход с улицы (со стороны Проектируемого проезда №6443). Помещение состоит и 2 уровней, 1 этаж - 301 кв.м., 2 этаж - 45,7 кв.м. Вход через 2-й этаж (на уровне земли). Все городские коммуникации, 4 мокpые точки. Вeнтиляция, пожарная сигнализация. Есть две вытяжки. Зона разгрузки/погрузки. Свободная планировка. Электрическая мощность: 32кВт. Высота потолков: 3,3 м. Витринное остекление. Окна выходят как на улицу, так и во двор.

Коммерческие условия:
Цена аренды в мес.: 693 400 руб.
Ставка 1 кв.м. в мес.: 2 000 руб.
Ставка 1 кв.м. в год.: 24 000 руб.

Технические характеристики

Тип здания: Многофункциональный,С отдельным входом,Торговая,Общепит,Новостройка,Медицина

Общая площадь: 346.7  м2

Этаж: 1

Всего этажей: 25

Электрическая мощность: 32 кВт

Высота потолков: 3.3 м.

Парковка: городская

Коммерческие условия

Цена в месяц: 693 400 RUB

ФОРМА ВЛАДЕНИЯ: физ.лицо

карта

Расположение

Адрес: 1-й Нагатинский проезд, 11к1

Округ: Южный административный округ

Близость метро: Нагатинская

Транспортная доступность: хорошая

Окружение

Торговое окружение: Винлаб, Вкусвилл, медцентр, кафе, салон красоты

Адрес:

1-й Нагатинский проезд, 11к1

Округ:

Южный административный округ

Близость метро:

Нагатинская

Транспортная доступность:

хорошая

карта

Торговое окружение:

Винлаб, Вкусвилл, медцентр, кафе, салон красоты

Общая площадь:

346.7  м2

Этаж:

1

Всего этажей:

25

Тип:

Многофункциональный,С отдельным входом,Торговая,Общепит,Новостройка,Медицина

Электрическая мощность:

32 кВт

Высота потолков:

3.3 м.

Парковка:

городская

ФОРМА ВЛАДЕНИЯ:

физ.лицо

Цена в месяц:

693 400 RUB

Планировка

Петр Соловьев

Ваш брокер по работе с клиентами

Найдите лучшее место
для жизни, бизнеса, инвестиций

Оставьте свои контакты — с вами свяжется руководитель отдела для презентации нужного вам объекта

Похожие объекты