Id 158691

г .Москва, 1-я ул. Бухвостова, 2к3 - 90.6 м². / Продажа ПСН.

адрес Москва, 1-я улица Бухвостова, 2к3

Многофункциональный
С отдельным входом
Торговая
Новостройка

75 681 012 RUB | за все

(за 1 м2 — 840 900 RUB)

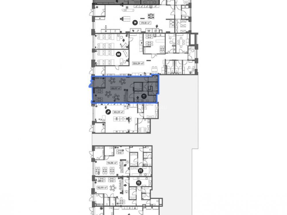
площадь 90.0 м2

QR код Qr код

Дом сдан.Предлагается к продаже помещение г .Москва, 1-я ул. Бухвостова, ЖК Преображенская площадь, 102.5 м². Инвестиционно привлекательный объект. Прекрасная локация. ЖК премиум-класса. Этажность от 10-17 этажей, верхние этажи открывают прекрасные виды на панораму города.
Ближайшая станции: м. "Преображенская площадь" - 3 минуты пешком.
До Садового кольца можно доехать за 8 минут, до ТТК - за 7 минут. До центра - 25 минут езды на авто.

Торговое окружение:
Озон, Строймаркет.

Технические характеристики:
1-й этаж ,
-высота потолков - 4,18 м.,
-электрическая мощность - 18 кВт.
- Витринное остекление,
-открытая планировка,
-возможность размещения вывески;
- нагрузка на пол - 400 кг/м2;
- Вентиляция - общедомовая.

Коммерческие условия:
Стоимость продажи -
75 681 012 рублей.
Стоимость за м2 - 835 331 рублей.
Продажа ДКП
Цена указана при 100 % оплате.

Технические характеристики

Тип здания: Многофункциональный,С отдельным входом,Торговая,Новостройка

Общая площадь: 90  м2

Этаж: 1

Всего этажей: 17

Электрическая мощность: 18.12 кВт.

Высота потолков: 4,18 м

Парковка: -

Коммерческие условия

Цена за все: 75 681 012 RUB

ФОРМА ВЛАДЕНИЯ: -

карта

Расположение

Адрес: Москва, 1-я улица Бухвостова, 2к3

Округ: Восточный административный округ

Близость метро: Преображенская площадь

Транспортная доступность: м.Преображенская площадь 3 минуты пешком.

Окружение

Торговое окружение: Озон, Строймаркет.

Адрес:

Москва, 1-я улица Бухвостова, 2к3

Округ:

Восточный административный округ

Близость метро:

Преображенская площадь

Транспортная доступность:

м.Преображенская площадь 3 минуты пешком.

карта

Торговое окружение:

Озон, Строймаркет.

Общая площадь:

90  м2

Этаж:

1

Всего этажей:

17

Тип:

Многофункциональный,С отдельным входом,Торговая,Новостройка

Электрическая мощность:

18.12 кВт.

Высота потолков:

4,18 м

Парковка:

-

ФОРМА ВЛАДЕНИЯ:

-

Цена за все:

75 681 012 RUB

Планировка

Шаклеина Юлия

Ваш брокер по работе с клиентами

Найдите лучшее место
для жизни, бизнеса, инвестиций

Оставьте свои контакты — с вами свяжется руководитель отдела для презентации нужного вам объекта

Похожие объекты