Id 158726

Тверская улица 22 - 2000 м2 / Аренда торгового помещения

адрес Москва, Тверская улица, 22

С отдельным входом
Торговая

20 000 000 RUB | в месяц

(за 1 м2 — 10 000 RUB)

площадь 2 000.0 м2

QR код Qr код

Предлагается в аренду торговое помещение в бизнес-центре "Саммит", по адресу: г. Москва, ЦАО, Тверская улица 22. Превосходная транспортная доступность к Ленинградскому проспекту, Садовому Кольцу и ТТК. В 3-х минутах пешком находится станция метро Тверская. Отличные рекламные возможности.


Технические характеристики:
1-й и 2-й этажи бизнес-центра класса А. Общая площадь - 2000 м2. Отдельный вход с Тверской улицы. Открытая смешанная планировка. Панорамное остекление. Высота потолков 4.3 м. Типовой ремонт. Возможность размещения вывески. Все центральные коммуникации. Эл. мощность 60 Вт на м2.


Коммерческие условия:
Ставка аренды в месяц - 20 000 000 руб. (включая НДС.)
Ставка за м2 в месяц - 10 000 руб.
Ставка аренды за м2 в год - 120 000 руб.
Предоставляются арендные каникулы.
Гарантийный платеж в размере 2 МАП.
Эксплуатационные платежи включены в ставку аренды.
Переменная арендная плата оплачивается отдельно по расчетам фактического потребления.
Прямой договор аренды.
Ежегодная индексация 10%.
Освобождение с 01.07.26 года.

Технические характеристики

Тип здания: С отдельным входом,Торговая

Общая площадь: 2000  м2

Этаж: 1

Всего этажей: 10

Электрическая мощность: 60 Вт на м2.

Высота потолков: 4.3 м.

Парковка: подземный паркинг на 411 м/м.

Коммерческие условия

Цена в месяц: 20 000 000 RUB

ФОРМА ВЛАДЕНИЯ: Юр. лицо.

карта

Расположение

Адрес: Москва, Тверская улица, 22

Округ: Центральный административный округ

Близость метро: Маяковская,Тверская

Транспортная доступность: Станция метро Тверская - 3 минуты пешком.

Окружение

Торговое окружение: отделение Сбербанк, супермаркет Бахетле, Кофемания, гостиница Интерконтиненталь.

Адрес:

Москва, Тверская улица, 22

Округ:

Центральный административный округ

Близость метро:

Маяковская,Тверская

Транспортная доступность:

Станция метро Тверская - 3 минуты пешком.

карта

Торговое окружение:

отделение Сбербанк, супермаркет Бахетле, Кофемания, гостиница Интерконтиненталь.

Общая площадь:

2000  м2

Этаж:

1

Всего этажей:

10

Тип:

С отдельным входом,Торговая

Электрическая мощность:

60 Вт на м2.

Высота потолков:

4.3 м.

Парковка:

подземный паркинг на 411 м/м.

ФОРМА ВЛАДЕНИЯ:

Юр. лицо.

Цена в месяц:

20 000 000 RUB

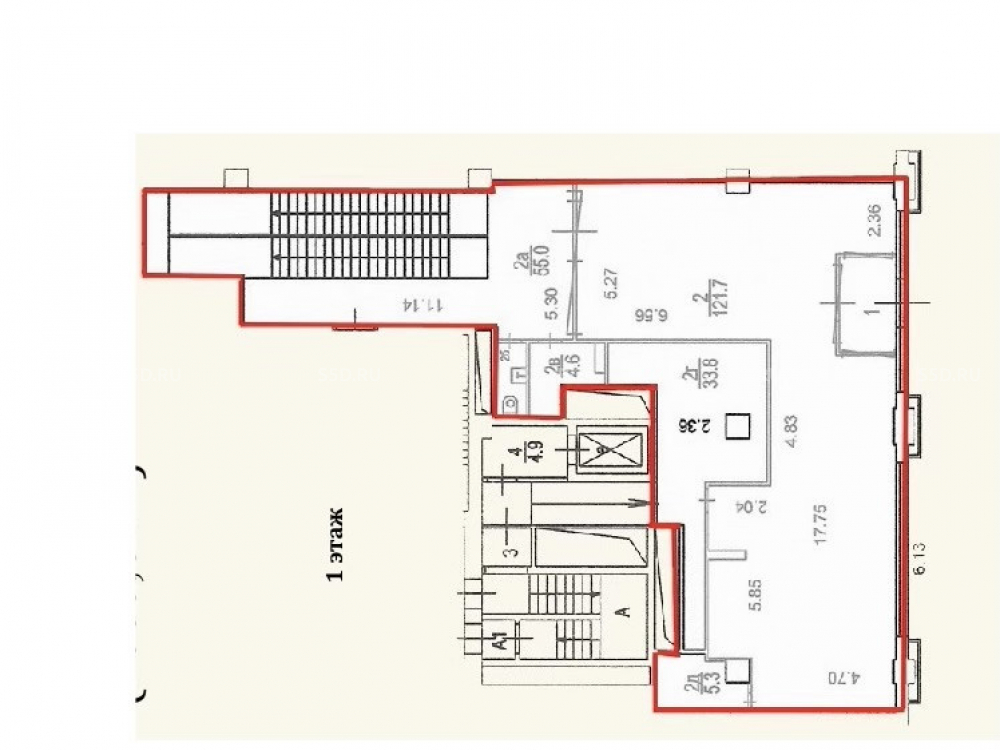
Планировка

Лев

Ваш брокер по работе с клиентами

Найдите лучшее место
для жизни, бизнеса, инвестиций

Оставьте свои контакты — с вами свяжется руководитель отдела для презентации нужного вам объекта

Похожие объекты