Id 158927

Москва, переулок Больничный, 2 - 55,5 кв. м. - Продажа ПСН

адрес Москва, Больничный переулок, 2

Торговая

20 000 000 RUB | за все

(за 1 м2 — 363 636 RUB)

площадь 55.0 м2

QR код Qr код

Помещение свободного назначения по адресу: Москва, переулок Больничный, д. 2.
Район отличается высокой плотностью станций метрополитена. В нескольких минутах ходьбы находятся станции «Проспект Мира»  и «Достоевская» . Неподалеку расположена станция «Проспект Мира» МЦК, что обеспечивает быстрые пересадки на ключевые деловые и транспортные узлы города. Выход на центральные магистрали: Отличный выезд на Садовое кольцо, Проспект Мира и другие основные дороги, связывающие с центром и другими районами.

По соседству расположена стоматология. Соседнее здание школа. Напротив расположено посольство Ирана.
Престижный и развитый район в центре Москвы
Высокий деловой и человеческий трафик.

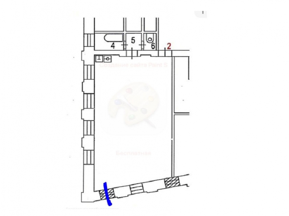
Технические характеристики: угловое помещение площадью 55, 5 кв.м. Расположено на 1-м этаже 3-х этажного жилого дома, потолки 4,3 м., электроэнергия 12 кВт (есть техническая возможность для увеличения), мокрая точка. Помещение без отделки. Есть парковочное место во дворе.

Коммерческие условия:
стоимость объекта - 20 000 000 рублей
стоимость объекта за м2 - 360 360 рублей

Собственность - Физ лицо

Технические характеристики

Тип здания: Торговая

Общая площадь: 55  м2

Этаж: 1

Всего этажей: 4

Электрическая мощность: электроэнергия 12 кВт (есть техническая возможность для увеличения),

Высота потолков: 4,3 м.,

Парковка: есть

Коммерческие условия

Цена за все: 20 000 000 RUB

ФОРМА ВЛАДЕНИЯ: Физ лицо

карта

Расположение

Адрес: Москва, Больничный переулок, 2

Округ: Центральный административный округ

Близость метро: Достоевская,Проспект Мира

Транспортная доступность: Отличная. В нескольких минутах ходьбы находятся станции «Проспект Мира»  и «Достоевская» .

Окружение

Торговое окружение: По соседству расположена стоматология. Соседнее здание школа. Напротив расположено посольство Ирана.

Адрес:

Москва, Больничный переулок, 2

Округ:

Центральный административный округ

Близость метро:

Достоевская,Проспект Мира

Транспортная доступность:

Отличная. В нескольких минутах ходьбы находятся станции «Проспект Мира»  и «Достоевская» .

карта

Торговое окружение:

По соседству расположена стоматология. Соседнее здание школа. Напротив расположено посольство Ирана.

Общая площадь:

55  м2

Этаж:

1

Всего этажей:

4

Тип:

Торговая

Электрическая мощность:

электроэнергия 12 кВт (есть техническая возможность для увеличения),

Высота потолков:

4,3 м.,

Парковка:

есть

ФОРМА ВЛАДЕНИЯ:

Физ лицо

Цена за все:

20 000 000 RUB

Планировка

Наталья

Ваш брокер по работе с клиентами

Найдите лучшее место
для жизни, бизнеса, инвестиций

Оставьте свои контакты — с вами свяжется руководитель отдела для презентации нужного вам объекта

Похожие объекты