Id 159218

г. Москва, ул. Краснобогатырская, ЖК Большая семерка/ 92.1 м²./ Продажа ПСН.

адрес Москва, Краснобогатырская улица, 40

Многофункциональный
С отдельным входом
Новостройка

32 235 000 RUB | за все

(за 1 м2 — 350 380 RUB)

площадь 92.0 м2

QR код Qr код

Предлагается в продажу помещение свободного назначения, по адресу г. Москва, ул. Краснобогатырская, ЖК Большая семерка , 92.1 м². Жилой комплекс представлен 7 корпусами высотой 17 этажей, объединенными общим стилобатом. Здания возведены по кирпично-монолитной технологии, фасады выполнены в светлых оттенках с использованием керамогранитной плитки и натурального камня на нижних уровнях. Проект расположен на берегу реки Яуза, в районе Богородское, Восточного АО. В окружении находятся парк Сокольники, Лосиный остров и лесопарк Измайлово. Район отличается развитой инфраструктурой: школы и детские сады, поликлиники, спорткомплексы и фитнес-клубы, магазины, аптеки, салоны красоты и пункты выдачи. В радиусе 500 м доступны автобусные и трамвайные остановки. До метро Преображенская площадь можно добраться за 20 минут пешком.

Торговое окружение:
Пятерочка, Папа Джонс.

Технические характеристики:
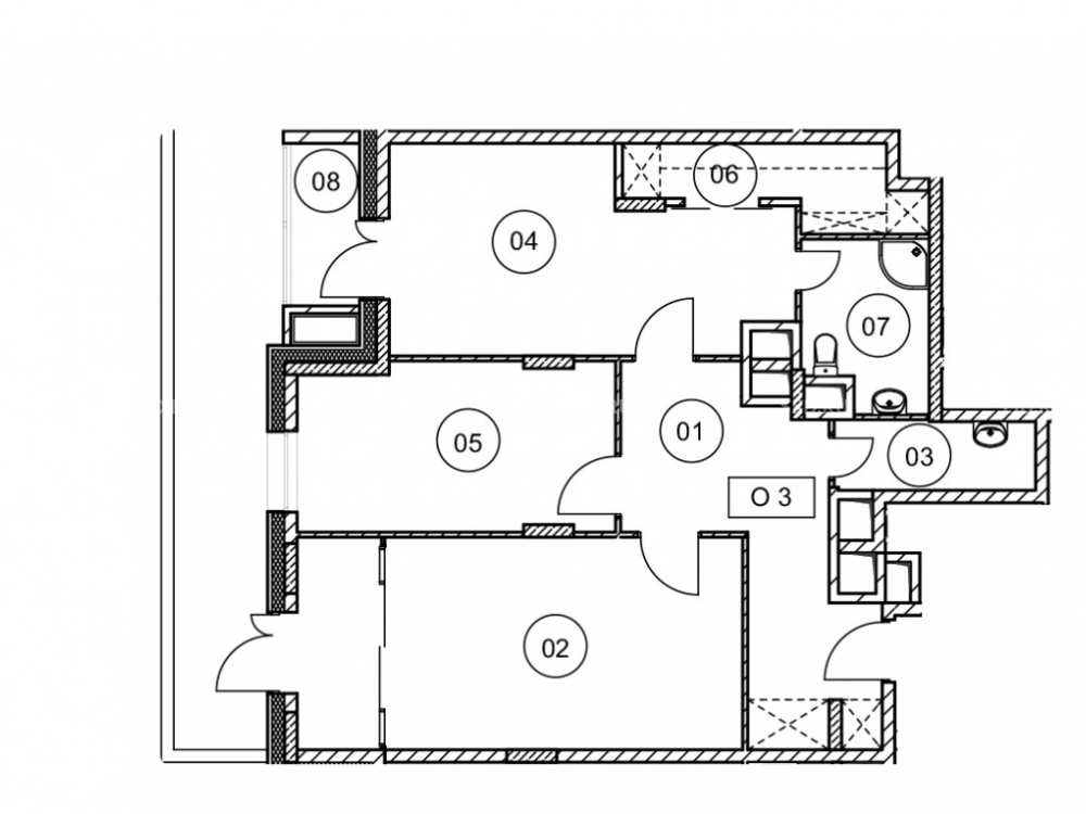
Площадь 92.1 м²., отдельный вход, высота потолков 3,7м., витринное остекление, без отделки.

Коммерческие условия:
Стоимость за все - 32 235 000 руб.
Стоимость за 1 кв.м. - 350 000 руб.
Продажа от юр лица (с НДС 22%)

Технические характеристики

Тип здания: Многофункциональный,С отдельным входом,Новостройка

Общая площадь: 92  м2

Этаж: 1

Всего этажей: 17

Электрическая мощность: -

Высота потолков: 3,7 м.

Парковка: на улице

Коммерческие условия

Цена за все: 32 235 000 RUB

ФОРМА ВЛАДЕНИЯ: -

карта

Расположение

Адрес: Москва, Краснобогатырская улица, 40

Округ: Северо-Восточный административный округ

Близость метро: Преображенская площадь

Транспортная доступность: До метро Преображенская площадь можно добраться за 20 минут пешком.

Окружение

Торговое окружение: Пятерочка, Папа Джонс.

Адрес:

Москва, Краснобогатырская улица, 40

Округ:

Северо-Восточный административный округ

Близость метро:

Преображенская площадь

Транспортная доступность:

До метро Преображенская площадь можно добраться за 20 минут пешком.

карта

Торговое окружение:

Пятерочка, Папа Джонс.

Общая площадь:

92  м2

Этаж:

1

Всего этажей:

17

Тип:

Многофункциональный,С отдельным входом,Новостройка

Электрическая мощность:

-

Высота потолков:

3,7 м.

Парковка:

на улице

ФОРМА ВЛАДЕНИЯ:

-

Цена за все:

32 235 000 RUB

Планировка

Шаклеина Юлия

Ваш брокер по работе с клиентами

Найдите лучшее место
для жизни, бизнеса, инвестиций

Оставьте свои контакты — с вами свяжется руководитель отдела для презентации нужного вам объекта

Похожие объекты