Id 159410

ЖК Shagal ул. Ильи Чашника /84.2кв.м /Продажа ПСН

адрес Москва, 3-я очередь, к2.3

С отдельным входом
Торговая
Офис
Общепит

50 696 833 RUB | за все

(за 1 м2 — 602 100 RUB)

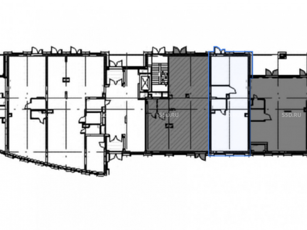
площадь 84.2 м2

QR код Qr код

Продажа помещения свободного назначения в ЖК бизнес класса Shagal по адресу: г.Москва, ул Ильи Чашник корпус 3 Этап 2. Помещение площадью 84.2м2. Проектом предусмотрено благоустройство набережной и создание 4-километровой парковой зоны и первого в столице водного парка, что дает дополнительный трафик посетителей. Комплекс расположен вдоль Москвы-реки и набережной Марка Шагала. Прямой выезд на ТТК ,ближайшие станции метро — «ЗИЛ» и «Технопарк» 20 минут пешком.
Сдача 2 кв. 2028
Технические характеристики:
- Помещение площадью 84.2 кв.м на 1-м этаже 5-этажного жилого дома,
- Отдельный вход,
- высота потолков - 4.5 м
- электрическая мощность - 16.22 кВ.
- Современные инженерные системы.
- Помещение в бетоне.

Транспортная доступность:
- «ЗИЛ» и «Технопарк» 20 минут пешком

Коммерческие условия:
Стоимость помещения- 50 696 833 рублей
Стоимость 1 м2- 602 100 рублей

Рассрочка при ПВ 30% с ежемесячными платежами по 200 000 р.

Технические характеристики

Тип здания: С отдельным входом,Торговая,Офис,Общепит

Общая площадь: 84.2  м2

Этаж: 1

Всего этажей: 5

Электрическая мощность: 16.3

Высота потолков: 4.5

Парковка: на улице

Коммерческие условия

Цена за все: 50 696 833 RUB

ФОРМА ВЛАДЕНИЯ: ДДУ

карта

Расположение

Адрес: Москва, 3-я очередь, к2.3

Округ: Юго-Восточный административный округ

Близость метро: ЗИЛ,Технопарк

Транспортная доступность: «ЗИЛ» и «Технопарк» 20 мин.

Окружение

Торговое окружение: -

Адрес:

Москва, 3-я очередь, к2.3

Округ:

Юго-Восточный административный округ

Близость метро:

ЗИЛ,Технопарк

Транспортная доступность:

«ЗИЛ» и «Технопарк» 20 мин.

карта

Торговое окружение:

-

Общая площадь:

84.2  м2

Этаж:

1

Всего этажей:

5

Тип:

С отдельным входом,Торговая,Офис,Общепит

Электрическая мощность:

16.3

Высота потолков:

4.5

Парковка:

на улице

ФОРМА ВЛАДЕНИЯ:

ДДУ

Цена за все:

50 696 833 RUB

Планировка

Олеся Шайхисламова

Ваш брокер по работе с клиентами

Найдите лучшее место
для жизни, бизнеса, инвестиций

Оставьте свои контакты — с вами свяжется руководитель отдела для презентации нужного вам объекта

Похожие объекты