Id 159802

Москва, ул. Волынская д. 10 к2 - 197,6 кв.м./Аренда ПСН

адрес Москва, Волынская улица, 10к2

Многофункциональный
Особняк/здание
С отдельным входом
Торговая
Склад

350 000 RUB | в месяц

(за 1 м2 — 1 777 RUB)

площадь 197.0 м2

QR код Qr код

Аренда помещения, расположенного по адресу: г. Москва, ​ЗАО, Солнцевский район, ул. Волынская д. 10 к.2, ближайшая станция метро "Солнцево" находится в 15 минутах пешком. Вторая линия домов ул. Авиаторов и Солнцевского проспекта. Объект расположен в окружении крупного жилого массива с плотной многоэтажной застройкой района Солнцево с развитой инфраструктурой, чем обеспечивается высокий пешеходный трафик. Численность жильцов в близлежащих домах (радиус 500 метров) - 4132 квартир.
В непосредственной близости находится остановка наземного транспорта. Высокий рекламный потенциал, есть место для размещения рекламной вывески на фасаде. Рядом находятся административные и образовательные учреждения. Соседние арендаторы: Пятерочка, аптека Планета Здоровья, Гемотест, кафе "Много лосося" и т.д.

Технические характеристики:
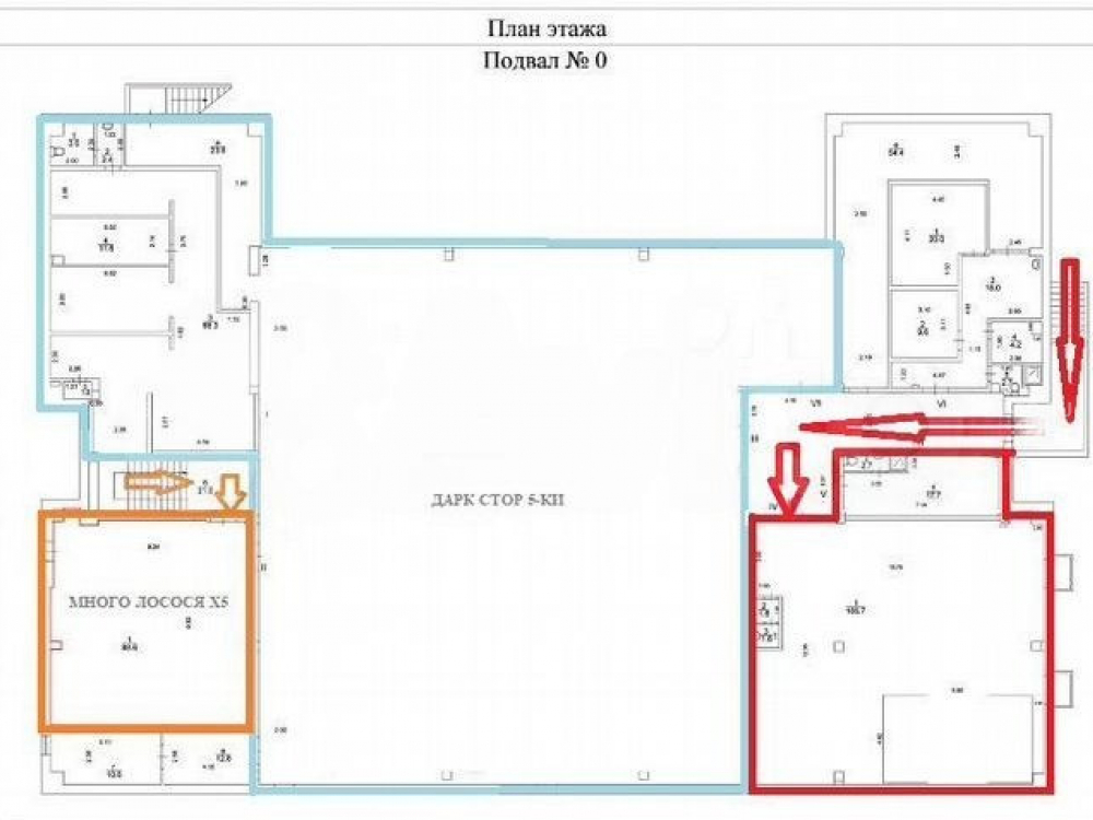
Площадь помещения 197,6 м2. Подвал. Отдельный вход. Выделенная электрическая мощность 25 кВт. Возможно увеличение. Центральные коммуникации. Высота потолков 2,95 м. Место под рекламные конструкции. Правильная форма помещения.

Коммерческие условия:
Стоимость в месяц - 350 000 рублей;
Стоимость в месяц за 1 кв.м. - 1 771 рублей;
Арендные каникулы. Коммунальные платежи оплачиваются отдельно по счетчикам.

Технические характеристики

Тип здания: Многофункциональный,Особняк/здание,С отдельным входом,Торговая,Склад

Общая площадь: 197  м2

Этаж: -1

Всего этажей: 3

Электрическая мощность: 25

Высота потолков: 2,95

Парковка: Имеется

Коммерческие условия

Цена в месяц: 350 000 RUB

ФОРМА ВЛАДЕНИЯ: Собственность

карта

Расположение

Адрес: Москва, Волынская улица, 10к2

Округ: Юго-Западный административный округ

Близость метро: Говорово,Солнцево

Транспортная доступность: развитое

Окружение

Торговое окружение: развитое

Адрес:

Москва, Волынская улица, 10к2

Округ:

Юго-Западный административный округ

Близость метро:

Говорово,Солнцево

Транспортная доступность:

развитое

карта

Торговое окружение:

развитое

Общая площадь:

197  м2

Этаж:

-1

Всего этажей:

3

Тип:

Многофункциональный,Особняк/здание,С отдельным входом,Торговая,Склад

Электрическая мощность:

25

Высота потолков:

2,95

Парковка:

Имеется

ФОРМА ВЛАДЕНИЯ:

Собственность

Цена в месяц:

350 000 RUB

Планировка

Егор Дмитриев

Ваш брокер по работе с клиентами

Найдите лучшее место
для жизни, бизнеса, инвестиций

Оставьте свои контакты — с вами свяжется руководитель отдела для презентации нужного вам объекта

Похожие объекты