Id 160405

ул. Героев Панфиловцев, 31 - 66,1 кв. м. - Продажа / ГАБ / Wildberries, Ozon

адрес Москва, улица Героев Панфиловцев, 31

Арендный бизнес
Многофункциональный
С отдельным входом

Окупаемость: 9.8 лет

Доходность:10.17%

25 950 000 RUB | за все

(за 1 м2 — 392 587 RUB)

площадь 66.1 м2

QR код Qr код

Продажа торгового помещения с действующим арендатором (Wildberries, Ozon).
Адрес: г. Москва, ул. Героев Панфиловцев, 31. Ближайшие станции метро: «Планерная» (16 мин. пешком), «Сходненская» (22 мин. пешком). Дом расположен на первой линии, остановки общественного транспорта — в 3–5 минутах пешком. Высокий пешеходный трафик. Новый монолитный дом полностью заселен. Соседи – Аптека, ВинЛаб.

Технические характеристики:
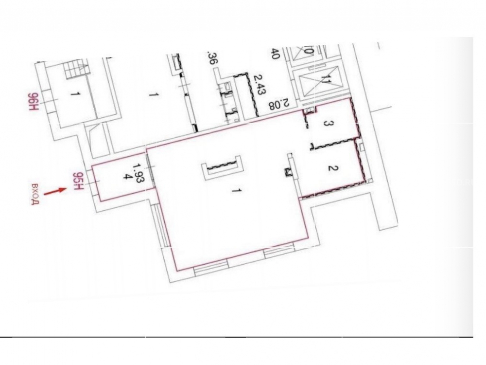
Общая площадь: 66,1 кв. м. (1 этаж). Вход отдельный со двора. Витринные окна по фасаду. Открытая планировка. Высота потолков: 4,5 м. Электрическая мощность: 15 кВт с возможностью увеличения. Центральное отопление. Пожарная сигнализация.
Парковка перед фасадом.

Коммерческие условия:
Стоимость объекта: 25 950 000 рублей.
Стоимость за 1 кв. м.: 387 313 рублей.
Арендатор — Wildberries и Ozon (один договор, два бизнеса).
ДА от 19.01.2026
Срок аренды: 11 месяцев с автоматической пролонгацией на 4 года.
Индексация: 5% ежегодно.
МAП: 220 000 рублей.
ГAП: 2 640 000 рублей.
Арендатор дополнительно оплачивает электроэнергию, водоснабжение, отопление, вывоз ТБО.
Окупаемость: 9 лет 10 месяцев.
Собственник — физическое лицо.

Технические характеристики

Тип здания: Арендный бизнес,Многофункциональный,С отдельным входом

Общая площадь: 66.1  м2

Этаж: 1

Всего этажей: 21

Электрическая мощность: 15 кВт с возможностью увеличения

Высота потолков: 4.5 м

Парковка: наземная перед фасадом

Коммерческие условия

Цена за все: 25 950 000 RUB

ФОРМА ВЛАДЕНИЯ: по запросу

Окупаемость: 9.8 лет

Доходность: 10.17%

карта

Расположение

Адрес: Москва, улица Героев Панфиловцев, 31

Близость метро: Планерная,Сходненская

Транспортная доступность: в пешей доступности

Окружение

Торговое окружение: развитая инфраструктура

Адрес:

Москва, улица Героев Панфиловцев, 31

Округ:

Близость метро:

Планерная,Сходненская

Транспортная доступность:

в пешей доступности

карта

Торговое окружение:

развитая инфраструктура

Общая площадь:

66.1  м2

Этаж:

1

Всего этажей:

21

Тип:

Арендный бизнес,Многофункциональный,С отдельным входом

Электрическая мощность:

15 кВт с возможностью увеличения

Высота потолков:

4.5 м

Парковка:

наземная перед фасадом

ФОРМА ВЛАДЕНИЯ:

по запросу

Цена за все:

25 950 000 RUB

Окупаемость:

9.8 лет

Доходность:

10.17%

Планировка

Степанов Анатолий

Ваш брокер по работе с клиентами

Найдите лучшее место
для жизни, бизнеса, инвестиций

Оставьте свои контакты — с вами свяжется руководитель отдела для презентации нужного вам объекта

Похожие объекты