Id 160500

с. Лайково, ЖК Рублевский Квартал, д. 55 - 84 кв. м. - Продажа / Торговое помещение

адрес Московская область, Одинцовский район, с. Лайково, ЖК Рублевский Квартал, д. 55

С отдельным входом
Торговая

26 200 401 RUB | за все

(за 1 м2 — 311 910 RUB)

площадь 84.0 м2

QR код Qr код

Предлагается в продажу торговое помещение в ЖК «Рублевский Квартал». Адрес: Московская область, Одинцовский городской округ, с. Лайково, д. 55.
Ближайшие станции метро: 15 минут до м. Молодежная и Кунцевская, рядом ж/д станция Усово и МЦД-1 «Одинцово».
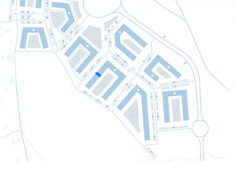
Торговое помещение расположено в престижном жилом комплексе «Рублевский Квартал», который находится в селе Лайково.
Помещение находится на въезде в ЖК, что обеспечивает высокий пешеходный и автомобильный трафик. Идеальная видимость – панорамный обзор со всех точек комплекса. Эксклюзивное окружение – рядом только статусные ЖК: «Барвиха Luxury Village», «Рублевские Огни», «Опалиха 03» и только федеральные арендаторы с высокой арендной ставкой.

Технические характеристики:
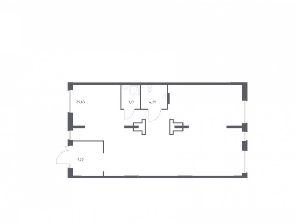
Общая площадь помещения: 84кв. м. Этаж: 1. Отдельный вход. Высота потолков – от 3,5 м. Электрическая мощность – 20,8 кВт.

Коммерческие условия:
Стоимость объекта – 26 200 401 рублей.
Стоимость за 1 кв. м. – 228 573 рубля.
Ключи будут переданы летом 2026 года.
Продажа по договору от юр. лица

Технические характеристики

Тип здания: С отдельным входом,Торговая

Общая площадь: 84  м2

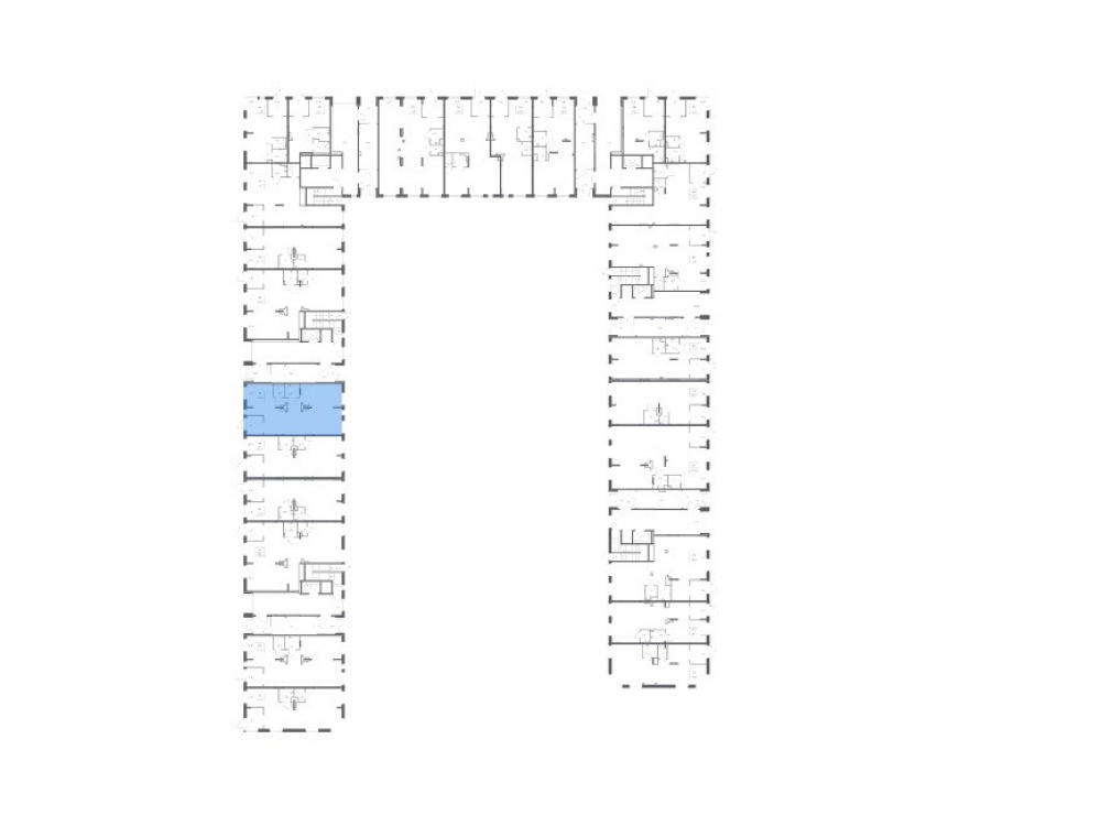
Этаж: 1

Всего этажей: 9

Электрическая мощность: 20,8 кВт

Высота потолков: от 3,5 м

Парковка: Стихийная

Коммерческие условия

Цена за все: 26 200 401 RUB

ФОРМА ВЛАДЕНИЯ: Частная

карта

Расположение

Адрес: Московская область, Одинцовский район, с. Лайково, ЖК Рублевский Квартал, д. 55

Близость метро: Одинцово

Транспортная доступность: Ближайшие станции метро: 15 минут до м. Молодежная и Кунцевская, рядом ж/д станция Усово и МЦД-1 «Одинцово».

Окружение

Торговое окружение: ЖК: «Барвиха Luxury Village», «Рублевские Огни», «Опалиха 03» и только федеральные арендаторы с высокой арендной ставкой.

Адрес:

Московская область, Одинцовский район, с. Лайково, ЖК Рублевский Квартал, д. 55

Округ:

Близость метро:

Одинцово

Транспортная доступность:

Ближайшие станции метро: 15 минут до м. Молодежная и Кунцевская, рядом ж/д станция Усово и МЦД-1 «Одинцово».

карта

Торговое окружение:

ЖК: «Барвиха Luxury Village», «Рублевские Огни», «Опалиха 03» и только федеральные арендаторы с высокой арендной ставкой.

Общая площадь:

84  м2

Этаж:

1

Всего этажей:

9

Тип:

С отдельным входом,Торговая

Электрическая мощность:

20,8 кВт

Высота потолков:

от 3,5 м

Парковка:

Стихийная

ФОРМА ВЛАДЕНИЯ:

Частная

Цена за все:

26 200 401 RUB

Планировка

Ирина Головина

Ваш брокер по работе с клиентами

Найдите лучшее место
для жизни, бизнеса, инвестиций

Оставьте свои контакты — с вами свяжется руководитель отдела для презентации нужного вам объекта

Похожие объекты