Id 161150

Красногорск, улица Тенистых Аллей, 1к2 - 79,87 кв. м. - Продажа / Торговое помещение / Ozon, Wildberries

адрес Красногорск, улица Тенистых Аллей, 1к2

Арендный бизнес
С отдельным входом
Торговая
Жилой комплекс (мфк)

Окупаемость: 14.6 лет

Доходность:6.86%

57 600 000 RUB | за все

(за 1 м2 — 720 901 RUB)

площадь 79.9 м2

QR код Qr код

Продаётся торговое помещение с арендатором в ЖК «Скай Спутник».
Адрес: Московская область, г. Красногорск, ул. Тенистых Аллей, 1к2. ЖК «Скай Спутник», корпус 14.
ЖК «Скай Спутник» — современный жилой комплекс бизнес-класса, расположенный в Одинцовском районе, в 200 м от МКАД, рядом с деревней Раздоры. В шаговой доступности — станции метро «Строгино» и «Мякинино», остановки общественного транспорта. Высокий пешеходный и автомобильный трафик. Развитая внутренняя инфраструктура.

Технические характеристики:
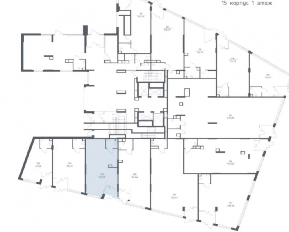
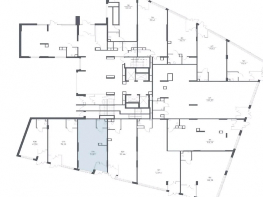
Общая площадь: 79,87 кв. м. (1 этаж).
Отдельный вход, витринное остекление.
Электрическая мощность: 16 кВт.
Подземный паркинг для посетителей и жителей комплекса.

Коммерческие условия:
Стоимость объекта: 57 600 000 рублей.
Стоимость за 1 кв. м.: 721 172 рубля.
Арендаторы: Ozon, Wildberries.
Текущий МАП: 330 000 рублей.
С июля по сентябрь: 360 000 рублей в месяц.
С октября: 400 000 рублей в месяц.
Индексация: 6% ежегодно.
Коммунальные услуги оплачиваются отдельно.

Технические характеристики

Тип здания: Арендный бизнес,С отдельным входом,Торговая,Жилой комплекс (мфк)

Общая площадь: 79.9  м2

Этаж: 1

Всего этажей: 33

Электрическая мощность: 16 кВт

Высота потолков: по запросу

Парковка: подземный паркинг

Коммерческие условия

Цена за все: 57 600 000 RUB

ФОРМА ВЛАДЕНИЯ: по запросу

Общий МАП: 330 000 RUB (данный МАП является минимальным, при оптимизации арендаторов арендный поток можно значительно увеличить)

Общий ГАП: 3 960 000 RUB

Окупаемость: 14.6 лет

Доходность: 6.86%

карта

Расположение

Адрес: Красногорск, улица Тенистых Аллей, 1к2

Близость метро: Мякинино,Строгино

Транспортная доступность: в пешей доступности

Окружение

Торговое окружение: развитая инфраструктура

Адрес:

Красногорск, улица Тенистых Аллей, 1к2

Округ:

Близость метро:

Мякинино,Строгино

Транспортная доступность:

в пешей доступности

карта

Торговое окружение:

развитая инфраструктура

Общая площадь:

79.9  м2

Этаж:

1

Всего этажей:

33

Тип:

Арендный бизнес,С отдельным входом,Торговая,Жилой комплекс (мфк)

Электрическая мощность:

16 кВт

Высота потолков:

по запросу

Парковка:

подземный паркинг

ФОРМА ВЛАДЕНИЯ:

по запросу

Цена за все:

57 600 000 RUB

Общий МАП: 330 000

(данный МАП является минимальным, при оптимизации арендаторов арендный поток можно значительно увеличить)

Общий ГАП:

3 960 000

Окупаемость:

14.6 лет

Доходность:

6.86%

Планировка

Уралов Константин

Ваш брокер по работе с клиентами

Найдите лучшее место
для жизни, бизнеса, инвестиций

Оставьте свои контакты — с вами свяжется руководитель отдела для презентации нужного вам объекта

Похожие объекты