Id 161236

Москва, Варшавское ш., 170Ек3 / Продажа / Готовый арендный бизнес / 77 кв. м.

адрес Москва, Варшавское шоссе, 170Ек3

Арендный бизнес
С отдельным входом
Торговая
Новостройка

Окупаемость: 11.9 лет

Доходность:8.39%

27 150 000 RUB | за все

(за 1 м2 — 352 140 RUB)

площадь 77.1 м2

QR код Qr код

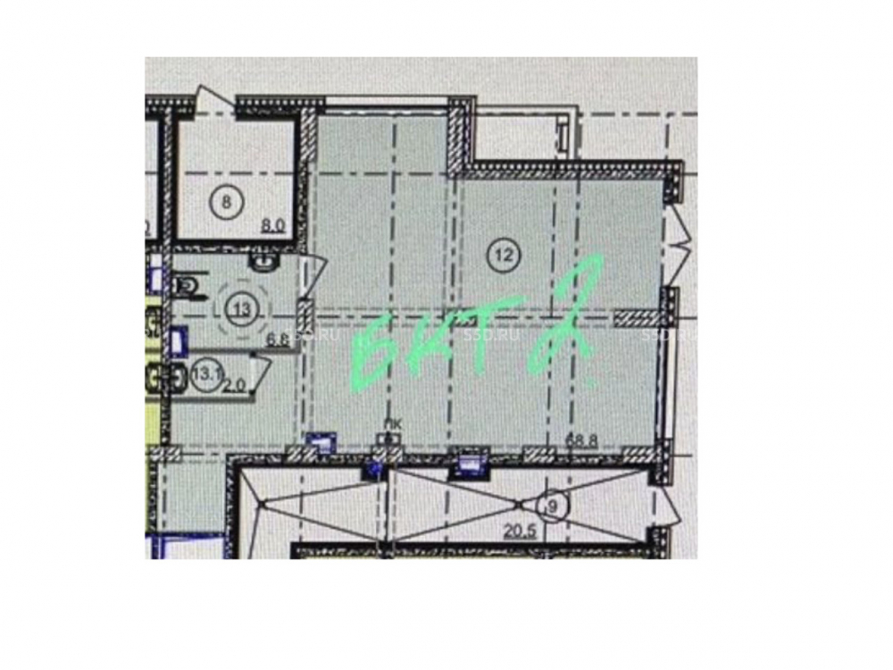
Предлагается к продаже помещение свободного назначения по адресу: г. Москва, Варшавское шоссе, 170Ек3, площадью 77.1 кв.м.

Ближайшая станция метро - Лесопарковая, 3 минут пешком. Помещение расположено на 1 этаже дома с коммерческими помещениями. Возможна любая медицинская лицензия. Рядом с помещением Лента, Бритва, Орбита 67, Вкус Вилл, Пятерочка и др. На въезде/выезде в огромный, заселённый, развивающийся, спальный район Москвы. Круглосуточный плотный трафик. 100% полезной площади. 1 этаж. Свободная планировка.

Технические характеристики:
Общая площадь на 1 этаже - 77.1 кв.м. Отдельный вход с фасада. Имеются парковочные места. Центральное отопление. Наличие мокрой точки. Мощность электроэнергии 17 кВт, но можно увеличить. Высота потолков - 4.1 м.

Коммерческие условия:
Стоимость: 27 150 000 рублей.
Стоимость за кв.м: 352 140 рублей.

Арендатор: Бургерная.
МАП: 190 000 рублей.
ГАП: 2 280 000 рублей.
Индексация: 7% безусловная.
Срок договора: 5 лет от 2025 г.
Окупаемость: 12 лет.

Технические характеристики

Тип здания: Арендный бизнес,С отдельным входом,Торговая,Новостройка

Общая площадь: 77.1  м2

Этаж: 1

Всего этажей: 20

Электрическая мощность: 17 кВт, можно увеличить

Высота потолков: 4.1 м.

Парковка: Есть

Коммерческие условия

Цена за все: 27 150 000 RUB

ФОРМА ВЛАДЕНИЯ: Физ. лицо

Общий МАП: 190 000 RUB (данный МАП является минимальным, при оптимизации арендаторов арендный поток можно значительно увеличить)

Общий ГАП: 2 280 000 RUB

Окупаемость: 11.9 лет

Доходность: 8.39%

карта

Расположение

Адрес: Москва, Варшавское шоссе, 170Ек3

Округ: Южный административный округ

Близость метро: Аннино,Лесопарковая,Улица Старокачаловская

Транспортная доступность: Ближайшая станция метро - м. Лесопарковая, 3 минут пешком.

Окружение

Торговое окружение: Лента, Бритва, Орбита 67, Вкус Вилл, Пятерочка и др

Адрес:

Москва, Варшавское шоссе, 170Ек3

Округ:

Южный административный округ

Близость метро:

Аннино,Лесопарковая,Улица Старокачаловская

Транспортная доступность:

Ближайшая станция метро - м. Лесопарковая, 3 минут пешком.

карта

Торговое окружение:

Лента, Бритва, Орбита 67, Вкус Вилл, Пятерочка и др

Общая площадь:

77.1  м2

Этаж:

1

Всего этажей:

20

Тип:

Арендный бизнес,С отдельным входом,Торговая,Новостройка

Электрическая мощность:

17 кВт, можно увеличить

Высота потолков:

4.1 м.

Парковка:

Есть

ФОРМА ВЛАДЕНИЯ:

Физ. лицо

Цена за все:

27 150 000 RUB

Общий МАП: 190 000

(данный МАП является минимальным, при оптимизации арендаторов арендный поток можно значительно увеличить)

Общий ГАП:

2 280 000

Окупаемость:

11.9 лет

Доходность:

8.39%

Планировка

Павел

Ваш брокер по работе с клиентами

Найдите лучшее место
для жизни, бизнеса, инвестиций

Оставьте свои контакты — с вами свяжется руководитель отдела для презентации нужного вам объекта

Похожие объекты