Id 161205

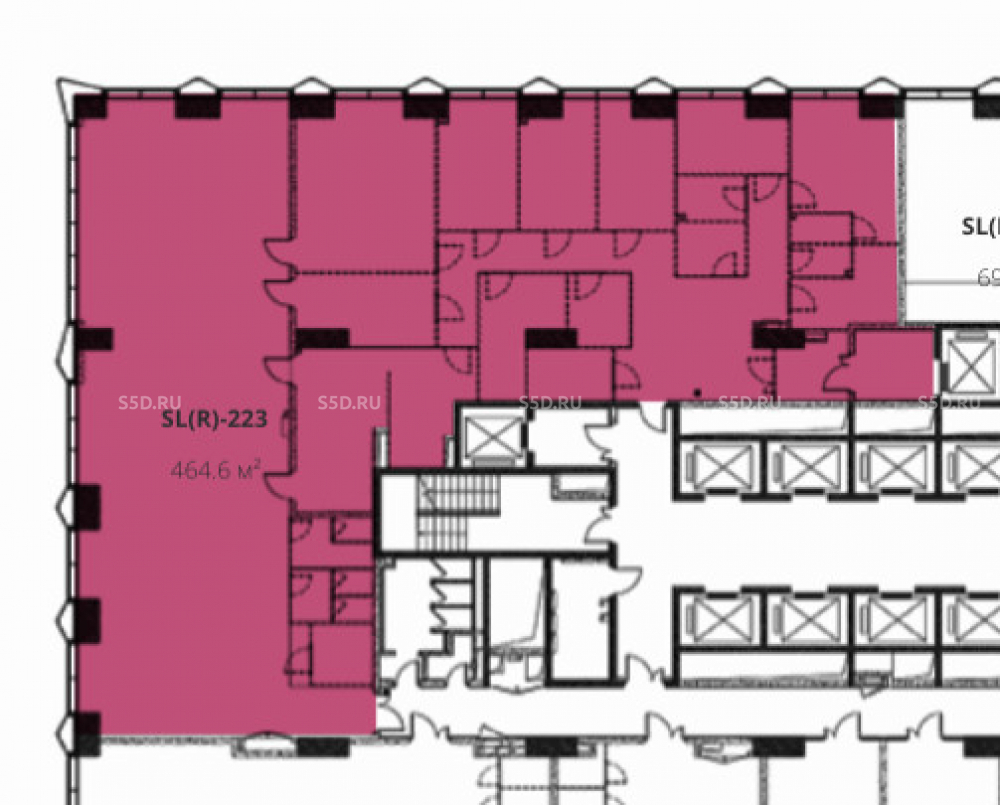
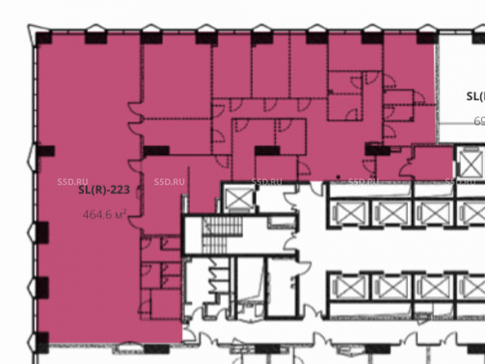
Вавилова вл. 11 - 464.6м2. / Продажа офиса на 2 этаже в БЦ Stone Ленинский в башне S на 117 сотрудников

адрес Москва, Вавилова вл. 11

Торговая
Офис

334 512 000 RUB | за все

(за 1 м2 — 720 000 RUB)

площадь 464.6 м2

QR код Qr код

К продаже предлагается 2 этаж офисов в башне S в БЦ Stone Ленинский по адресу: Москва, ул. Вавилова, вл. 11,
Помещение находится на 2 этаже 23-х этажного нового премиального бизнес центра класса А. От метро Ленинский проспект 4 мин. пешком.
Переезд - 2026 г.

Технические характеристики:
2 этаж в башне S на 117 сотрудников. Помещение площадью464.6 кв.м. Открытая планировка. Помещение без отделки. Мокрая точка.
Свободная планировка. Панорамное остекление.
Приточно-вытяжная система вентиляции
Все центральные коммуникации. Центральная система кондиционирования. Профессиональная УК.

Премиальный бизнес-центр «Stone Ленинский» представлен 2 офисными башнями высотой в 23 и 12 этажей, объединяет их двухуровневый стилобат. Архитектором проекта выступает бюро WALL.
В отделке фасада использованы натуральные материалы — черный гранит, а также алюминий.
В БЦ соблюдена оптимальная глубина помещений — 10 метров, которая обеспечивает создание функциональных планировок под индивидуальные задачи бизнеса и вкупе с гарантирует равномерное естественное освещение торгового помещения.
Рядом расположены штаб-квартиры крупных компаний, в частности «Сбербанка» и «Роснано», а также строится штаб-квартира «Яндекса».

Коммерческие условия:
Стоимость объекта 334 512 000 рублей
Стоимость объекта за кв. м. 720 000 рублей
Продажа по ДДУ
Собственник юридическое лицо

Технические характеристики

Тип здания: Торговая,Офис

Общая площадь: 464.6  м2

Этаж: 2

Всего этажей: 12

Электрическая мощность: -

Высота потолков: -

Парковка: -

Коммерческие условия

Цена за все: 334 512 000 RUB

ФОРМА ВЛАДЕНИЯ: ООО с НДС

карта

Расположение

Адрес: Москва, Вавилова вл. 11

Округ: Западный административный округ

Близость метро: Ленинский проспект

Транспортная доступность: От метро Ленинский проспект 4 мин. пешком.

Окружение

Торговое окружение: Рядом расположены штаб-квартиры крупных компаний, в частности «Сбербанка» и «Роснано», а также строится штаб-квартира «Яндекса».

Адрес:

Москва, Вавилова вл. 11

Округ:

Западный административный округ

Близость метро:

Ленинский проспект

Транспортная доступность:

От метро Ленинский проспект 4 мин. пешком.

карта

Торговое окружение:

Рядом расположены штаб-квартиры крупных компаний, в частности «Сбербанка» и «Роснано», а также строится штаб-квартира «Яндекса».

Общая площадь:

464.6  м2

Этаж:

2

Всего этажей:

12

Тип:

Торговая,Офис

Электрическая мощность:

-

Высота потолков:

-

Парковка:

-

ФОРМА ВЛАДЕНИЯ:

ООО с НДС

Цена за все:

334 512 000 RUB

Планировка

Назарова Олеся

Ваш брокер по работе с клиентами

Найдите лучшее место
для жизни, бизнеса, инвестиций

Оставьте свои контакты — с вами свяжется руководитель отдела для презентации нужного вам объекта

Похожие объекты