Id 5482

Загорьевский проезд, 3К5 - 470,9 м² - Продажа арендного бизнеса

адрес Загорьевский проезд, 3К5

Арендный бизнес
Торговая

Окупаемость: 9.5 лет

Доходность:10.53%

95 000 000 RUB | за все

(за 1 м2 — 201 741 RUB)

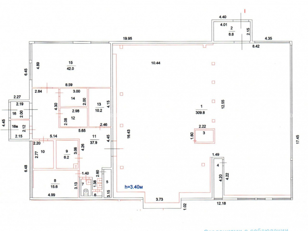
площадь 470.9 м2

QR код Qr код

Предлагается в продажу отдельно стоящее здание, общей площадью 470,9 м² с магазином-арендатором "Пятёрочка" в районе Бирюлёво Восточное.
Помещение расположено в ЮАО по адресу: Загорьевский проезд, 3К5 в ОСЗ.
Рядом автобусная остановка. Парковка перед зданием, свободная парковка на проезжей части. Алкогольная лицензия

Коммерческие условия:
Общая площадь: 470,9 м²
Стоимость помещения: 95 000 000 рублей с НДС
Арендатор: супермаркет "Пятерочка"
Долгосрочный договор аренды до 2041
МАП: 833 490 рублей с НДС
Индексация: 5% в год
Аренда земельного участка: 31 мая 2066 г.
Плата за пользование: 1.5% от Кадастровой стоимости в год (уплачивается равными долями ежеквартально).

Технические характеристики

Тип здания: Арендный бизнес,Торговая

Общая площадь: 470.9  м2

Этаж: 1

Всего этажей: 1

Электрическая мощность: по запросу

Высота потолков: по запросу

Парковка: наземная

Коммерческие условия

Цена за все: 95 000 000 RUB

ФОРМА ВЛАДЕНИЯ: ООО с НДС

Общий МАП: 833 490 RUB (данный МАП является минимальным, при оптимизации арендаторов арендный поток можно значительно увеличить)

Общий ГАП: 10 001 880 RUB

Окупаемость: 9.5 лет

Доходность: 10.53%

карта

Расположение

Адрес: Загорьевский проезд, 3К5

Округ: Южный административный округ

Близость метро: Кантемировская,Царицыно,Чертановская

Транспортная доступность: в 50 метрах остановка общественного транспорта

Окружение

Торговое окружение: в окружении большое количество панельных домов без коммерческих помещений

Адрес:

Загорьевский проезд, 3К5

Округ:

Южный административный округ

Близость метро:

Кантемировская,Царицыно,Чертановская

Транспортная доступность:

в 50 метрах остановка общественного транспорта

карта

Торговое окружение:

в окружении большое количество панельных домов без коммерческих помещений

Общая площадь:

470.9  м2

Этаж:

1

Всего этажей:

1

Тип:

Арендный бизнес,Торговая

Электрическая мощность:

по запросу

Высота потолков:

по запросу

Парковка:

наземная

ФОРМА ВЛАДЕНИЯ:

ООО с НДС

Цена за все:

95 000 000 RUB

Общий МАП: 833 490

(данный МАП является минимальным, при оптимизации арендаторов арендный поток можно значительно увеличить)

Общий ГАП:

10 001 880

Окупаемость:

9.5 лет

Доходность:

10.53%

Планировка

Шагитов Марат

Ваш брокер по работе с клиентами

Найдите лучшее место
для жизни, бизнеса, инвестиций

Оставьте свои контакты — с вами свяжется руководитель отдела для презентации нужного вам объекта

Похожие объекты