Id 138628

Щелковское шоссе д. 100 - 1665 кв.м. - Аренда / Под производство, тёплый склад

адрес Москва, Щелковское шоссе д. 100

Многофункциональный
С отдельным входом
Торговая
Общепит
ТЦ

2 997 000 RUB | в месяц

(за 1 м2 — 1 800 RUB)

площадь 1 665.0 м2

QR код Qr код

В аренду предлагается помещение под производство, тёплый склад, по адресу: Москва, Щелковское шоссе д. 100, в 7 минутах езды на транспорте от м. Щелковская. ТРЦ Щёлково находится в окружении большого жилого массива. Рядом наземный пешеходный переход. Отличная визуализация объекта и высокий рекламный потенциал.
Торговое окружение: крупнейшие сетевые магазины федерального значения, такие как МВидео, Спотрмастер, гипермаркет мебели, Детский мир, Фикспрайс и др. крупные арендаторы, банки, кафе, развлекательные площадки, кинотеатр и зона фудкорта.

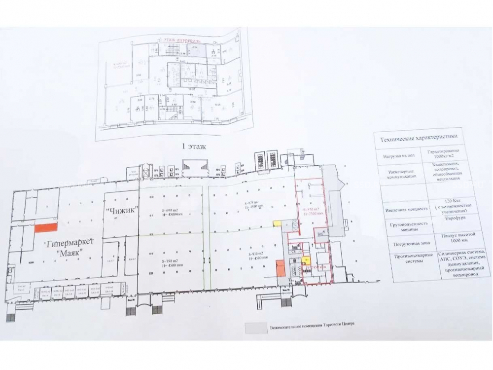
Технические характеристики:
Площадь помещения: 1665кв.м., 1 этаж 3-х этажного здания ТЦ. Отдельный вход, отдельная зона для разгрузо-погрузочных работ, грузовой лифт. Центральные коммуникации, вентиляция. Планировка открытая, зальная. Высота потолков 4.5м. Помещение свободно. Состояние помещения с ремонтом, за выездом арендатора. Выделенная мощность электроэнергии по запросу. Возможность подъезда грузового транспорта к месту разгрузо-погрузочных работ.
Торговое окружение: .

Коммерческие условия:
Ставка аренды в месяц- 2 997 000 руб. с НДС, включая эксплуатационные платежи.
Ставка за 1 кв.м в месяц - 1 800 руб.
Коммунальные платежи оплачиваются отдельно по факту потребления.

Технические характеристики

Тип здания: Многофункциональный,С отдельным входом,Торговая,Общепит,ТЦ

Общая площадь: 1665  м2

Этаж: 1

Всего этажей: 3

Электрическая мощность: По запросу

Высота потолков: 4.5м

Парковка: Городская

Коммерческие условия

Цена в месяц: 2 997 000 RUB

ФОРМА ВЛАДЕНИЯ: ООО на НДС

карта

Расположение

Адрес: Москва, Щелковское шоссе д. 100

Округ: Восточный административный округ

Близость метро: Щёлковская

Транспортная доступность: 7 мин. транспортом от м.Щёлковская

Окружение

Торговое окружение: крупнейшие сетевые магазины федерального значения, такие как МВидео, Спотрмастер, гипермаркет мебели, Детский мир, Фикспрайс и др. крупные арендаторы, банки, кафе, развлекательные площадки, кинотеатр и зона фудкорта.

Адрес:

Москва, Щелковское шоссе д. 100

Округ:

Восточный административный округ

Близость метро:

Щёлковская

Транспортная доступность:

7 мин. транспортом от м.Щёлковская

карта

Торговое окружение:

крупнейшие сетевые магазины федерального значения, такие как МВидео, Спотрмастер, гипермаркет мебели, Детский мир, Фикспрайс и др. крупные арендаторы, банки, кафе, развлекательные площадки, кинотеатр и зона фудкорта.

Общая площадь:

1665  м2

Этаж:

1

Всего этажей:

3

Тип:

Многофункциональный,С отдельным входом,Торговая,Общепит,ТЦ

Электрическая мощность:

По запросу

Высота потолков:

4.5м

Парковка:

Городская

ФОРМА ВЛАДЕНИЯ:

ООО на НДС

Цена в месяц:

2 997 000 RUB

Планировка

Воробьев Алексей

Ваш брокер по работе с клиентами

Найдите лучшее место
для жизни, бизнеса, инвестиций

Оставьте свои контакты — с вами свяжется руководитель отдела для презентации нужного вам объекта

Похожие объекты