Id 142983

ЮАО, Москва, ул. проспект Лихачёва, 22 / Продажа ПСН в новом ЖК

адрес ЮАО, Москва, ул. проспект Лихачёва, 22

С отдельным входом
Торговая
Общепит
Жилой комплекс (мфк)
Новостройка

65 714 880 RUB | за все

(за 1 м2 — 472 769 RUB)

площадь 139.0 м2

QR код Qr код

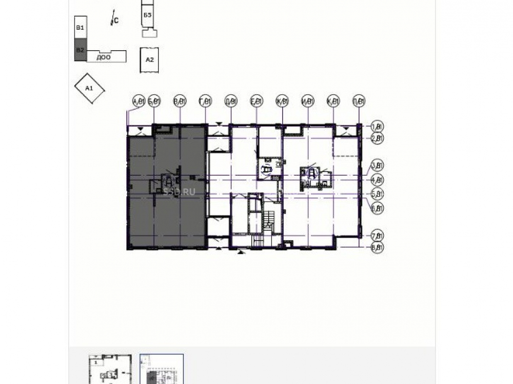
Предлагается в продажу нежилое помещение свободного назначения в ЮАО по адресу: Москва, ул. проспект Лихачёва, 22, площадью 139,7 м2, помещение находится на углу корпуса В2 высотой 18 этажей, этажность корпусов 5-35 этажей ЖК бизнес-класса. От метро Технопарк 5 мин. пешком.

Технические характеристики: площадь 139,7 кв.м. открытая планировка • потолки 4,65-4,8м. (есть возможность создать Антресоль) • электроэнергия 0,2 кВт/м2 (есть техническая возможность для увеличения) • витринное остекление в пол • высокий рекламный потенциал. • 2 отдельных входа с видом на первую линию • мокрая точка • есть возможность установить вытяжку повышенной мощности • зона разгрузки • помещение в бетоне.

Ввод в эксплуатацию дом готов.
458 Квартир на один дом 1145 жителей чистовая отделка (быстрое заселение)
Всего в ЖК 12 корпусов ~15 000 жителей, также рядом находятся еще три ЖК
паркинг на 1691м/м

Инфраструктура:
11 Государственных и 9 частных детских садов
10 Государственных и 2 частные школы
3 Поликлинники
Больше 20 медицинских учреждений
Больше 10 торговых и развлекательных центров, включая ТЦ «РИВЬЕРА», «НОРА» и «МЕГАПОЛИС»
Бизнес-кластер NAGATINO I-LAND

Коммерческие условия:
• стоимость объекта 65 714 880 рублей
• стоимость объекта за м2 470 400 рублей
• продажа по ДКП
• собственник юр. лицо

Технические характеристики

Тип здания: С отдельным входом,Торговая,Общепит,Жилой комплекс (мфк),Новостройка

Общая площадь: 139  м2

Этаж: 1

Всего этажей: 18

Электрическая мощность: -

Высота потолков: -

Парковка: -

Коммерческие условия

Цена за все: 65 714 880 RUB

ФОРМА ВЛАДЕНИЯ: -

карта

Расположение

Адрес: ЮАО, Москва, ул. проспект Лихачёва, 22

Округ: Южный административный округ

Близость метро: Автозаводская (Замоскворецкая),Автозаводская (МЦК),ЗИЛ,Коломенская,Технопарк,Тульская

Транспортная доступность: -

Окружение

Торговое окружение: -

Адрес:

ЮАО, Москва, ул. проспект Лихачёва, 22

Округ:

Южный административный округ

Близость метро:

Автозаводская (Замоскворецкая),Автозаводская (МЦК),ЗИЛ,Коломенская,Технопарк,Тульская

Транспортная доступность:

-

карта

Торговое окружение:

-

Общая площадь:

139  м2

Этаж:

1

Всего этажей:

18

Тип:

С отдельным входом,Торговая,Общепит,Жилой комплекс (мфк),Новостройка

Электрическая мощность:

-

Высота потолков:

-

Парковка:

-

ФОРМА ВЛАДЕНИЯ:

-

Цена за все:

65 714 880 RUB

Артур

Ваш брокер по работе с клиентами

Найдите лучшее место
для жизни, бизнеса, инвестиций

Оставьте свои контакты — с вами свяжется руководитель отдела для презентации нужного вам объекта

Похожие объекты