Id 143926

ЦАО, Шелапутинский пер. вл. 3. - 4872 кв.м - Продажа комплекса зданий под реконструкцию

адрес Шелапутинский переулок дом 3

Особняк/здание
Проект
Редевелопмент

500 000 000 RUB | за все

(за 1 м2 — 102 627 RUB)

площадь 4 872.0 м2

QR код Qr код

Предлагается к продаже ансамбль отдельно стоящих зданий общей площадью 4 872,4 метров по адресу: Шелапутинский переулок владение 3, ЦАО, г.Москва на участке земли площадью 6 440 метров, земля оформлена в долгосрочную аренду до 2072 года. Ансамбль зданий является памятником культуры «Городская усадьба 4 флигеля " Здания 3-х этажные имеют кабинетную структуру, много окон. Свободный доступ, 1-я линия улицы. Двор полон зелени, тишина прямой вид сверху на Яузкую набережную. Видео по запросу.

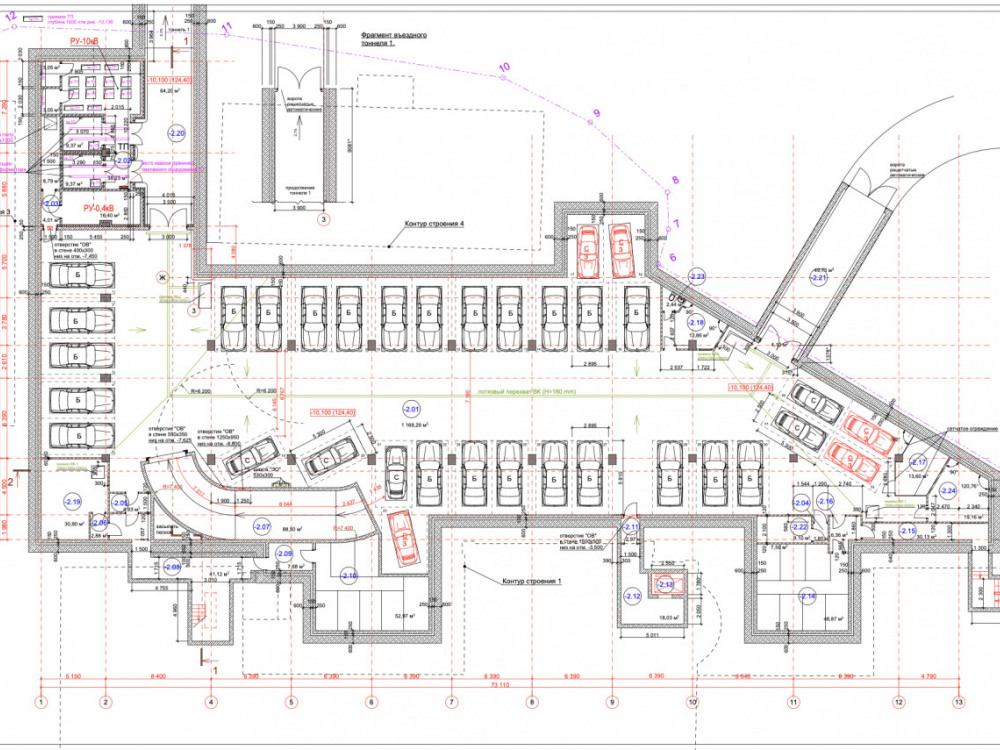
Разработан проект приспособления Культурного наследия федерального значения «Городская усадьба 4 флигеля " под жилой комплекс апартаментов с подземной автостоянкой по адресу: г. Москва, ЦАО, Шелапутинский пер., дом.3 строения 1,2,3,4,5. Текущая площадь здания 4 872 метра, будущая площадь комплекса 10 190 метров.

Технические параметры проекта:
Общая площадь участка - 0,644 га
Общая площадь застройки - 2 500,90 кв.м
Общая площадь будущего комплекса по проекту - 10 190,47 кв.м
Общая площадь наземной части - 6 499.55 кв.м
Общая площадь подземной части - 3 627,92 кв.м
Площадь квартир и апартаментов - 4 053,18 кв.м
Площадь квартир (29 шт.) - 3 438,72 кв.м
Площадь апартаментов (6 шт.) - 614,46 кв.м
Площадь автостоянки на 74 м/м - 2 670,00 кв.м
Площадь административных помещений - 285,65 кв.м
Площадь технических и служебных помещений - 667,65 кв.м
Площадь фитнес центра - 259,64 кв.м
Площадь детского центра - 67,00 кв.м
Площадь помещений общественной зоны - 214,56 кв.м

Текучий статус проекта:
Разработана проектная, исходно -разрешительная документация.
Получено согласование проекта в Департаменте культурного наследия.
Утвержден проект планировки территории под выезды из паркинга.
Проект прошел согласование в Главгосэкспертизе.
Проведены контраварийные мероприятия несущих конструкций зданий.
Дополнительная информация по запросу.

Коммерческие условия:
Общая стоимость: 500 000 000 рублей.
Цена за 1 кв.м: 102 627 рублей
Форма сделки: ЮЛ.

Технические характеристики

Тип здания: Особняк/здание,Проект,Редевелопмент

Общая площадь: 4872  м2

Этаж: 1

Всего этажей: 3

Электрическая мощность: 350

Высота потолков: 4

Парковка: Своя

Коммерческие условия

Цена за все: 500 000 000 RUB

ФОРМА ВЛАДЕНИЯ: Собственность

карта

Расположение

Адрес: Шелапутинский переулок дом 3

Округ: Центральный административный округ

Близость метро: Таганская,Чкаловская

Транспортная доступность: На авто, метро 800 метров

Окружение

Торговое окружение: Жилой массив, азбука вкуса 300 метров

Адрес:

Шелапутинский переулок дом 3

Округ:

Центральный административный округ

Близость метро:

Таганская,Чкаловская

Транспортная доступность:

На авто, метро 800 метров

карта

Торговое окружение:

Жилой массив, азбука вкуса 300 метров

Общая площадь:

4872  м2

Этаж:

1

Всего этажей:

3

Тип:

Особняк/здание,Проект,Редевелопмент

Электрическая мощность:

350

Высота потолков:

4

Парковка:

Своя

ФОРМА ВЛАДЕНИЯ:

Собственность

Цена за все:

500 000 000 RUB

Планировка

Александр Невский

Ваш брокер по работе с клиентами

Найдите лучшее место
для жизни, бизнеса, инвестиций

Оставьте свои контакты — с вами свяжется руководитель отдела для презентации нужного вам объекта

Похожие объекты