Id 158153

ул. Новослободская, 19с1 - 6072 кв. м. - Продажа / ОСЗ / Гостиница

адрес Москва, Новослободская улица, 19с1

Особняк/здание
С отдельным входом
Отель/Хостел

900 000 000 RUB | за все

(за 1 м2 — 148 221 RUB)

площадь 6 072.0 м2

QR код Qr код

Продажа готового здания под гостиницу в ЦАО, у метро «Менделеевская».
Адрес: Москва, ЦАО, Тверской район, ул. Новослободская, 19с1. Объект расположен в сердце столицы, в престижном Тверском районе. Первая линия! 1-3 минуты пешком до станций метро «Менделеевская» и «Новослободская».
Престижная центральная локация с интенсивным пешеходным и автомобильным потоком. Отличная транспортная доступность обеспечивается близостью к Садовому кольцу и другим магистралям. Развитая элитная инфраструктура: Престижные театры (МХАТ им. Горького, Театр им. Моссовета) и выставочные залы, фешенебельные рестораны, кофейни и бары, эксклюзивные бутики и шоу-румы на Петровке и Кузнецком Мосту, премиальные фитнес-центры, спа-салоны, отделения банков и бизнес-центры.

Технические характеристики:
Общая площадь: 6 072 кв. м. Этажность: 7 этажей и подвал.(без ритейла на первом этаже). Отдельный вход. Земельный участок: 1 416 кв. м, в собственности.
Вид разрешённого использования: Размещение гостиниц и иных объектов временного проживания — идеально подходит для запуска отельного бизнеса без смены назначения.
Коммуникации: Все центральные сети (отопление, ХВС, ГВС). Электрическая мощность — 500 кВт. Смешанная планировка, состояние «под чистовую отделку». Высота потолков 3,5 м. Приточно-вытяжная вентиляция и центральное кондиционирование. Безопасность: Система видеонаблюдения и автоматического пожаротушения. Наземная парковка.

Коммерческие условия:
Стоимость объекта: 900 000 000 рублей (с НДС).
Стоимость за 1 кв. м.: 148 221 рублей.
Форма сделки: Продажа по договору купли-продажи.
Возможность рассмотреть иные схемы приобретения (индивидуально).
В стоимость объекта не входят торговые помещения на части 1-го этажа и в подвале.

Технические характеристики

Тип здания: Особняк/здание,С отдельным входом,Отель/Хостел

Общая площадь: 6072  м2

Этаж: 1

Всего этажей: 7

Электрическая мощность: 500 кВт

Высота потолков: 3,5 м

Парковка: наземная

Коммерческие условия

Цена за все: 900 000 000 RUB

ФОРМА ВЛАДЕНИЯ: по запросу

карта

Расположение

Адрес: Москва, Новослободская улица, 19с1

Округ: Центральный административный округ

Близость метро: Менделеевская,Новослободская

Транспортная доступность: в пешей доступности

Окружение

Торговое окружение: развитое торговое окружение

Адрес:

Москва, Новослободская улица, 19с1

Округ:

Центральный административный округ

Близость метро:

Менделеевская,Новослободская

Транспортная доступность:

в пешей доступности

карта

Торговое окружение:

развитое торговое окружение

Общая площадь:

6072  м2

Этаж:

1

Всего этажей:

7

Тип:

Особняк/здание,С отдельным входом,Отель/Хостел

Электрическая мощность:

500 кВт

Высота потолков:

3,5 м

Парковка:

наземная

ФОРМА ВЛАДЕНИЯ:

по запросу

Цена за все:

900 000 000 RUB

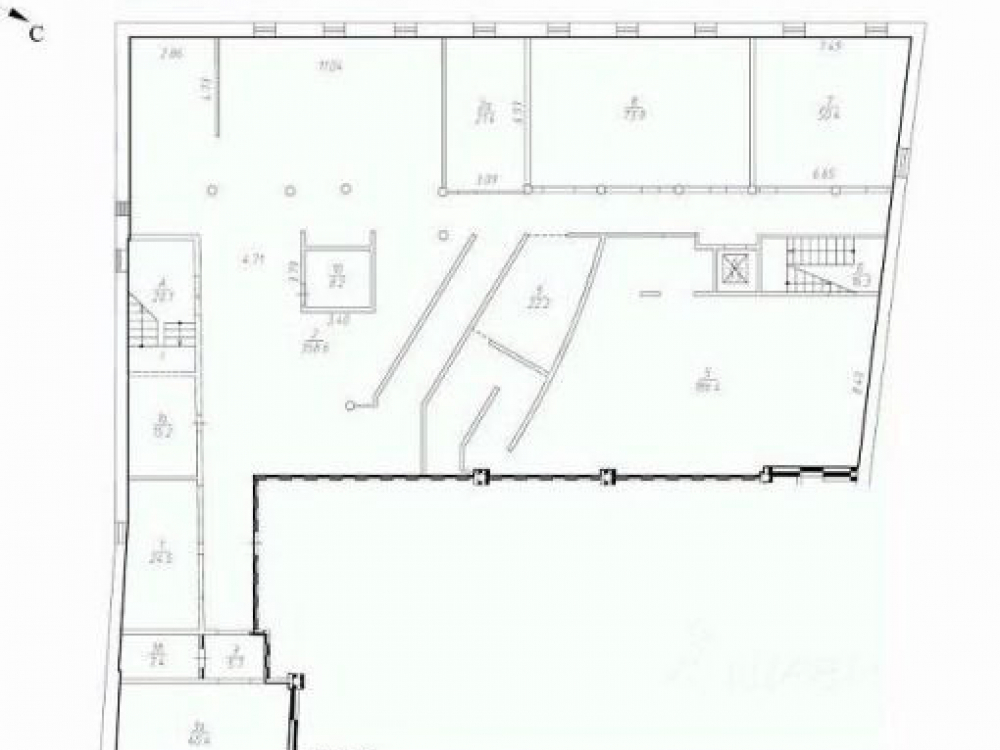
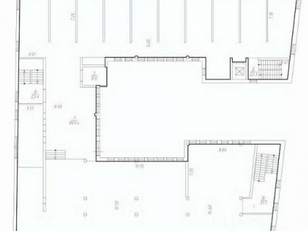
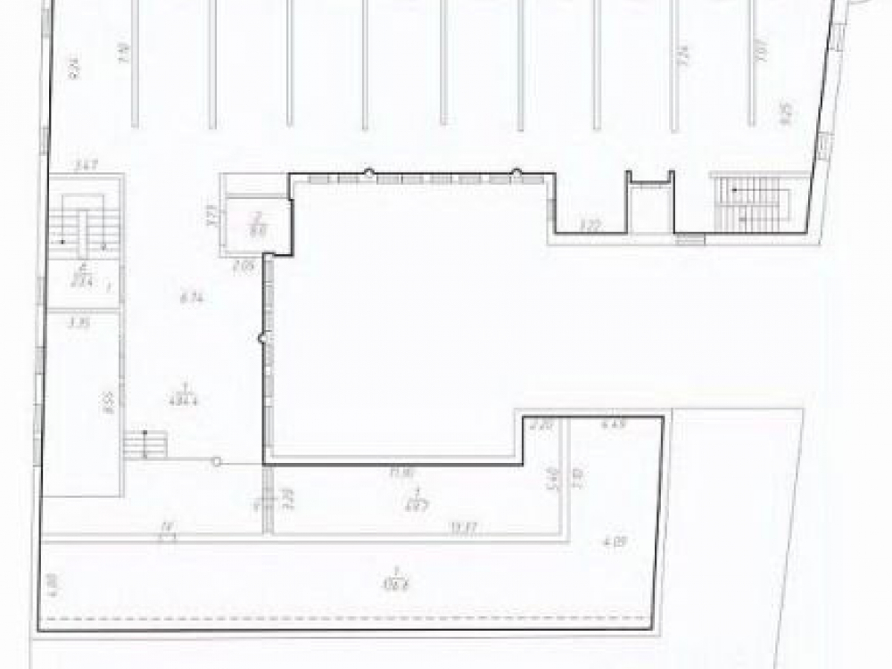
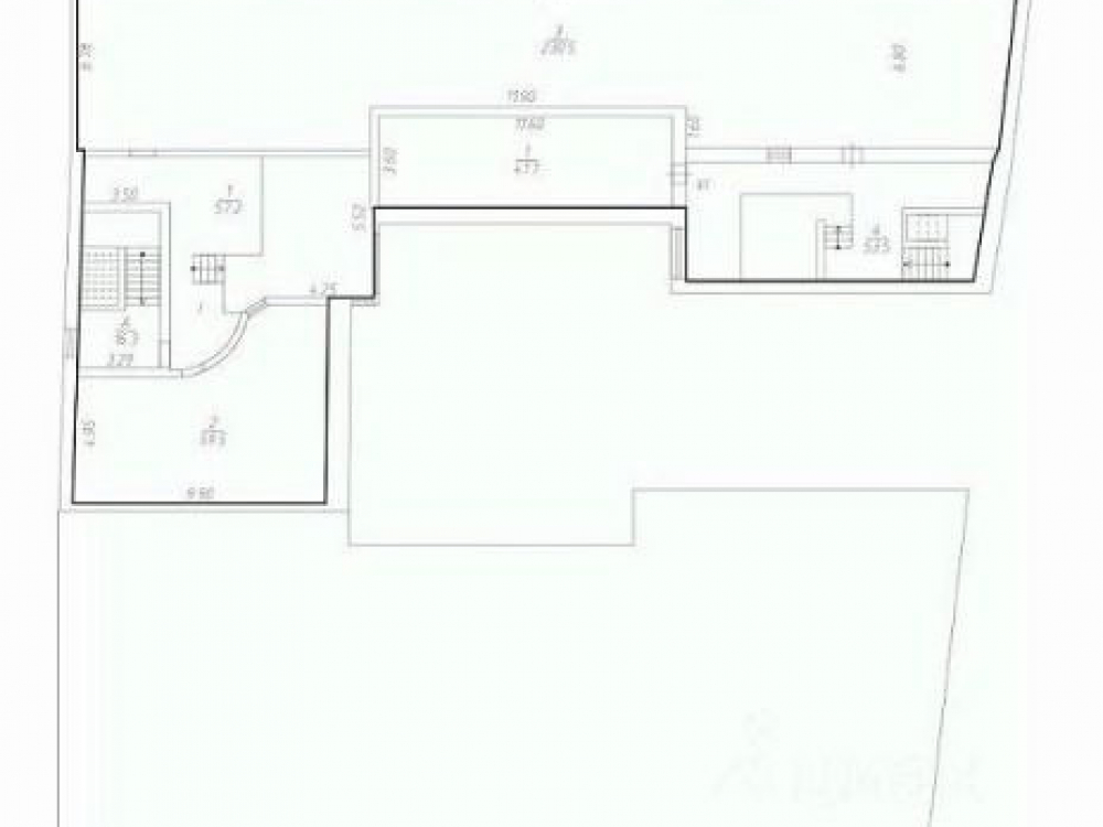
Планировка

Виталий

Ваш брокер по работе с клиентами

Найдите лучшее место
для жизни, бизнеса, инвестиций

Оставьте свои контакты — с вами свяжется руководитель отдела для презентации нужного вам объекта

Похожие объекты