Id 144561

г. Москва, ВАО, Погонный проезд, 3ак7/ 215 м2/Продажа ГАБ

адрес г. Москва, ВАО, Погонный проезд, 3ак7

Арендный бизнес
Многофункциональный
С отдельным входом
Торговая
Жилой комплекс (мфк)
Медицина

Окупаемость: 10.3 лет

Доходность:9.68%

47 000 000 RUB | за все

(за 1 м2 — 218 605 RUB)

площадь 215.0 м2

QR код Qr код

Продажа арендного бизнеса. Помещение свободного назначения общей площадью 215.9 кв.м., расположенное по адресу: ВАО, Погонный проезд, 3ак7.
Помещение расположено в ЖК "Лосиный Остров" состоящее из семи 29-ти этажных корпусов, на закрытой территории, с общим населением более 6000 человек.
Ближайшая станция метро: М. Бульвар Рокоссовского - в пешей доступности.

Технические условия:
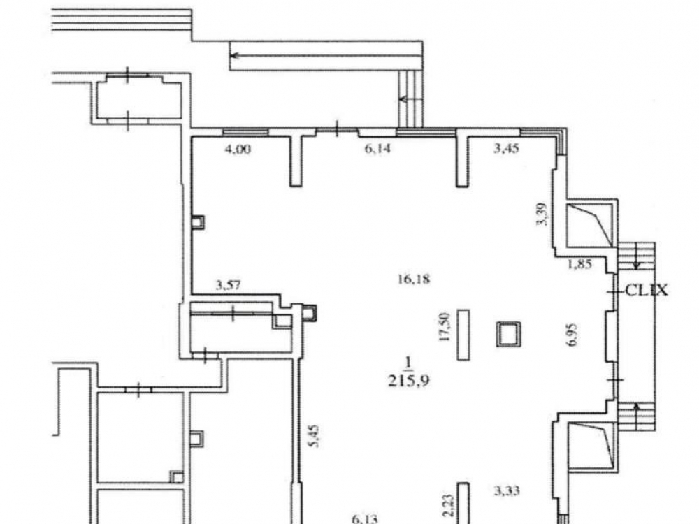
Общая площадь: 215,9 м2.
Высота потолков: 2,8 квадратных метров.
Выделенная электрическая мощность: 25 кВт.
Смешанная планировка.
Три отдельный входа с фасада; интенсивный пешеходный трафик; хороший рекламный потенциал.
Парковка: есть.

Коммерческие условия:
Стоимость продажи: 47 000 000 рублей;
Стоимость за м2: 217 600 рублей;
Арендатор: Детский сад.
МАП: 380 000 рублей.
ГАП: 4 560 000 рублей.
Окупаемость: 10.3 лет.
Доходность: 9.7%.
Форма собственности: Физ.лицо.
ДКПН.

Технические характеристики

Тип здания: Арендный бизнес,Многофункциональный,С отдельным входом,Торговая,Жилой комплекс (мфк),Медицина

Общая площадь: 215  м2

Этаж: 1

Всего этажей: 29

Электрическая мощность: 25 кВт

Высота потолков: 2,8

Парковка: есть

Коммерческие условия

Цена за все: 47 000 000 RUB

ФОРМА ВЛАДЕНИЯ: физ. лицо

Общий МАП: 380 000 RUB (данный МАП является минимальным, при оптимизации арендаторов арендный поток можно значительно увеличить)

Общий ГАП: 4 560 000 RUB

Окупаемость: 10.3 лет

Доходность: 9.68%

карта

Расположение

Адрес: г. Москва, ВАО, Погонный проезд, 3ак7

Округ: Восточный административный округ

Близость метро: Бульвар Рокоссовского

Транспортная доступность: отличная

Окружение

Торговое окружение: развитое

Адрес:

г. Москва, ВАО, Погонный проезд, 3ак7

Округ:

Восточный административный округ

Близость метро:

Бульвар Рокоссовского

Транспортная доступность:

отличная

карта

Торговое окружение:

развитое

Общая площадь:

215  м2

Этаж:

1

Всего этажей:

29

Тип:

Арендный бизнес,Многофункциональный,С отдельным входом,Торговая,Жилой комплекс (мфк),Медицина

Электрическая мощность:

25 кВт

Высота потолков:

2,8

Парковка:

есть

ФОРМА ВЛАДЕНИЯ:

физ. лицо

Цена за все:

47 000 000 RUB

Общий МАП: 380 000

(данный МАП является минимальным, при оптимизации арендаторов арендный поток можно значительно увеличить)

Общий ГАП:

4 560 000

Окупаемость:

10.3 лет

Доходность:

9.68%

Планировка

Александр Невский

Ваш брокер по работе с клиентами

Найдите лучшее место
для жизни, бизнеса, инвестиций

Оставьте свои контакты — с вами свяжется руководитель отдела для презентации нужного вам объекта

Похожие объекты