Id 145624

Вилла по адресу Бурденко д. 3, 564,5 м2/Продажа особняка под ресторан или резиденцию

адрес Москва, Бурденко д. 3

Многофункциональный
Офис
Общепит
Медицина

819 246 200 RUB | за все

(за 1 м2 — 1 478 784 RUB)

площадь 554.0 м2

QR код Qr код

Продажа виллы по адресу Москва, ул Бурденко 3 в ЖК премиум-класса «Дом на Бурденко», построенном в 2014 г.

Жилой комплекс расположен в одном из самых престижных районов Москвы - «Хамовники» в 1 минуте ходьбы от Садового кольца и в 10 минутах до станции метро «Парк Культуры». В окружении комплекса Сквер Девичьего поля, усадьба Трубецких, Счетная палата РФ, офисные центры и ЖК премиум-класса.
Идеально для размещения ресторана, спа-центра, резиденции.

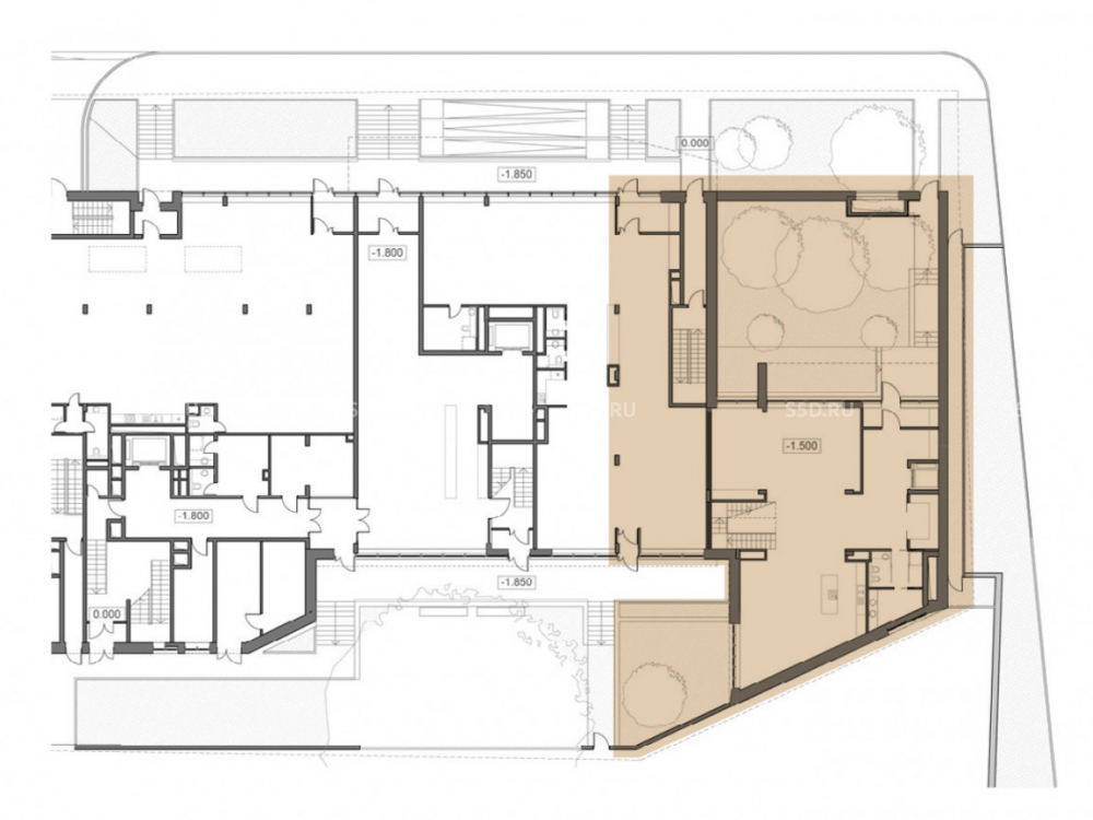
Технические характеристики: Общая площадь 554,5 м2, в том числе:
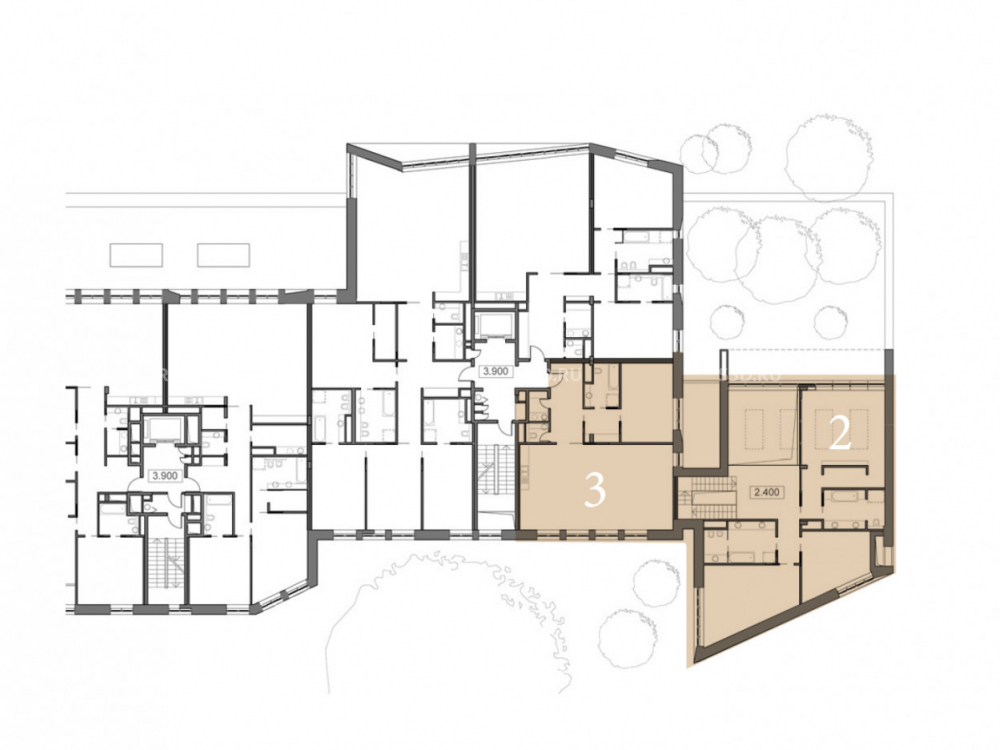
нежилое помещение (вилла), 2 этажа - 440 м2
квартира - 114,5 м2,
3 этаж - соединена с территорией виллы, ранее использовалась в качестве офиса ресторана.

Кроме того, имеется закрытый внутренний двор с террасой общей площадью – 390 м2, также используется собственником.

Эксплуатируемая кровля.

У виллы имеется собственный лифт на подземную парковку.
В лот также входит 4 парковочных места на подземной парковке, находящихся в собственности.
Все центральные городские коммуникации. Электрическая мощность 116 кВт.

Ранее использовалось рестораном люкс-класса, вся технологическая "начинка" ресторана - включая вытяжку, вентиляцию и подъемники сохранена.

Коммерческие условия:
Стоимость объекта - 819 246 200 рублей
Стоимость за 1 кв.м - 1 477 450 рублей

Форма продажи по ДКП, вся сумма в договоре

Технические характеристики

Тип здания: Многофункциональный,Офис,Общепит,Медицина

Общая площадь: 554  м2

Этаж: 1

Всего этажей: 3

Электрическая мощность: 116 кВт

Высота потолков: 4-5

Парковка: да / на улице

Коммерческие условия

Цена за все: 819 246 200 RUB

ФОРМА ВЛАДЕНИЯ: ооо

карта

Расположение

Адрес: Москва, Бурденко д. 3

Округ: Центральный административный округ

Близость метро: Парк культуры

Транспортная доступность: Станция метро

Окружение

Торговое окружение: -

Адрес:

Москва, Бурденко д. 3

Округ:

Центральный административный округ

Близость метро:

Парк культуры

Транспортная доступность:

Станция метро

карта

Торговое окружение:

-

Общая площадь:

554  м2

Этаж:

1

Всего этажей:

3

Тип:

Многофункциональный,Офис,Общепит,Медицина

Электрическая мощность:

116 кВт

Высота потолков:

4-5

Парковка:

да / на улице

ФОРМА ВЛАДЕНИЯ:

ооо

Цена за все:

819 246 200 RUB

Планировка

Назарова Олеся

Ваш брокер по работе с клиентами

Найдите лучшее место
для жизни, бизнеса, инвестиций

Оставьте свои контакты — с вами свяжется руководитель отдела для презентации нужного вам объекта

Похожие объекты