Id 146975

Москва, САО, ул. Софьи Ковалевской 6 / 354 м2 / Продажа ГАБ

адрес Москва, САО, Софьи Ковалевской 6

Апартаменты
Арендный бизнес
Многофункциональный
С отдельным входом
Торговая
Офис
Общепит
Новостройка
Медицина

Окупаемость: 10.1 года

Доходность:9.92%

96 000 000 RUB | за все

(за 1 м2 — 271 186 RUB)

площадь 354.0 м2

QR код Qr код

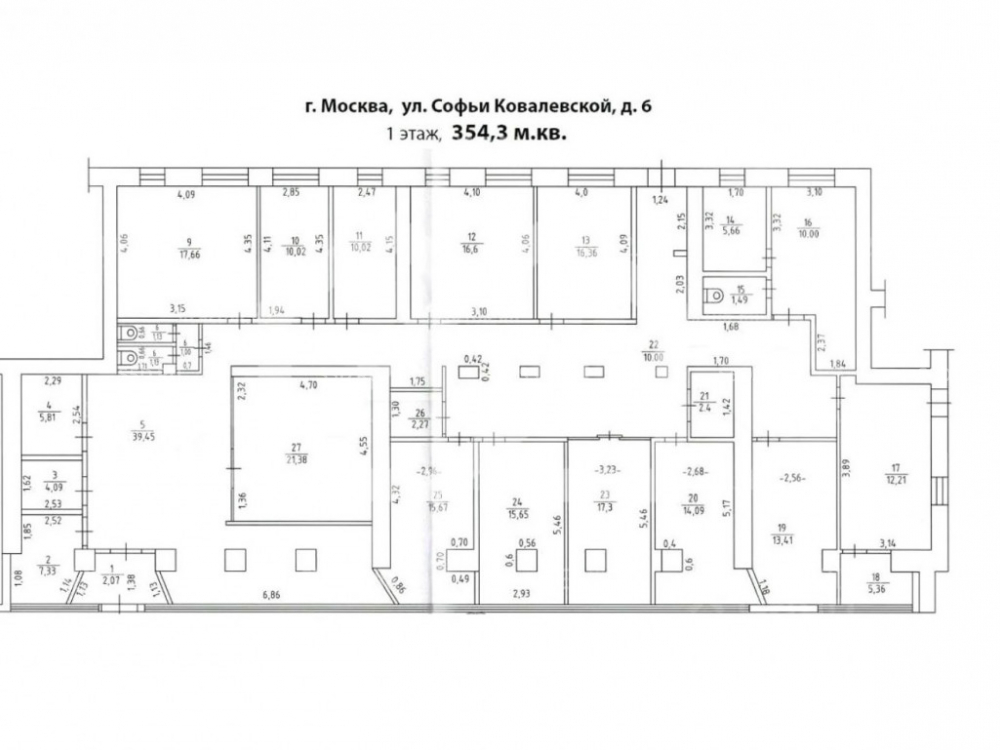
Продается нежилое помещение свободного назначения по адресу: Москва,САО, ул.Софьи Ковалевской дом 6, площадью 354 м². Дом находится на первой линии, в окружении жилого массива. Интенсивный пешеходный трафик. В пешей доступности станция метро "Яхромская".

Торговое соседство: Суши Wok, Аптека, Зоомагазин, супермаркет Пятерочка.

Технические параметры:
1 этаж 9-ти этажного жилого дома, общей площадью 354 м². Три входа: с фасада, со двора и зона разгрузки с торца. Кабинетная планировка, перегородки не несущие (гипсокартон). Выделенная электрическая мощность 30 кВт (можно поднять до 60 кВт). Городские коммуникации. Высота потолка 3,4 метра. Витринное остекление по фасаду.

Арендатор:
Школа английского языка, ДДА.
МАП - 800 000 ₽, ГАП - 9 600 000 ₽

Коммерческие условия:
Стоимость объекта - 96 000 000 ₽
Стоимость за м² - 271 186 ₽

Технические характеристики

Тип здания: Апартаменты,Арендный бизнес,Многофункциональный,С отдельным входом,Торговая,Офис,Общепит,Новостройка,Медицина

Общая площадь: 354  м2

Этаж: 1

Всего этажей: 9

Электрическая мощность: 30

Высота потолков: 3,4

Парковка: есть

Коммерческие условия

Цена за все: 96 000 000 RUB

ФОРМА ВЛАДЕНИЯ: частная собственность

Общий МАП: 800 000 RUB (данный МАП является минимальным, при оптимизации арендаторов арендный поток можно значительно увеличить)

Общий ГАП: 9 600 000 RUB

Окупаемость: 10.1 года

Доходность: 9.92%

карта

Расположение

Адрес: Москва, САО, Софьи Ковалевской 6

Округ: Северный административный округ

Близость метро: Селигерская

Транспортная доступность: есть

Окружение

Торговое окружение: есть

Адрес:

Москва, САО, Софьи Ковалевской 6

Округ:

Северный административный округ

Близость метро:

Селигерская

Транспортная доступность:

есть

карта

Торговое окружение:

есть

Общая площадь:

354  м2

Этаж:

1

Всего этажей:

9

Тип:

Апартаменты,Арендный бизнес,Многофункциональный,С отдельным входом,Торговая,Офис,Общепит,Новостройка,Медицина

Электрическая мощность:

30

Высота потолков:

3,4

Парковка:

есть

ФОРМА ВЛАДЕНИЯ:

частная собственность

Цена за все:

96 000 000 RUB

Общий МАП: 800 000

(данный МАП является минимальным, при оптимизации арендаторов арендный поток можно значительно увеличить)

Общий ГАП:

9 600 000

Окупаемость:

10.1 года

Доходность:

9.92%

Планировка

Эльдар Керимов

Ваш брокер по работе с клиентами

Найдите лучшее место
для жизни, бизнеса, инвестиций

Оставьте свои контакты — с вами свяжется руководитель отдела для презентации нужного вам объекта

Похожие объекты