Id 149051

Москва, ул. Гастелло, 30, ЖК SOKOLNIKI / 46,9 м² / Продажа ПСН

адрес ВАО, Москва, ул. Гастелло, 30, ЖК SOKOLNIKI

С отдельным входом
Торговая
Общепит
Новостройка

36 957 200 RUB | за все

(за 1 м2 — 788 000 RUB)

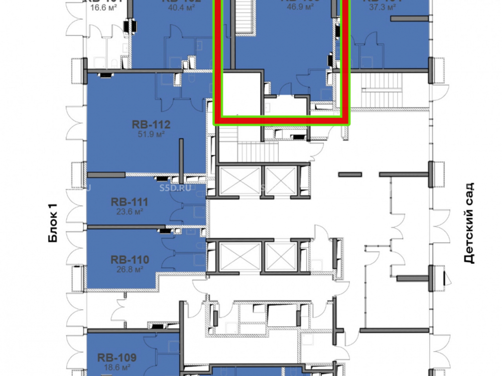
площадь 46.9 м2

QR код Qr код

Продажа помещения свободного назначения расположенного в новом ЖК бизнес-класса SOKOLNIKI, по адресу: ВАО, Москва, ул. Гастелло, 30, площадью 46,9 м². В пешей доступности находятся две станции метро — «Сокольники» и «Электрозаводская». Удобный выезд на ТТК, шоссе Энтузиастов и Садовое кольцо. ЖК состоит из 3 башен высотой 24, 28 и 33 этажа. Включает в себя 763 квартиры (2 289 жителей) с чистовой и дизайнерской отделкой (быстрое заселение). В радиусе 10-15 минутной пешей доступности проживает 12 600 человек (по данным ЦПИ).

Ввод в эксплуатацию 1-й квартал 2027 года.

Технические характеристики :
1 этаж 28-ми этажного жилого дома, площадью 46,9 м². Свободная планировка, высота потолков 5 м, выделенная электрическая мощность 10 кВт (с возможностью увеличения), витринное остекление, место для размещения вывески, индивидуальный вход, мокрая точка в помещении, безбарьерный доступ, мультизональные системы VRF кондиционирования, приточно-вытяжная система вентиляции, внутрипольные конвекторы.

Коммерческие условия :
Стоимость объекта - 36 957 200 ₽,
Стоимость за м² - 718 000 ₽.
Продажа по ДДУ.
Рассрочка с первоначальным взносом от 10%.
Детальная презентация по запросу.

Технические характеристики

Тип здания: С отдельным входом,Торговая,Общепит,Новостройка

Общая площадь: 46.9  м2

Этаж: 1

Всего этажей: 28

Электрическая мощность: 15

Высота потолков: 3

Парковка: есть

Коммерческие условия

Цена за все: 36 957 200 RUB

ФОРМА ВЛАДЕНИЯ: частная собственность

карта

Расположение

Адрес: ВАО, Москва, ул. Гастелло, 30, ЖК SOKOLNIKI

Округ: Восточный административный округ

Близость метро: Сокольники,Электрозаводская

Транспортная доступность: есть

Окружение

Торговое окружение: есть

Адрес:

ВАО, Москва, ул. Гастелло, 30, ЖК SOKOLNIKI

Округ:

Восточный административный округ

Близость метро:

Сокольники,Электрозаводская

Транспортная доступность:

есть

карта

Торговое окружение:

есть

Общая площадь:

46.9  м2

Этаж:

1

Всего этажей:

28

Тип:

С отдельным входом,Торговая,Общепит,Новостройка

Электрическая мощность:

15

Высота потолков:

3

Парковка:

есть

ФОРМА ВЛАДЕНИЯ:

частная собственность

Цена за все:

36 957 200 RUB

Ирина Головина

Ваш брокер по работе с клиентами

Найдите лучшее место
для жизни, бизнеса, инвестиций

Оставьте свои контакты — с вами свяжется руководитель отдела для презентации нужного вам объекта

Похожие объекты