Id 149421

Куприна 1к2 / 838 кв.м. / Аренда помещения свободного назначения

адрес Москва, Куприна 1к2

С отдельным входом
Торговая
Жилой комплекс (мфк)

2 095 000 RUB | в месяц

(за 1 м2 — 2 500 RUB)

площадь 838.0 м2

QR код Qr код

Сдаётся помещение в ЖК Скандинавия.
Лучшая локация в районе - на пересечении главных улиц Эдварда Грига и проспекта Куприна, на трафике от метро, с большой парковкой и зоной разгрузки.
В соседних помещениях сетевые супермаркеты Пятёрочка, ВкусВилл, Винлаб. Высокий пешеходный и автомобильный трафик.
Большая парковка перед зданием.

Технические характеристики:
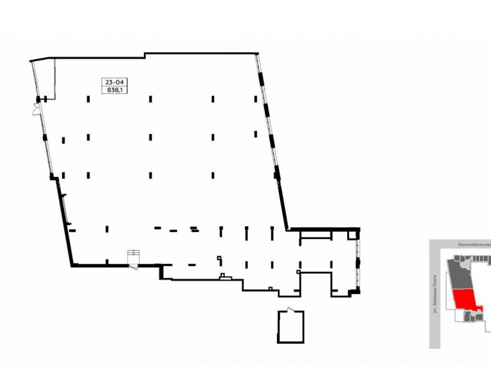
Площадь помещения - 838 кв.м.
Три отдельных входа с фасада, зона разгрузки.
Высота потолков - 5,1 м.
Эл. мощность - 251,4 кВт.
Витринные окна - 3,5 м.
Вентиляция - приточно-вытяжная.
Отопление - центральное.
Вода (ХВС, ГВС) - несколько мокрых точек.
Отделка - без ремонта.

Коммерческие условия:

Арендная ставка в месяц - 2 095 000 рублей
Арендная ставка за 1 кв.м. в месяц - 2 500 рублей
Арендная ставка аренды за 1 кв.м. в год - 30 000 рублей

Технические характеристики

Тип здания: С отдельным входом,Торговая,Жилой комплекс (мфк)

Общая площадь: 838  м2

Этаж: 1

Всего этажей: 16

Электрическая мощность: 251,4 кВт

Высота потолков: 5.1

Парковка: Бесплатная перед зданием

Коммерческие условия

Цена в месяц: 2 095 000 RUB

ФОРМА ВЛАДЕНИЯ: ФЛ

карта

Расположение

Адрес: Москва, Куприна 1к2

Близость метро: Коммунарка

Транспортная доступность: м. Потапово 500м

Окружение

Торговое окружение: Пятёрочка, ВкусВилл

Адрес:

Москва, Куприна 1к2

Округ:

Близость метро:

Коммунарка

Транспортная доступность:

м. Потапово 500м

карта

Торговое окружение:

Пятёрочка, ВкусВилл

Общая площадь:

838  м2

Этаж:

1

Всего этажей:

16

Тип:

С отдельным входом,Торговая,Жилой комплекс (мфк)

Электрическая мощность:

251,4 кВт

Высота потолков:

5.1

Парковка:

Бесплатная перед зданием

ФОРМА ВЛАДЕНИЯ:

ФЛ

Цена в месяц:

2 095 000 RUB

Планировка

Виталий

Ваш брокер по работе с клиентами

Найдите лучшее место
для жизни, бизнеса, инвестиций

Оставьте свои контакты — с вами свяжется руководитель отдела для презентации нужного вам объекта

Похожие объекты