Id 151132

г. Москва, ул. Сосинская, д. 43 - ЖК Champine/ 574,5 м2. / Продажа помещения формата STREET RETAIL.

адрес Москва, ул. Сосинская, д. 43

Многофункциональный
С отдельным входом
Торговая
Новостройка

231 000 000 RUB | за все

(за 1 м2 — 402 439 RUB)

площадь 574.0 м2

QR код Qr код

Предлагается в продажу торговое помещение формата STREET-RETAIL в ЖК бизнес класса Champine. Объект расположен по адресу: г. Москва, ЮВАО, Южнопортовый, ул. Сосинская, д. 43. Ближайшие станции метро: Волгоградский проспект – 12 мин. пешком, Пролетарская - 16 мин. пешком, Дубровка - 17 мин. пешком. Проект находится внутри ТТК. Удобный доступ на общественном транспорте 5 минут до станции метро «Волгоградский проспект». На пересечении ул. Сосинская и Мельникова, прямая видимость с Волгоградского проспекта. Активный район с жилой и офисной застройкой в ближайшем окружении.

Технические характеристики помещения:
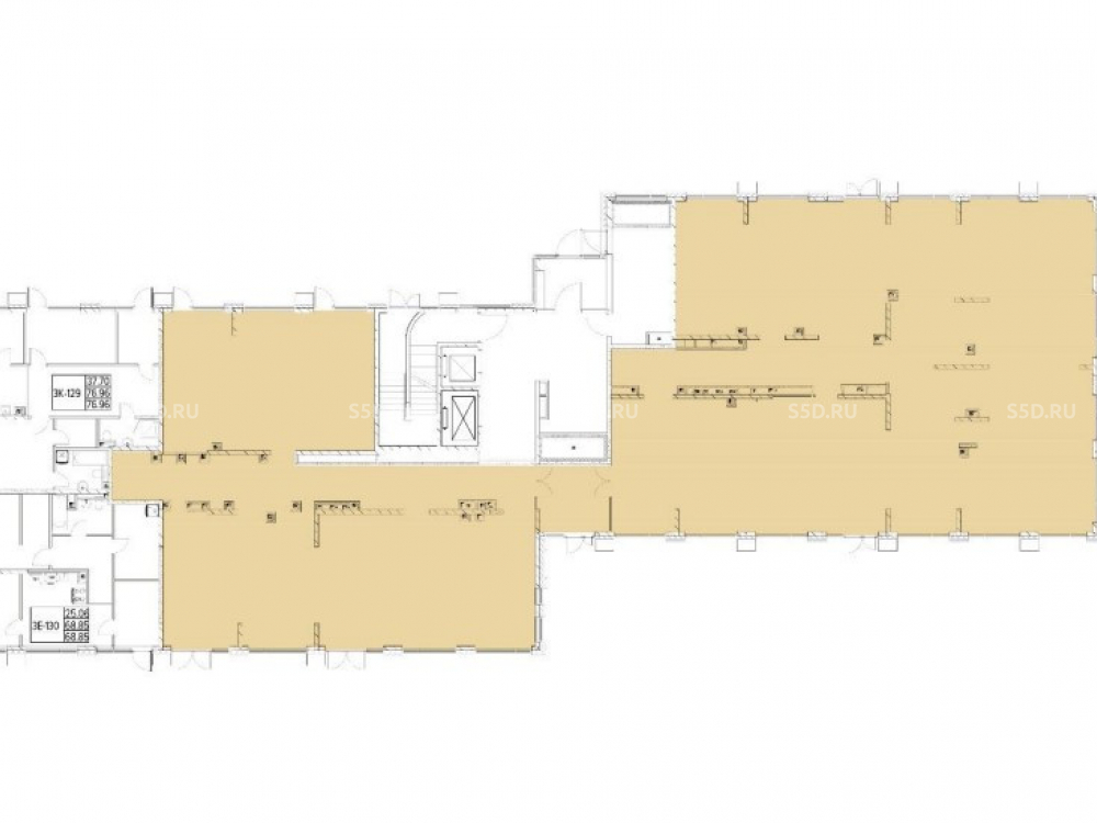
Общая площадь помещения - 569 м2. 1 й этаж. 1 вход с улицы. 1 мокрая точка. Отделка shell&core. Высота потолков 5,7 метров. Эл.мощность - 75 кВт. Витринное остекление. Место под фасадную вывеску. Количество квартир в ЖК, 238.

Коммерческие условия:
Стоимость объекта: 231 000 000 рублей.
Стоимость за 1 кв. м. – 405 975 рублей.

Технические характеристики

Тип здания: Многофункциональный,С отдельным входом,Торговая,Новостройка

Общая площадь: 574  м2

Этаж: 1

Всего этажей: 13

Электрическая мощность: 75 кВт

Высота потолков: 5,7 м

Парковка: есть

Коммерческие условия

Цена за все: 231 000 000 RUB

ФОРМА ВЛАДЕНИЯ: -

карта

Расположение

Адрес: Москва, ул. Сосинская, д. 43

Округ: Юго-Восточный административный округ

Близость метро: Волгоградский проспект,Дубровка (Люблинско-Дмитровская),Пролетарская

Транспортная доступность: Волгоградский проспект – 12 мин. пешком, Пролетарская - 16 мин. пешком, Дубровка - 17 мин. пешком. Проект находится внутри ТТК. Удобный доступ на общественном транспорте 5 минут до станции метро «Волгоградский проспект».

Окружение

Торговое окружение: -

Адрес:

Москва, ул. Сосинская, д. 43

Округ:

Юго-Восточный административный округ

Близость метро:

Волгоградский проспект,Дубровка (Люблинско-Дмитровская),Пролетарская

Транспортная доступность:

Волгоградский проспект – 12 мин. пешком, Пролетарская - 16 мин. пешком, Дубровка - 17 мин. пешком. Проект находится внутри ТТК. Удобный доступ на общественном транспорте 5 минут до станции метро «Волгоградский проспект».

карта

Торговое окружение:

-

Общая площадь:

574  м2

Этаж:

1

Всего этажей:

13

Тип:

Многофункциональный,С отдельным входом,Торговая,Новостройка

Электрическая мощность:

75 кВт

Высота потолков:

5,7 м

Парковка:

есть

ФОРМА ВЛАДЕНИЯ:

-

Цена за все:

231 000 000 RUB

Планировка

Александр Невский

Ваш брокер по работе с клиентами

Найдите лучшее место
для жизни, бизнеса, инвестиций

Оставьте свои контакты — с вами свяжется руководитель отдела для презентации нужного вам объекта

Похожие объекты