Id 151822

Дербеневская наб., дом 1, стр.5/155,8 кв.м./ продажа ПСН в клубном доме DeLuxe класса ЖК OPUS

адрес жилой комплекс OPUS, 1й Дербеневский пер.

С отдельным входом
Торговая
Жилой комплекс (мфк)
Новостройка

135 951 080 RUB | за все

(за 1 м2 — 872 600 RUB)

площадь 155.8 м2

QR код Qr код

Предлагается в продажу торговое помещение в клубном доме DeLuxe по адресу: г. Москва, Дербеневская наб., дом 1, ЖК OPUS, всего в 1 мин. от Садового кольца, 7 мин. езды от Кремля по набережной. Первая линия Москвы-реки, рядом с историческим центром.

Срок передачи ключей 2 кв. 2026 г.

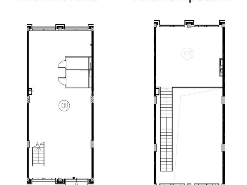
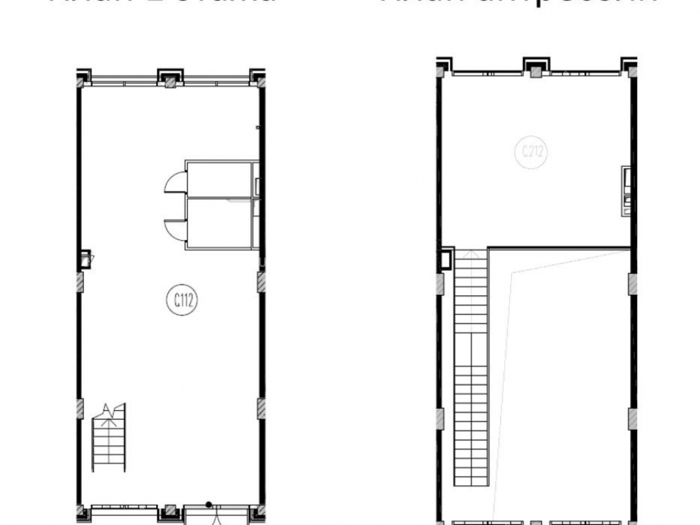
Технические характеристики: общая площадь 155,8 кв.м. • первый этаж с антресолью в жилом 12 этажного дома • электроэнергия 31,16 кВт. • отдельных вход • без отделки • площадь 1го этажа 112,8 кв.м., антресоль 43,1 кв.м.

Коммерческие условия:
• Стоимость 135 951 080 рублей
• Стоимость кв.м. 872 600 рублей
• Продажа по ДДУ от юр.лица

Технические характеристики

Тип здания: С отдельным входом,Торговая,Жилой комплекс (мфк),Новостройка

Общая площадь: 155.8  м2

Этаж: 1

Всего этажей: 2

Электрическая мощность: 20 кВт

Высота потолков: 6

Парковка: наземная

Коммерческие условия

Цена за все: 135 951 080 RUB

ФОРМА ВЛАДЕНИЯ: ДДУ

карта

Расположение

Адрес: жилой комплекс OPUS, 1й Дербеневский пер.

Округ: Южный административный округ

Близость метро: Павелецкая

Транспортная доступность: 10 мин. тр. до МЦД Одинцово, Сколково; 25 мин. тр. до м. Славянский б-р

Окружение

Торговое окружение: жилой массив

Адрес:

жилой комплекс OPUS, 1й Дербеневский пер.

Округ:

Южный административный округ

Близость метро:

Павелецкая

Транспортная доступность:

10 мин. тр. до МЦД Одинцово, Сколково; 25 мин. тр. до м. Славянский б-р

карта

Торговое окружение:

жилой массив

Общая площадь:

155.8  м2

Этаж:

1

Всего этажей:

2

Тип:

С отдельным входом,Торговая,Жилой комплекс (мфк),Новостройка

Электрическая мощность:

20 кВт

Высота потолков:

6

Парковка:

наземная

ФОРМА ВЛАДЕНИЯ:

ДДУ

Цена за все:

135 951 080 RUB

Планировка

Шаклеина Юлия

Ваш брокер по работе с клиентами

Найдите лучшее место
для жизни, бизнеса, инвестиций

Оставьте свои контакты — с вами свяжется руководитель отдела для презентации нужного вам объекта

Похожие объекты