Id 151920

МО, г. Люберцы, ул. Рождественская, д.6, к 4.2 - 487,7 кв.м/ Помещение под автомойку в ЖК 1й Лермонтовский

адрес Люберцы, Рождественская улица, 4

Автобизнес

53 647 000 RUB | за все

(за 1 м2 — 110 000 RUB)

площадь 487.7 м2

QR код Qr код

Продажа помещения под автомойку в ЖК 1-й Лермонтовский.
Адрес: МО, г. Люберцы, ул. Рождественская, д.6, к 4.2
Ближайшая станция метро Некрасовка (5 минут транспортом)

На территории 17 га будет построено пять 25 этажных многосекционных корпусов с населением более 8 000 человек.

Технические характеристики:
Общая площадь 487,7 кв.м;
- 1 этаж, многосекционного 25 этажного здания.
Без отделки
Выделенная мощность – 0,2 кВт на м2 (возможно докупить дополнительные кВт)
Современная инженерия
Корпус сдан, идет выдача ключей.

Коммерческие условия:
Стоимость объекта: 53 647 000 руб.
Стоимость за 1 кв.м.: 110 000 руб.

Технические характеристики

Тип здания: Автобизнес

Общая площадь: 487.7  м2

Этаж: -1

Всего этажей: 25

Электрическая мощность: 0,2 кВт на м2 (возможно докупить дополнительные кВт)

Высота потолков: -

Парковка: свободная и многоуровневый паркинг

Коммерческие условия

Цена за все: 53 647 000 RUB

ФОРМА ВЛАДЕНИЯ: -

карта

Расположение

Адрес: Люберцы, Рождественская улица, 4

Округ: Юго-Восточный административный округ

Близость метро: Некрасовка

Транспортная доступность: Ближайшая станция метро Некрасовка (5 минут транспортом)

Окружение

Торговое окружение: развивающееся

Адрес:

Люберцы, Рождественская улица, 4

Округ:

Юго-Восточный административный округ

Близость метро:

Некрасовка

Транспортная доступность:

Ближайшая станция метро Некрасовка (5 минут транспортом)

карта

Торговое окружение:

развивающееся

Общая площадь:

487.7  м2

Этаж:

-1

Всего этажей:

25

Тип:

Автобизнес

Электрическая мощность:

0,2 кВт на м2 (возможно докупить дополнительные кВт)

Высота потолков:

-

Парковка:

свободная и многоуровневый паркинг

ФОРМА ВЛАДЕНИЯ:

-

Цена за все:

53 647 000 RUB

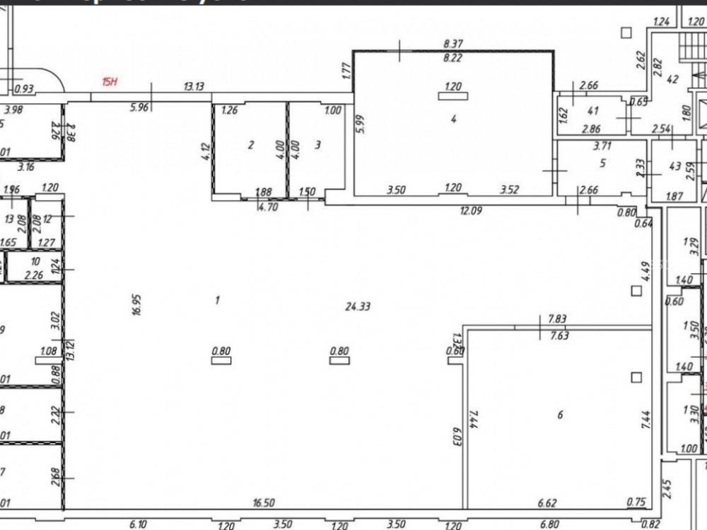
Планировка

Шагитов Марат

Ваш брокер по работе с клиентами

Найдите лучшее место
для жизни, бизнеса, инвестиций

Оставьте свои контакты — с вами свяжется руководитель отдела для презентации нужного вам объекта

Похожие объекты