Id 160783

Малая Тульская улица, 57к1 - 471 кв. м. - Продажа / Автосервис / ОСЗ

адрес Москва, Малая Тульская улица, 57к1

Особняк/здание
С отдельным входом
Торговая
Автобизнес

161 000 000 RUB | за все

(за 1 м2 — 341 826 RUB)

площадь 471.0 м2

QR код Qr код

Продажа отдельно стоящего здания (Автосервис).
Адрес: г. Москва, ул. Малая Тульская, д. 57, корп. 1 (первая линия). В пешей доступности станции метро: «Тульская» — 11 минут пешком, «Крымская» — 16 минут пешком. Удобный выезд в центр города, на Третье транспортное кольцо, Варшавское и Загородное шоссе. Рядом остановки общественного транспорта. Высокий пешеходный и автомобильный трафик. В шаговой доступности — крупные торговые центры, магазины, кафе, рестораны. Отсутствие жилых домов рядом.

Технические характеристики:
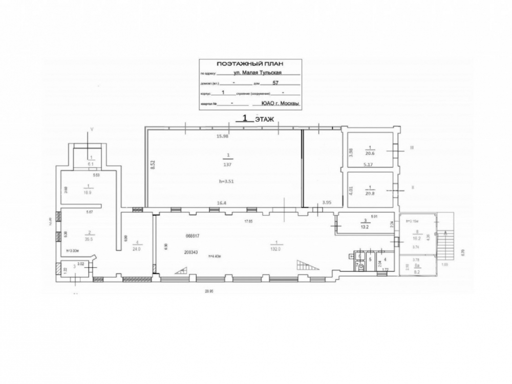
Площадь здания: 471 кв. м.
2 этажа, высота потолков — 4,5 м.
Земельный участок: 2060 кв. м (оформляется в долгосрочную аренду).
Здание разделено на функциональные помещения.
Коммуникации: центральные (электричество — 100 кВт с возможностью увеличения, водоснабжение, канализация, интернет).
Договоры: действующие с Мосводоканалом, Мосэнергосбытом.
Автономное отопление, круглосуточный доступ.
Парковка: бесплатная, на 50 машино-мест, подходит для грузового транспорта.

Подходит для автосалона, автосервиса, автомойки, распределительного центра, производственного предприятия, склада или торговой площадки.
В настоящее время в здании работают автомойка, шиномонтаж и чайхана.

Коммерческие условия:
Стоимость объекта: 161 000 000 рублей.
Стоимость за 1 кв. м.: 342 553 рубля.
Потенциальный доход: 3 500 000 рублей в месяц (окупаемость — около 4 лет).

Технические характеристики

Тип здания: Особняк/здание,С отдельным входом,Торговая,Автобизнес

Общая площадь: 471  м2

Этаж: 1

Всего этажей: 2

Электрическая мощность: 100 кВт с возможностью увеличения

Высота потолков: 4.5 м

Парковка: наземная на 50 м/мест

Коммерческие условия

Цена за все: 161 000 000 RUB

ФОРМА ВЛАДЕНИЯ: по запросу

карта

Расположение

Адрес: Москва, Малая Тульская улица, 57к1

Близость метро: Крымская,Тульская

Транспортная доступность: в пешей доступности

Окружение

Торговое окружение: развитая инфраструктура

Адрес:

Москва, Малая Тульская улица, 57к1

Округ:

Близость метро:

Крымская,Тульская

Транспортная доступность:

в пешей доступности

карта

Торговое окружение:

развитая инфраструктура

Общая площадь:

471  м2

Этаж:

1

Всего этажей:

2

Тип:

Особняк/здание,С отдельным входом,Торговая,Автобизнес

Электрическая мощность:

100 кВт с возможностью увеличения

Высота потолков:

4.5 м

Парковка:

наземная на 50 м/мест

ФОРМА ВЛАДЕНИЯ:

по запросу

Цена за все:

161 000 000 RUB

Планировка

Степанов Анатолий

Ваш брокер по работе с клиентами

Найдите лучшее место
для жизни, бизнеса, инвестиций

Оставьте свои контакты — с вами свяжется руководитель отдела для презентации нужного вам объекта

Похожие объекты