Id 160786

Марксистская улица, 22с4 - 195 кв. м. - Продажа / ОСЗ / Автосервис

адрес Москва, Марксистская улица, 22с4

С отдельным входом
Торговая
Автобизнес
Склад

61 000 000 RUB | за все

(за 1 м2 — 312 821 RUB)

площадь 195.0 м2

QR код Qr код

Продажа здания для автосервиса, мойки или производства.
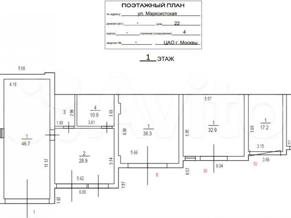
Адрес: г. Москва, ЦАО, Марксистская ул., 22с4.
В 6 минутах ходьбы станции метро «Марксистская» и «Таганская». Высокий пешеходный и автомобильный поток. Удобный выезд в центр города и на Третье транспортное кольцо. Развитая инфраструктура: рядом остановки общественного транспорта, крупные торговые центры, магазины, кафе и рестораны.

Технические характеристики:
Площадь здания: 195 кв. м.
Земельный участок: 638 кв. м (оформляется в долгосрочную аренду).
Обособленная территория, c собственным въездом /выездом.
Отдельный вход с улицы.
Высота потолков: 4 м.
Чистовая отделка.
Коммуникации: электричество — 150 кВт (с возможностью увеличения), автономное отопление.
Круглосуточный доступ, парковочные места на 15-20 автомобилей.

Объект универсален и подходит для размещения автосервиса, автомойки, производственного цеха, склада, распределительного центра или торговой площадки.

Коммерческие условия:
Стоимость объекта: 61 000 000 рублей.
Стоимость за 1 кв. м.: 312 821 рубль.

Технические характеристики

Тип здания: С отдельным входом,Торговая,Автобизнес,Склад

Общая площадь: 195  м2

Этаж: 1

Всего этажей: 1

Электрическая мощность: 150 кВт с возможностью увеличения

Высота потолков: 4 м

Парковка: наземная на 15-20 м/мест

Коммерческие условия

Цена за все: 61 000 000 RUB

ФОРМА ВЛАДЕНИЯ: по запросу

карта

Расположение

Адрес: Москва, Марксистская улица, 22с4

Округ: Центральный административный округ

Близость метро: Марксистская,Таганская

Транспортная доступность: в пешей доступности

Окружение

Торговое окружение: развитая инфраструктура

Адрес:

Москва, Марксистская улица, 22с4

Округ:

Центральный административный округ

Близость метро:

Марксистская,Таганская

Транспортная доступность:

в пешей доступности

карта

Торговое окружение:

развитая инфраструктура

Общая площадь:

195  м2

Этаж:

1

Всего этажей:

1

Тип:

С отдельным входом,Торговая,Автобизнес,Склад

Электрическая мощность:

150 кВт с возможностью увеличения

Высота потолков:

4 м

Парковка:

наземная на 15-20 м/мест

ФОРМА ВЛАДЕНИЯ:

по запросу

Цена за все:

61 000 000 RUB

Планировка

Степанов Анатолий

Ваш брокер по работе с клиентами

Найдите лучшее место
для жизни, бизнеса, инвестиций

Оставьте свои контакты — с вами свяжется руководитель отдела для презентации нужного вам объекта

Похожие объекты