Id 152237

Москва, ул. Верейская, дом 41, корп. 3.2, секция 1/ ЖК Верейская 41/ 47,6кв.м./ продажа ПСН в новостройке

адрес Москва, ЖК Верейская 41, 3.2

С отдельным входом
Торговая
Жилой комплекс (мфк)
Новостройка

38 787 153 RUB | за все

(за 1 м2 — 814 856 RUB)

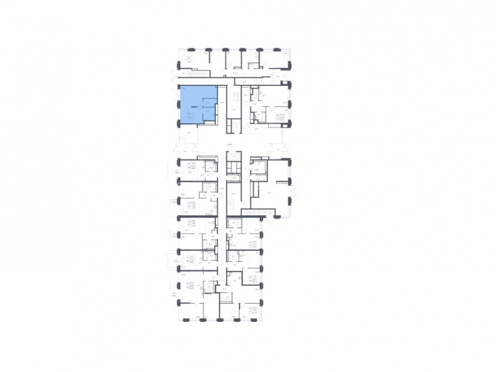
площадь 47.6 м2

QR код Qr код

Предлагается в продажу торговое помещение в ЖК бизнес класса Верейская 41 по адресу: ул. Верейская 41, корп.3.2 секция 1. Данный жилой комплекс представляет собой урбан-блоки средней этажности из 10 корпусов. Дома возведены по долговечной кирпично-монолитной технологии. В облицовке фасадов зданий используется навесной вентилируемый фасад. Проект расположен в Можайском районе. В пешей доступности находятся станция метро «Давыдково» и остановки общественного транспорта. До Москва-Сити всего 20 минут транспортом.

Торговое окружение: автосервис Автоклондайк клуб, автозаправка, Чайхона, Столовая 24. Хороший потенциал для открытия новых торговых помещений для будущих жильцов данного комплекса.

Срок ввода в эксплуатацию - 4 кв. 2025 г.

Технические характеристики: общая площадь 47,6 кв.м. • первый этаж жилого 14 этажного дома • электроэнергия 10 кВт. • отдельный 1 вход со двора • двор огорожен забором • без отделки • высота потолков 6 метра • панорамные окна.

Коммерческие условия:
• Стоимость 38 787 153 рублей
• Стоимость кв.м. 815 027 рублей
• Потенциальный МАП 350 000 рублей/ потенциальный ГАП 4 200 000 рублей
• Потенциальный срок окупаемости 9,2 лет
• Продажа по ДДУ от юр. лица
• Возможна рассрочка

Технические характеристики

Тип здания: С отдельным входом,Торговая,Жилой комплекс (мфк),Новостройка

Общая площадь: 47.6  м2

Этаж: 1

Всего этажей: 14

Электрическая мощность: 10 кВт

Высота потолков: 6

Парковка: наземная, подземная

Коммерческие условия

Цена за все: 38 787 153 RUB

ФОРМА ВЛАДЕНИЯ: ДДУ

карта

Расположение

Адрес: Москва, ЖК Верейская 41, 3.2

Округ: Западный административный округ

Близость метро: Давыдково

Транспортная доступность: 20 мин. пешком от метро Давыдково

Окружение

Торговое окружение: автосервис Автоклондайк клуб, автозаправка, Чайхона, Столовая 24

Адрес:

Москва, ЖК Верейская 41, 3.2

Округ:

Западный административный округ

Близость метро:

Давыдково

Транспортная доступность:

20 мин. пешком от метро Давыдково

карта

Торговое окружение:

автосервис Автоклондайк клуб, автозаправка, Чайхона, Столовая 24

Общая площадь:

47.6  м2

Этаж:

1

Всего этажей:

14

Тип:

С отдельным входом,Торговая,Жилой комплекс (мфк),Новостройка

Электрическая мощность:

10 кВт

Высота потолков:

6

Парковка:

наземная, подземная

ФОРМА ВЛАДЕНИЯ:

ДДУ

Цена за все:

38 787 153 RUB

Планировка

Надежда Лежнина

Ваш брокер по работе с клиентами

Найдите лучшее место
для жизни, бизнеса, инвестиций

Оставьте свои контакты — с вами свяжется руководитель отдела для презентации нужного вам объекта

Похожие объекты