Id 153006

ул. Кувекинская, Новая Москва/ 2454 кв.м./ продажа склада в промышленном парке

адрес промышленный парк Кувекино, Новая Москва

Новостройка
Склад

352 978 452 RUB | за все

(за 1 м2 — 143 838 RUB)

площадь 2 454.0 м2

QR код Qr код

Предлагается в продажу склад в промышленном парке Кувекино по адресу: г. Москва, поселение Десеновское, вблизи деревень Кувекино и Евсеево, в 16 км от МКАД по Калужскому или Варшавскому шоссе. В непосредственной близости расположены города Троицк и Подольск. Отличную транспортную доступность обеспечивает удобный заезд на Калужское и Варшавское шоссе. Метро «Ольховая» в 30 минутах транспортом.

Проект представляет собой современный мультиформатный комплекс класса А, созданный для размещения легких производств и логистики. Парк включает в себя 10 зданий, а его общая площадь составляет 340 тыс. кв. метров. Фасады зданий выполнены из трехслойных сэндвич-панелей поэтапной сборки. В придоковой зоне используются железобетонные конструкции. Полы представляют собой железобетонную плиту с антипылевым покрытием. Кровля утеплена минеральной ватой. Здания имеют большую площадь остекления с тонировкой стекол.


Управляющая компания осуществляет грамотное и эффективное управление комплексом. В ее компетенции входят клининг, техническая эксплуатация, безопасность и контроль доступа, а также уборка прилегающей территории. Резиденты могут заключить индивидуальные договоры на обслуживание помещений.

Срок ввода в эксплуатацию - 3 кв. 2026 г.

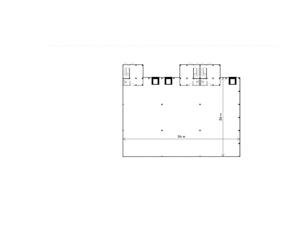
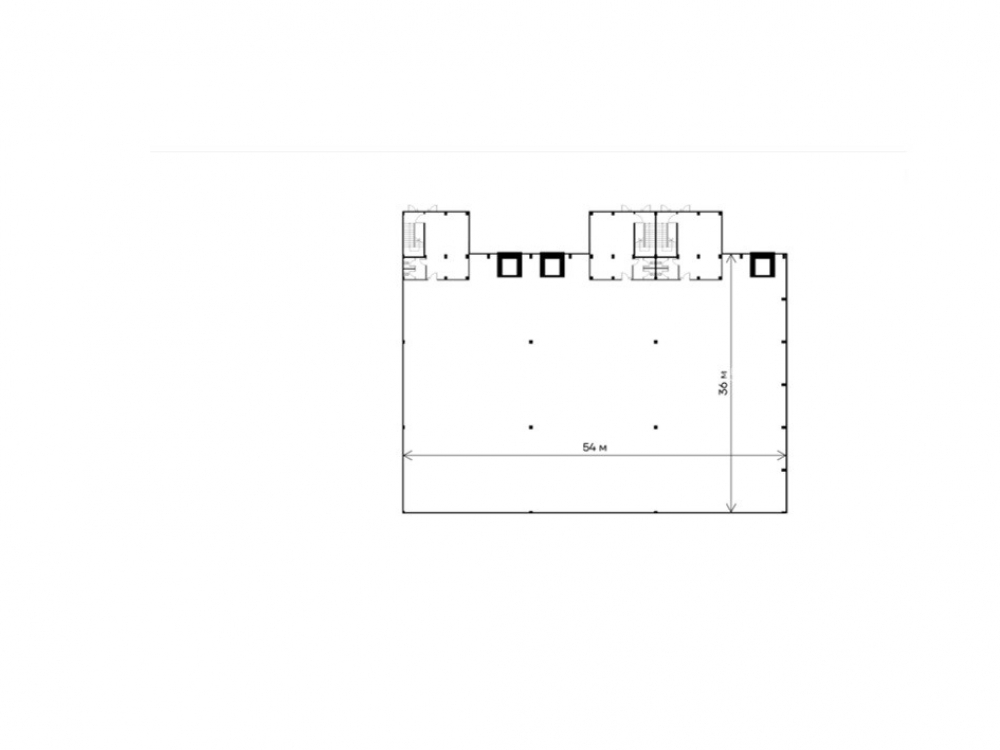
Технические характеристики: общая площадь 2 454 кв.м. • отдельных 6 входа • потолки 8 метров • нагрузка на пол 5000 кг/м² • антипылевое покрытие • шаг колонн 12х18 м • двухуровневое офисное помещение с чистовой отделкой, промышленно-складская зона без отделки • зона разгрузки с погрузочными доками на уровне 1,2 м от земли или ворота на уровне 0 м. • по запросу возможна установка въездной рампы или пандуса • электричество 73,62 кВт (c возможностью увеличения) • центральные коммуникации.

Коммерческие условия:
• Стоимость 352 978 452 рублей
• Стоимость кв.м. 143 838 рублей
• Продажа по договору КПБН от юр.лица
• Возможна рассрочка

Технические характеристики

Тип здания: Новостройка,Склад

Общая площадь: 2454  м2

Этаж: 1

Всего этажей: 2

Электрическая мощность: 72 кВт

Высота потолков: 8

Парковка: наземная

Коммерческие условия

Цена за все: 352 978 452 RUB

ФОРМА ВЛАДЕНИЯ: КПБН

карта

Расположение

Адрес: промышленный парк Кувекино, Новая Москва

Близость метро: Ольховая

Транспортная доступность: Метро «Ольховая» в 30 минутах транспортом

Окружение

Торговое окружение: частный сектор

Адрес:

промышленный парк Кувекино, Новая Москва

Округ:

Близость метро:

Ольховая

Транспортная доступность:

Метро «Ольховая» в 30 минутах транспортом

карта

Торговое окружение:

частный сектор

Общая площадь:

2454  м2

Этаж:

1

Всего этажей:

2

Тип:

Новостройка,Склад

Электрическая мощность:

72 кВт

Высота потолков:

8

Парковка:

наземная

ФОРМА ВЛАДЕНИЯ:

КПБН

Цена за все:

352 978 452 RUB

Планировка

Надежда Лежнина

Ваш брокер по работе с клиентами

Найдите лучшее место
для жизни, бизнеса, инвестиций

Оставьте свои контакты — с вами свяжется руководитель отдела для презентации нужного вам объекта

Похожие объекты