Id 158075

Годовикова, 11к4 - 3556,1 кв. м. - Продажа ОСЗ / ДОУ / Детский сад/Школа

адрес Москва, улица Годовикова, 11к4

Многофункциональный
Особняк/здание
С отдельным входом
Офис
Жилой комплекс (мфк)
Новостройка

300 000 000 RUB | за все

(за 1 м2 — 84 362 RUB)

площадь 3 556.1 м2

QR код Qr код

Продается здание под дошкольное образовательное учреждение (ДОУ) в престижном жилом квартале бизнес-класса iLove.
Адрес: г. Москва, СВАО, Останкинский район, ул. Годовикова, 11к4. 10 минут пешком от станции метро «Алексеевская». Район отличается развитой инфраструктурой и высоким трафиком, а в шаговой доступности расположены остановки общественного транспорта.
ЖК iLove — это современный семейный квартал бизнес-класса, представляющий новую концепцию комфортной городской среды. В составе комплекса 5 монолитных корпусов переменной этажности с благоустроенными дворами, детскими площадками и подземными паркингами. Общее количество квартир — 2 437. Сдача проекта запланирована на 4 квартал 2024 года.

Технические характеристики:
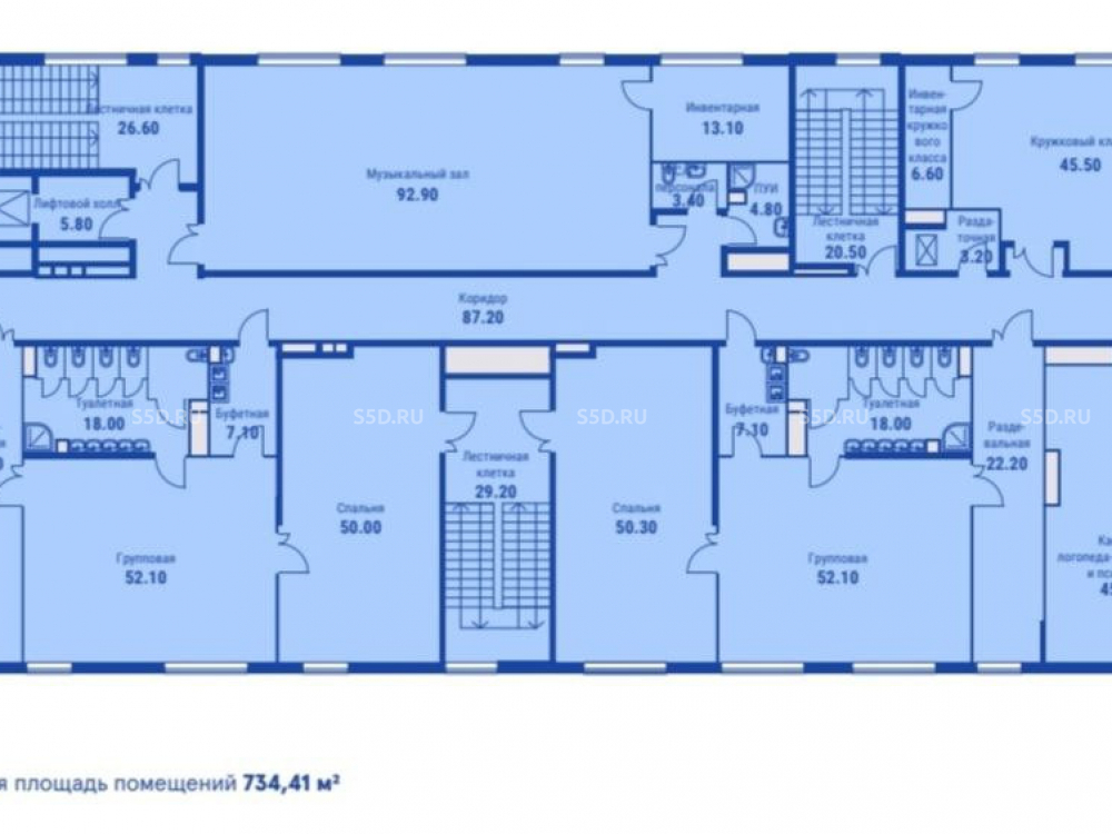
Общая площадь здания: 3 556,1 кв. м., вместимость: 225 детей. Этажность: 3 надземных этажа + технический подземный этаж (-1).
Площади по этажам: -1 этаж: 766,67 кв. м. (технические и вспомогательные помещения). 1 этаж: 1 324,09 кв. м.; 2 этаж: 734,16 кв. м.; 3 этаж: 734,41 кв. м. Высота потолка - 3,3 м. Электрическая мощность уточняются по запросу.
Площадь участка ДОО 4707 м2. Количество детских площадок 6. Количество физкультурных площадок 1.

Идеально для:
Частного детского сада, образовательного центра премиум-класса, центра раннего развития или франшизы.

Коммерческие условия:
Стоимость объекта: 300 000 000 руб.
Стоимость за 1 кв. м.: 84 328 руб.

Технические характеристики

Тип здания: Многофункциональный,Особняк/здание,С отдельным входом,Офис,Жилой комплекс (мфк),Новостройка

Общая площадь: 3556.1  м2

Этаж: 1

Всего этажей: 9

Электрическая мощность: по запросу

Высота потолков: по запросу

Парковка: по запросу

Коммерческие условия

Цена за все: 300 000 000 RUB

ФОРМА ВЛАДЕНИЯ: ООО

карта

Расположение

Адрес: Москва, улица Годовикова, 11к4

Округ: Северо-Восточный административный округ

Близость метро: Алексеевская

Транспортная доступность: в пешей доступности

Окружение

Торговое окружение: развитое торговое окружение

Адрес:

Москва, улица Годовикова, 11к4

Округ:

Северо-Восточный административный округ

Близость метро:

Алексеевская

Транспортная доступность:

в пешей доступности

карта

Торговое окружение:

развитое торговое окружение

Общая площадь:

3556.1  м2

Этаж:

1

Всего этажей:

9

Тип:

Многофункциональный,Особняк/здание,С отдельным входом,Офис,Жилой комплекс (мфк),Новостройка

Электрическая мощность:

по запросу

Высота потолков:

по запросу

Парковка:

по запросу

ФОРМА ВЛАДЕНИЯ:

ООО

Цена за все:

300 000 000 RUB

Планировка

Петр Соловьев

Ваш брокер по работе с клиентами

Найдите лучшее место
для жизни, бизнеса, инвестиций

Оставьте свои контакты — с вами свяжется руководитель отдела для презентации нужного вам объекта

Похожие объекты