Id 154034

ЖК Дзен-кварталы, 6.1.4 / Продажа Аренлный бизнес Супермаркет / Вытяжка / 351,1 кв.м.

адрес ЖК Дзен-кварталы, 6.1.4

Арендный бизнес
С отдельным входом
Торговая
Общепит

Окупаемость: 11.4 года

Доходность:8.76%

135 000 000 RUB | за все

(за 1 м2 — 384 506 RUB)

площадь 351.1 м2

QR код Qr код

Предлагается к продаже торговое помещение общей площадью 352.1 кв.м. по адресу: Москва, НАО, поселение Сосенское, ЖК Дзен-кварталы, корп. 6.1.4. Новый микрорайон плотной жилой застройки, около 14500 жителей. Комплекс расположен вдоль береговой линии Ивановского пруда и реки Варварки. ЖК предусматривает дома комфорт и бизнес-класса переменной этажности. В пешей доступности остановка общественного транспорта. 7 км до МКАД, 5 минут пешком до метро «Новомосковская» и «Потапово».
Срок сдачи дома - III кв. 2026 г.

Технические условия:
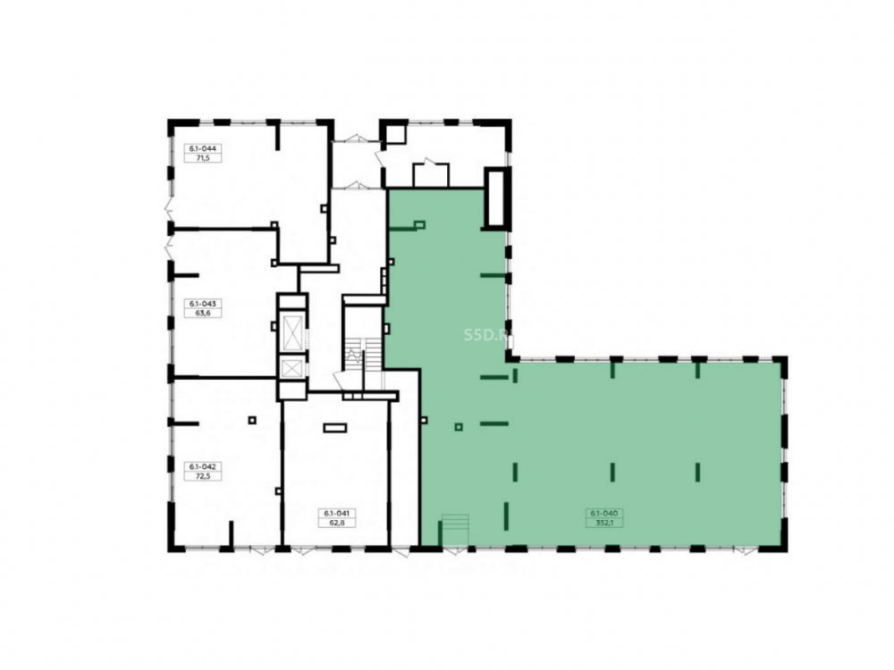
Площадь 351.1 кв.м., 1 этаж 11-ти этажного монолитного дома, две отдельные входные группы, высота потолка 5.71 м. Мощность э/э - 105.6 кВт, есть возможность увеличения. Все коммуникации городские: ГВС, ХВС, канализация, пожарная сигнализация. Тех. параметры вентиляции Ø100; Ø100;1000х500

Коммерческие условия:
Стоимость объекта: 135 000 000 рублей.
Стоимость объекта 1 кв.м. 384 506 рублей.

Дикси. Договор на 5 лет.
Арендный поток в месяц 809 830 рублей.
Арендный поток в год 9 717 960 рублей.

С 3его года в месяц 1 197 140 рублей.
Арендный поток в год 14 365 680 рублей.

Привязка к РТО 6%.

Технические характеристики

Тип здания: Арендный бизнес,С отдельным входом,Торговая,Общепит

Общая площадь: 351.1  м2

Этаж: 1

Всего этажей: 11

Электрическая мощность: 105.6 кВт.

Высота потолков: 5.71 м.

Парковка: Подземный паркинг.

Коммерческие условия

Цена за все: 135 000 000 RUB

ФОРМА ВЛАДЕНИЯ: Долевое участие в строительстве.

Общий МАП: 985 880 RUB (данный МАП является минимальным, при оптимизации арендаторов арендный поток можно значительно увеличить)

Общий ГАП: 11 830 560 RUB

Окупаемость: 11.4 года

Доходность: 8.76%

карта

Расположение

Адрес: ЖК Дзен-кварталы, 6.1.4

Округ: Юго-Западный административный округ

Близость метро: Коммунарка

Транспортная доступность: В пешей доступности остановка общественного транспорта. 7 км до МКАД, 5 минут пешком до метро «Новомосковская» и «Потапово».

Окружение

Торговое окружение: На первых этажа заплниррован формат street retail.

Адрес:

ЖК Дзен-кварталы, 6.1.4

Округ:

Юго-Западный административный округ

Близость метро:

Коммунарка

Транспортная доступность:

В пешей доступности остановка общественного транспорта. 7 км до МКАД, 5 минут пешком до метро «Новомосковская» и «Потапово».

карта

Торговое окружение:

На первых этажа заплниррован формат street retail.

Общая площадь:

351.1  м2

Этаж:

1

Всего этажей:

11

Тип:

Арендный бизнес,С отдельным входом,Торговая,Общепит

Электрическая мощность:

105.6 кВт.

Высота потолков:

5.71 м.

Парковка:

Подземный паркинг.

ФОРМА ВЛАДЕНИЯ:

Долевое участие в строительстве.

Цена за все:

135 000 000 RUB

Общий МАП: 985 880

(данный МАП является минимальным, при оптимизации арендаторов арендный поток можно значительно увеличить)

Общий ГАП:

11 830 560

Окупаемость:

11.4 года

Доходность:

8.76%

Планировка

Шорин Владимир

Ваш брокер по работе с клиентами

Найдите лучшее место
для жизни, бизнеса, инвестиций

Оставьте свои контакты — с вами свяжется руководитель отдела для презентации нужного вам объекта

Похожие объекты