Id 154876

Московская обл., Балашиха, ул. Свердлова, 53 - 1907.1 м² / Продажа нежилого помещения

адрес Московская обл., Балашиха, ул. Свердлова, 53

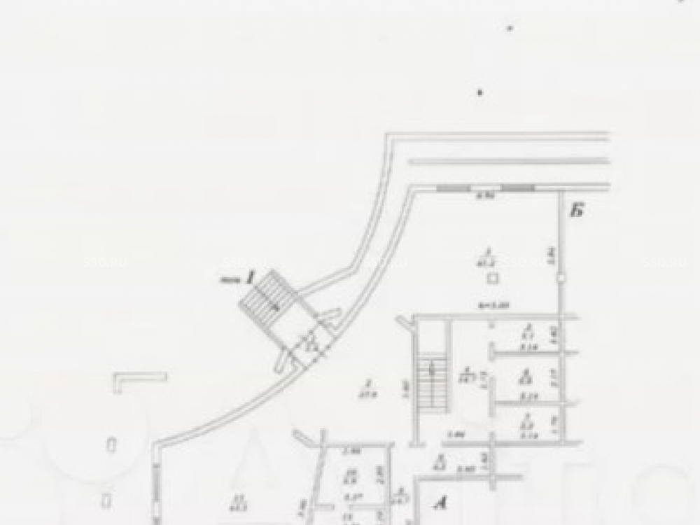
С отдельным входом
Торговая

135 000 000 RUB | за все

(за 1 м2 — 70 792 RUB)

площадь 1 907.0 м2

QR код Qr код

Предлагается в продажу нежилое помещение, расположенное по адресу: Московская обл., Балашиха, ул. Свердлова, 53.
В непосредственной близости расположен пешеходный переход и остановка наземного транспорта. Ж/д станция "Балашиха" расположена в 10 минутах на транспорте. Станция метро "Щёлковская" расположена в 30 минутах на транспорте.
В окружении объекта плотный жилой массив, ЖК "Пехра", ЖК Балашиха-парк.
Торговое окружение: Дикси, Красное-белое.

Технические характеристики:
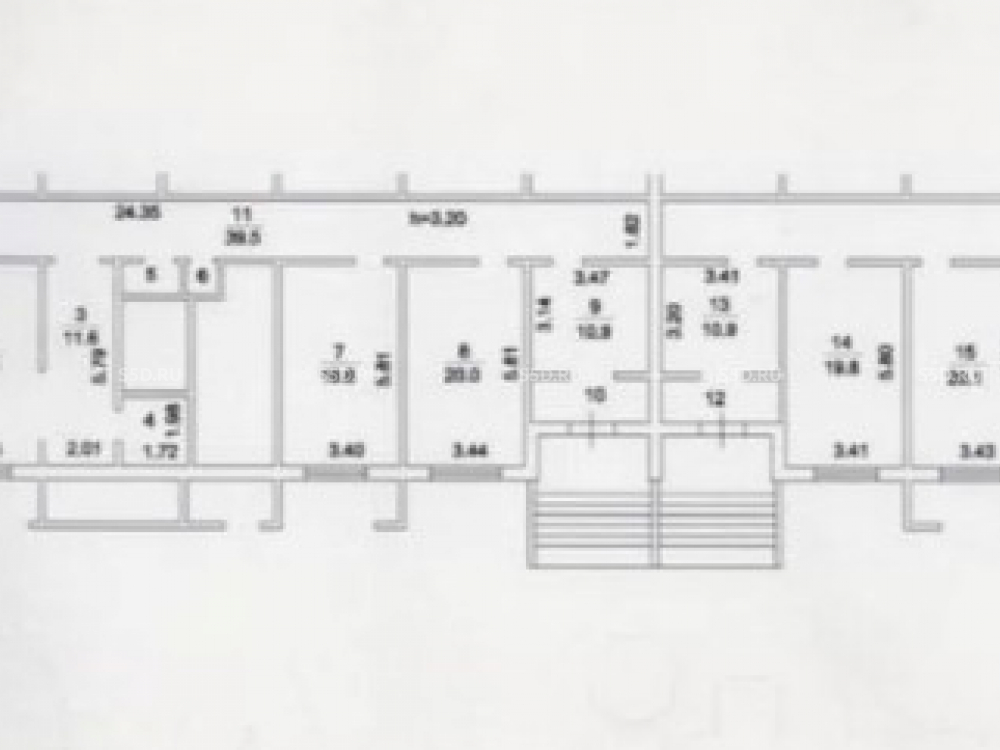
2-х уровневое помещение общей площадью 1 907 кв.м на 1 и цокольном этажах 11-этажного жилого дома.
Отдельная входная группа. Высота потолков: 3 м. Парковка.

Коммерческие условия:
Стоимость объекта 135 000 000 рублей.
Стоимость 1 кв.м 70 788 рублей.

Технические характеристики

Тип здания: С отдельным входом,Торговая

Общая площадь: 1907  м2

Этаж: 1

Всего этажей: 11

Электрическая мощность: -

Высота потолков:

Парковка: наземная

Коммерческие условия

Цена за все: 135 000 000 RUB

ФОРМА ВЛАДЕНИЯ: -

карта

Расположение

Адрес: Московская обл., Балашиха, ул. Свердлова, 53

Близость метро: Щёлковская

Транспортная доступность: Ж/д станция

Окружение

Торговое окружение: Дикси, Красное-белое.

Адрес:

Московская обл., Балашиха, ул. Свердлова, 53

Округ:

Близость метро:

Щёлковская

Транспортная доступность:

Ж/д станция

карта

Торговое окружение:

Дикси, Красное-белое.

Общая площадь:

1907  м2

Этаж:

1

Всего этажей:

11

Тип:

С отдельным входом,Торговая

Электрическая мощность:

-

Высота потолков:

Парковка:

наземная

ФОРМА ВЛАДЕНИЯ:

-

Цена за все:

135 000 000 RUB

Планировка

Данил

Ваш брокер по работе с клиентами

Найдите лучшее место
для жизни, бизнеса, инвестиций

Оставьте свои контакты — с вами свяжется руководитель отдела для презентации нужного вам объекта

Похожие объекты