Id 155113

Дербеневская наб., дом 1 - 110.1 кв.м./ продажа ПСН в БЦ OPUS

адрес Москва, Дербеневская улица, вл1, Опус

Многофункциональный
С отдельным входом
Торговая
Жилой комплекс (мфк)
Новостройка

121 110 000 RUB | за все

(за 1 м2 — 1 100 000 RUB)

площадь 110.1 м2

QR код Qr код

Предлагается в продажу торговое помещение в БЦ Opus по адресу: г. Москва, Дербеневская наб., дом 1, 10 мин до м. Павелецкая. Локация отличается интенсивным пешеходным и автомобильным трафиком. Район является деловым, туристическим и прогулочным центром. В окружении – бизнес-центры, офисные здания, торговые комплексы, гостиницы, жилые дома, культурные учреждения и другая развитая инфраструктура.

Срок передачи ключей 2 кв. 2026 г.

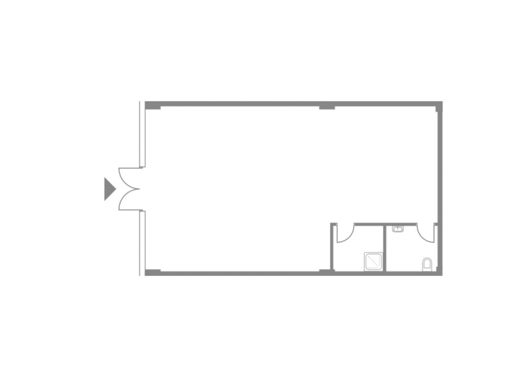
Технические характеристики: общая площадь 110.1 кв.м., первый этаж современного бизнес-центра, электрическая мощность - 22 кВт, отдельных вход со стороны улиц и фасада.

Коммерческие условия:
• Стоимость 121 110 000 рублей
• Стоимость кв.м. 1 100 000 рублей
• Продажа по договору от юр. лица

Технические характеристики

Тип здания: Многофункциональный,С отдельным входом,Торговая,Жилой комплекс (мфк),Новостройка

Общая площадь: 110.1  м2

Этаж: 1

Всего этажей: 13

Электрическая мощность: 22 кВт

Высота потолков: 6

Парковка: наземная

Коммерческие условия

Цена за все: 121 110 000 RUB

ФОРМА ВЛАДЕНИЯ: ДДУ

карта

Расположение

Адрес: Москва, Дербеневская улица, вл1, Опус

Округ: Южный административный округ

Близость метро: Павелецкая

Транспортная доступность: 10 мин. тр. до МЦД Одинцово, Сколково; 25 мин. тр. до м. Славянский б-р

Окружение

Торговое окружение: жилой массив

Адрес:

Москва, Дербеневская улица, вл1, Опус

Округ:

Южный административный округ

Близость метро:

Павелецкая

Транспортная доступность:

10 мин. тр. до МЦД Одинцово, Сколково; 25 мин. тр. до м. Славянский б-р

карта

Торговое окружение:

жилой массив

Общая площадь:

110.1  м2

Этаж:

1

Всего этажей:

13

Тип:

Многофункциональный,С отдельным входом,Торговая,Жилой комплекс (мфк),Новостройка

Электрическая мощность:

22 кВт

Высота потолков:

6

Парковка:

наземная

ФОРМА ВЛАДЕНИЯ:

ДДУ

Цена за все:

121 110 000 RUB

Планировка

Ирина Головина

Ваш брокер по работе с клиентами

Найдите лучшее место
для жизни, бизнеса, инвестиций

Оставьте свои контакты — с вами свяжется руководитель отдела для презентации нужного вам объекта

Похожие объекты