Id 155144

ЖК VEER, Верейская улица 29 - 156,3 м² / Продажа помещения свободного назначения

адрес Москва, ЗАО, Верейская улица, 29

С отдельным входом
Торговая
Жилой комплекс (мфк)
Новостройка

131 900 000 RUB | за все

(за 1 м2 — 843 890 RUB)

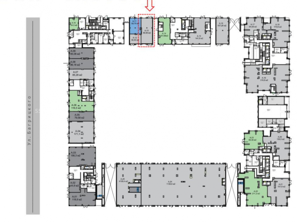
площадь 156.3 м2

QR код Qr код

Продажа помещения свободного назначения на 1-м этаже современном мультиквартале бизнес-класса VEER, по адресу: г. Москва, ЗАО, р-н Можайский, Верейская улица, ЖК VEER 1. Общее количество квартир - 5 950.

Помещение в торговом коридоре на сверхинтенсивном трафике.
В 3х минутах от метро Верейская (2031 год).

Транспортная доступность: ближайшая станция метро "Давыдково" в 1,6 км. На авто 5 минут до Кутузовского проспекта, 10 минут до Садового кольца.

Окружение: БЦ Верейская, плаза, ЖК Верейская, 41, ЖК LIFE Кутузовский, ЖК Родина парк.

Технические характеристики:
1-й этаж жилого дома. Два выхода на улицу и один во внутренний двор. Общая площадь 156,3 м². Отдельный вход. Высота потолков 5,4 м. Витринное остекление. Свободная планировка. Все центральные коммуникации. Технологической вытяжки нет.

Коммерческие условия:
Стоимость объекта - 131 900 000 рублей
Стоимость за м² - 843 890 рублей
Срок ввода - 4 квартал 2028 год.

Технические характеристики

Тип здания: С отдельным входом,Торговая,Жилой комплекс (мфк),Новостройка

Общая площадь: 156.3  м2

Этаж: 1

Всего этажей: 22

Электрическая мощность: по запросу

Высота потолков: 5,4 м.

Парковка: есть

Коммерческие условия

Цена за все: 131 900 000 RUB

ФОРМА ВЛАДЕНИЯ: -

карта

Расположение

Адрес: Москва, ЗАО, Верейская улица, 29

Округ: Западный административный округ

Близость метро: Аминьевская,Давыдково,Кунцевская

Транспортная доступность: на автомобиле: Кутузовский проспект 12 мин. Сколково 13 мин. Галереи «Времена года» 15 мин. Москва-Сити 17 мин. Гребной канал 17 мин. Садовое кольцо 20 мин. Пешком 15 мин. до станции метро Давыдково.

Окружение

Торговое окружение: БЦ Верейская, плаза, ЖК Верейская, 41, ЖК LIFE Кутузовский, ЖК Родина парк.

Адрес:

Москва, ЗАО, Верейская улица, 29

Округ:

Западный административный округ

Близость метро:

Аминьевская,Давыдково,Кунцевская

Транспортная доступность:

на автомобиле: Кутузовский проспект 12 мин. Сколково 13 мин. Галереи «Времена года» 15 мин. Москва-Сити 17 мин. Гребной канал 17 мин. Садовое кольцо 20 мин. Пешком 15 мин. до станции метро Давыдково.

карта

Торговое окружение:

БЦ Верейская, плаза, ЖК Верейская, 41, ЖК LIFE Кутузовский, ЖК Родина парк.

Общая площадь:

156.3  м2

Этаж:

1

Всего этажей:

22

Тип:

С отдельным входом,Торговая,Жилой комплекс (мфк),Новостройка

Электрическая мощность:

по запросу

Высота потолков:

5,4 м.

Парковка:

есть

ФОРМА ВЛАДЕНИЯ:

-

Цена за все:

131 900 000 RUB

Планировка

Лилия

Ваш брокер по работе с клиентами

Найдите лучшее место
для жизни, бизнеса, инвестиций

Оставьте свои контакты — с вами свяжется руководитель отдела для презентации нужного вам объекта

Похожие объекты