Id 155282

ул. Вешняковская, 39Г - 212 кв. м. - Аренда / Торговое помещение

адрес Москва, Вешняковская улица, 39Г

С отдельным входом
Торговая
ТЦ

420 000 RUB | в месяц

(за 1 м2 — 1 981 RUB)

площадь 212.0 м2

QR код Qr код

Предлагаем в аренду помещение свободного назначения в торговом центре, расположенном по адресу: г. Москва, ВАО, район Вешняки, ул. Вешняковская, 39Г. Удобная транспортная доступность: в 11 минутах пешком находится станция метро «Выхино», а станции «Юго-Восточная» и «Вешняки» — в 22 минутах. Помещение располагается на первой линии в густонаселенном районе с высокой покупательной способностью. Легкий доступ к основным магистралям: Удобные выезды на МКАД, Рязанский проспект и улицу Красный Казанец. Остановки общественного транспорта рядом (автобусы, маршрутки). Высокая проходимость (жилой массив + транзитные потоки к метро). Развитая инфраструктура.

Торговое окружение:
Соседние объекты включают супермаркеты «Пятёрочка» и «Перекрёсток», а также ТЦ «Вишняковский пассаж» (ул. Вешняковская, 18а) с фудкортом и магазинами. В районе также расположены аптеки, салоны красоты и пункты выдачи заказов (ПВЗ).

Технические характеристики:
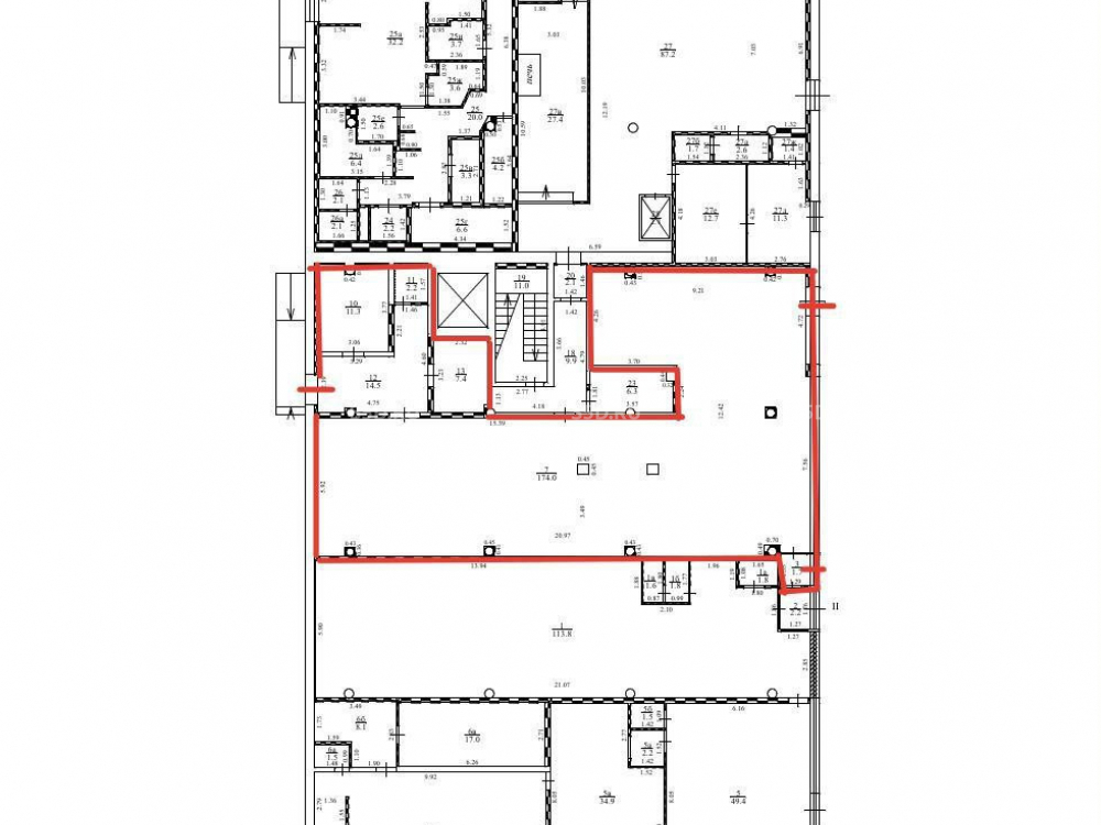
Помещение общей площадью: 212 кв. м., 1 этаж. Два отдельных входа и один запасной с другой стороны здания. Витринные окна. Свободная планировка. Высокие потолки: 3,7 м. Электрическая мощность: 30 кВт (с возможностью увеличения). Чистовая отделка, все центральные коммуникации. Парковка. Возможность размещения рекламы на фасаде.

Назначение
Подходит под любой вид бизнеса, кроме уже представленных в здании: Кафе, аптека, пивная, пиццерия, Озон, ВБ, груминг.

Коммерческие условия:
Арендная ставка: 420 000 рублей в месяц.
Ставка за 1 кв. м.: 1 981 рублей в месяц.
Ставка за 1 кв. м.: 23 773 рублей в год.
Эксплуатационные расходы включены в стоимость.

Технические характеристики

Тип здания: С отдельным входом,Торговая,ТЦ

Общая площадь: 212  м2

Этаж: 1

Всего этажей: 1

Электрическая мощность: 30 кВт

Высота потолков: 3,7 м

Парковка: наземная

Коммерческие условия

Цена в месяц: 420 000 RUB

ФОРМА ВЛАДЕНИЯ: собственник (без комиссий)

карта

Расположение

Адрес: Москва, Вешняковская улица, 39Г

Округ: Восточный административный округ

Близость метро: Вешняки,Выхино,Юго-Восточная

Транспортная доступность: в пешей доступности

Окружение

Торговое окружение: ТЦ, магазины продуктов, кафе, пункты выдачи и т.д.

Адрес:

Москва, Вешняковская улица, 39Г

Округ:

Восточный административный округ

Близость метро:

Вешняки,Выхино,Юго-Восточная

Транспортная доступность:

в пешей доступности

карта

Торговое окружение:

ТЦ, магазины продуктов, кафе, пункты выдачи и т.д.

Общая площадь:

212  м2

Этаж:

1

Всего этажей:

1

Тип:

С отдельным входом,Торговая,ТЦ

Электрическая мощность:

30 кВт

Высота потолков:

3,7 м

Парковка:

наземная

ФОРМА ВЛАДЕНИЯ:

собственник (без комиссий)

Цена в месяц:

420 000 RUB

Планировка

Степанов Анатолий

Ваш брокер по работе с клиентами

Найдите лучшее место
для жизни, бизнеса, инвестиций

Оставьте свои контакты — с вами свяжется руководитель отдела для презентации нужного вам объекта

Похожие объекты