Id 155363

Москва, ул. Гастелло, 30, ЖК SOKOLNIKI / 45.7 м² / Продажа помещения в торговой галерее

адрес ВАО, Москва, ул. Гастелло, 30, ЖК SOKOLNIKI

С отдельным входом
Торговая
Общепит
Новостройка

23 352 700 RUB | за все

(за 1 м2 — 511 000 RUB)

площадь 45.7 м2

QR код Qr код

Продажа помещения в торгово-инфраструктурном блоке в новом ЖК бизнес-класса SOKOLNIKI, по адресу: ВАО, Москва, ул. Гастелло, 30.
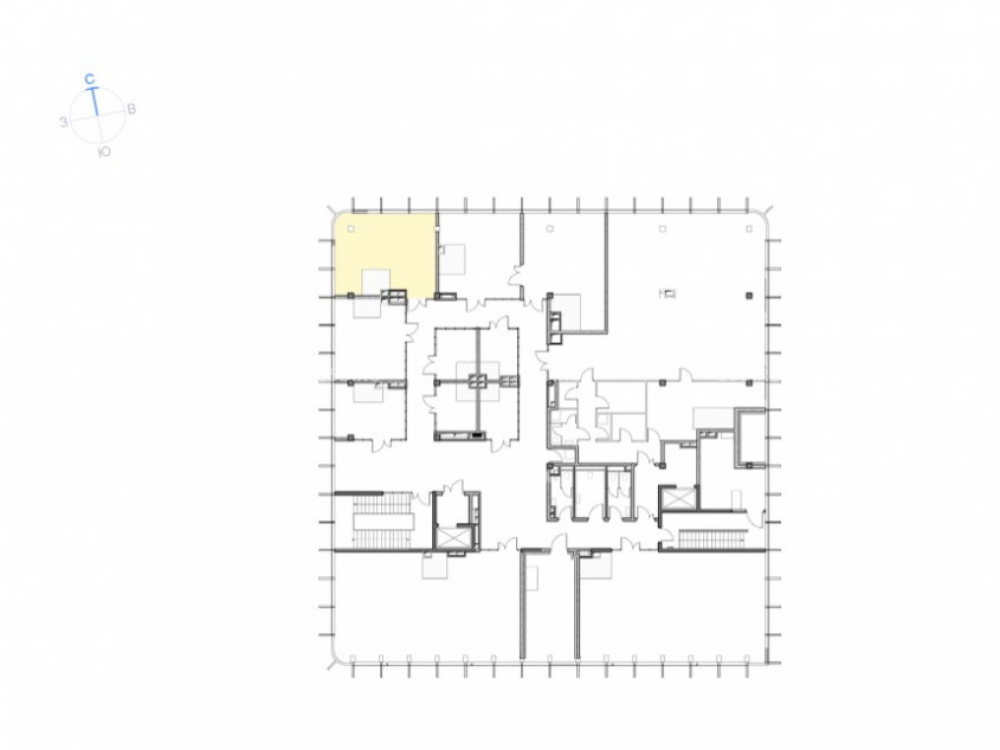
Находится на 2м этаже, в торговой галерее.
В локации отмечен дефицит магазинов, кафе, ресторанов, аптек и других бытовых услуг. Размещение торгово-инфраструктурных помещений в новом жилом комплексе бизнес+ класса обеспечит жителей района качественными услугами.

ЖК состоит из 3 башен высотой 24, 28 и 33 этажа. Включает в себя 763 квартиры (2 289 жителей) с чистовой и дизайнерской отделкой (быстрое заселение). В радиусе 10-15 минутной пешей доступности проживает 12 600 человек (по данным ЦПИ).

В пешей доступности находятся две станции метро — «Сокольники» и «Электрозаводская».
Удобный выезд на ТТК, шоссе Энтузиастов и Садовое кольцо.

Ввод в эксплуатацию 1-й квартал 2027 года.

Технические характеристики :
2 этаж, торговая галерея. Площадь 45.7 м² в одном уровне. Угловое помещение.
Свободная планировка, высота потолков 5 м, витринное остекление, мокрая точка.
Свободный доступ. Вид на благоустроенную территорию.
Мультизональные системы VRF кондиционирования (с большей точностью поддерживает заданную температуру в помещении, чем обычный кондиционер), приточно-вытяжная система вентиляции, внутрипольные конвекторы.

Коммерческие условия :
Стоимость объекта - 23 352 700 ₽, с НДС.
Стоимость за м² - 511 000 ₽, с НДС.
Беспроцентная рассрочка до окончания строительства с первоначальным взносом от 20%.
Детальная презентация по запросу.

Технические характеристики

Тип здания: С отдельным входом,Торговая,Общепит,Новостройка

Общая площадь: 45.7  м2

Этаж: 2

Всего этажей: 2

Электрическая мощность: по запросу

Высота потолков: 5 м

Парковка: есть

Коммерческие условия

Цена за все: 23 352 700 RUB

ФОРМА ВЛАДЕНИЯ: -

карта

Расположение

Адрес: ВАО, Москва, ул. Гастелло, 30, ЖК SOKOLNIKI

Округ: Восточный административный округ

Близость метро: Сокольники,Электрозаводская

Транспортная доступность: В пешей доступности находятся две станции метро — Сокольники и Электрозаводская

Окружение

Торговое окружение: развивающееся

Адрес:

ВАО, Москва, ул. Гастелло, 30, ЖК SOKOLNIKI

Округ:

Восточный административный округ

Близость метро:

Сокольники,Электрозаводская

Транспортная доступность:

В пешей доступности находятся две станции метро — Сокольники и Электрозаводская

карта

Торговое окружение:

развивающееся

Общая площадь:

45.7  м2

Этаж:

2

Всего этажей:

2

Тип:

С отдельным входом,Торговая,Общепит,Новостройка

Электрическая мощность:

по запросу

Высота потолков:

5 м

Парковка:

есть

ФОРМА ВЛАДЕНИЯ:

-

Цена за все:

23 352 700 RUB

Планировка

Гервас Ксения

Ваш брокер по работе с клиентами

Найдите лучшее место
для жизни, бизнеса, инвестиций

Оставьте свои контакты — с вами свяжется руководитель отдела для презентации нужного вам объекта

Похожие объекты