Id 156164

г. Москва, Боровское шоссе, 2А / Продажа / Торговое помещение / 521.6 кв.м.

адрес Москва, Боровское шоссе, 2А

Бизнес центр
Многофункциональный
С отдельным входом
Торговая
Новостройка

176 822 400 RUB | за все

(за 1 м2 — 339 000 RUB)

площадь 521.6 м2

QR код Qr код

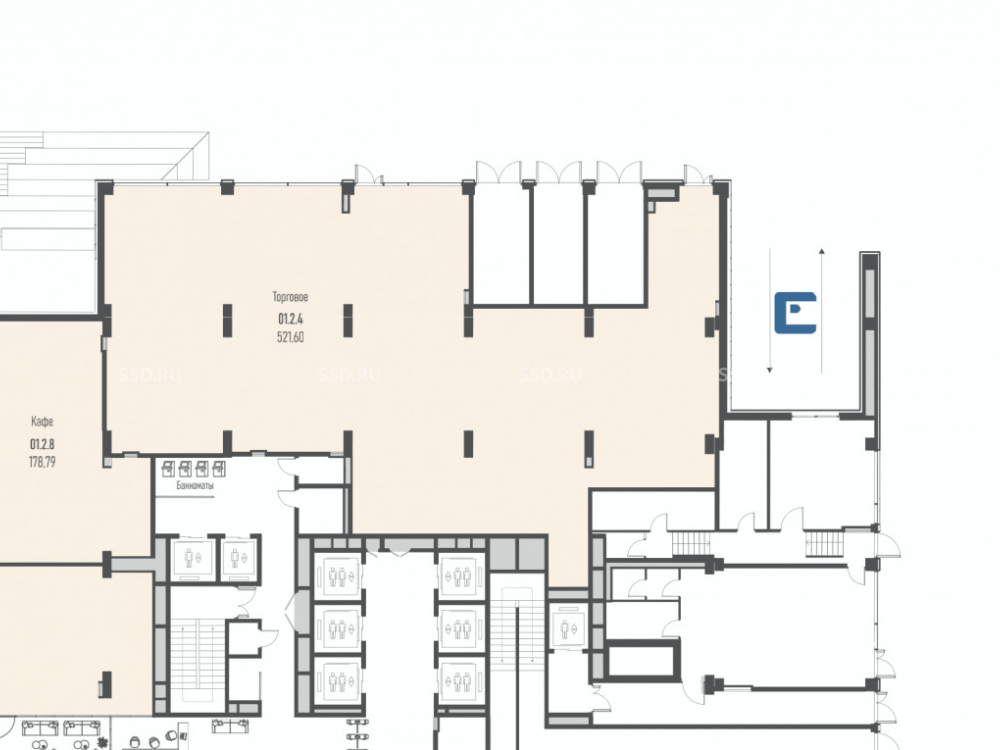
Предлагается в продажу помещение свободного назначения по адресу: г. Москва, Боровское шоссе, 2А, площадью 521.6 м2. Бизнес-центр MOUNT располагается на западе Москвы, всего в 900 метрах от станции метро «Говорово» и в 100 метрах от МКАД. Район Солнцево активно развивается и становится новой деловой точкой притяжения столицы.

MOUNT — это новый Workplace в районе Говорово, гармонично сочетающийся с природой. Лаконичная башня — прекрасное место для ведения бизнеса благодаря выгодной транспортной доступности здания. Бизнес-центр MOUNT — это современный 20-этажный офисный комплекс класса B+ в динамично развивающемся районе Солнцево. Проект Forma завершает архитектурный облик жилого квартала «Мещерский лес» и предлагает бизнесу комфортное, гибкое и эстетичное пространство для роста.

Окружающая инфраструктура включает жилые кварталы, рестораны, кафе, магазины и деловые сервисы. Всё необходимое для повседневной жизни сотрудников находится в шаговой доступности. Дополнительное преимущество — соседство с благоустроенным Парком Холмов, который станет местом притяжения для отдыха, прогулок и мероприятий. Такое сочетание городской среды и природного ландшафта способствует созданию сбалансированной деловой атмосферы. Готовность - 4 квартал 2027 года.

Технические характеристики:
2 отдельных входа с фасада. Открытая планировка • Высота потолков 3,8–5,8 м • электроэнергия 105 кВт (есть техническая возможность для увеличения)

Коммерческие условия:
Стоимость: 176 822 400 рублей.
Стоимость за м2: 400 000 рублей.

Технические характеристики

Тип здания: Бизнес центр,Многофункциональный,С отдельным входом,Торговая,Новостройка

Общая площадь: 521.6  м2

Этаж: 1

Всего этажей: 20

Электрическая мощность: 20 кВт, можно увеличить.

Высота потолков: 3,8–5,8 м

Парковка: Есть.

Коммерческие условия

Цена за все: 176 822 400 RUB

ФОРМА ВЛАДЕНИЯ: Застройщик.

карта

Расположение

Адрес: Москва, Боровское шоссе, 2А

Округ: Западный административный округ

Близость метро: Говорово

Транспортная доступность: в 900 метрах от станции метро «Говорово» и в 100 метрах от МКАД.

Окружение

Торговое окружение: Большое

Адрес:

Москва, Боровское шоссе, 2А

Округ:

Западный административный округ

Близость метро:

Говорово

Транспортная доступность:

в 900 метрах от станции метро «Говорово» и в 100 метрах от МКАД.

карта

Торговое окружение:

Большое

Общая площадь:

521.6  м2

Этаж:

1

Всего этажей:

20

Тип:

Бизнес центр,Многофункциональный,С отдельным входом,Торговая,Новостройка

Электрическая мощность:

20 кВт, можно увеличить.

Высота потолков:

3,8–5,8 м

Парковка:

Есть.

ФОРМА ВЛАДЕНИЯ:

Застройщик.

Цена за все:

176 822 400 RUB

Планировка

Павел

Ваш брокер по работе с клиентами

Найдите лучшее место
для жизни, бизнеса, инвестиций

Оставьте свои контакты — с вами свяжется руководитель отдела для презентации нужного вам объекта

Похожие объекты