Id 160894

Мерзляковский переулок, 13с3 - 490 кв. м. - Продажа / Офисное помещение

адрес Москва, Мерзляковский переулок, 13с3

Бизнес центр
Особняк/здание
С отдельным входом
Офис

155 000 000 RUB | за все

(за 1 м2 — 316 327 RUB)

площадь 490.0 м2

QR код Qr код

Предлагается на продажу офисное помещение в административном здании в шаговой доступности от м. Арбатская по адресу: г. Москва, ЦАО, Пресненский район, Мерзляковский переулок, 13с3. Ближайшие станции метро: Арбатская – 6 мин. пешком, Александровский сад – 13 мин. пешком, Библиотека имени Ленина – 14 мин. пешком. Помещение находится в самом центре Москвы, между улицами Новый Арбат и Большой Никитской. Дом окружен старыми известными постройками, в которых в своё время проживали представители столичной аристократии. Насыщенная инфраструктура района. Удобная транспортная и пешая доступность. В Пресненском районе также расположились крупные московские бизнес-центры (Центр Международной торговли, «Москва-Сити») и другие деловые здания.

Торговое окружение:
Рядом расположены магазин одежды Cut Out, товары для творчества и рукоделия Малевичъ, кофейня КонфеКтная лавка, гончарная мастерская Soil.

Технические характеристики:
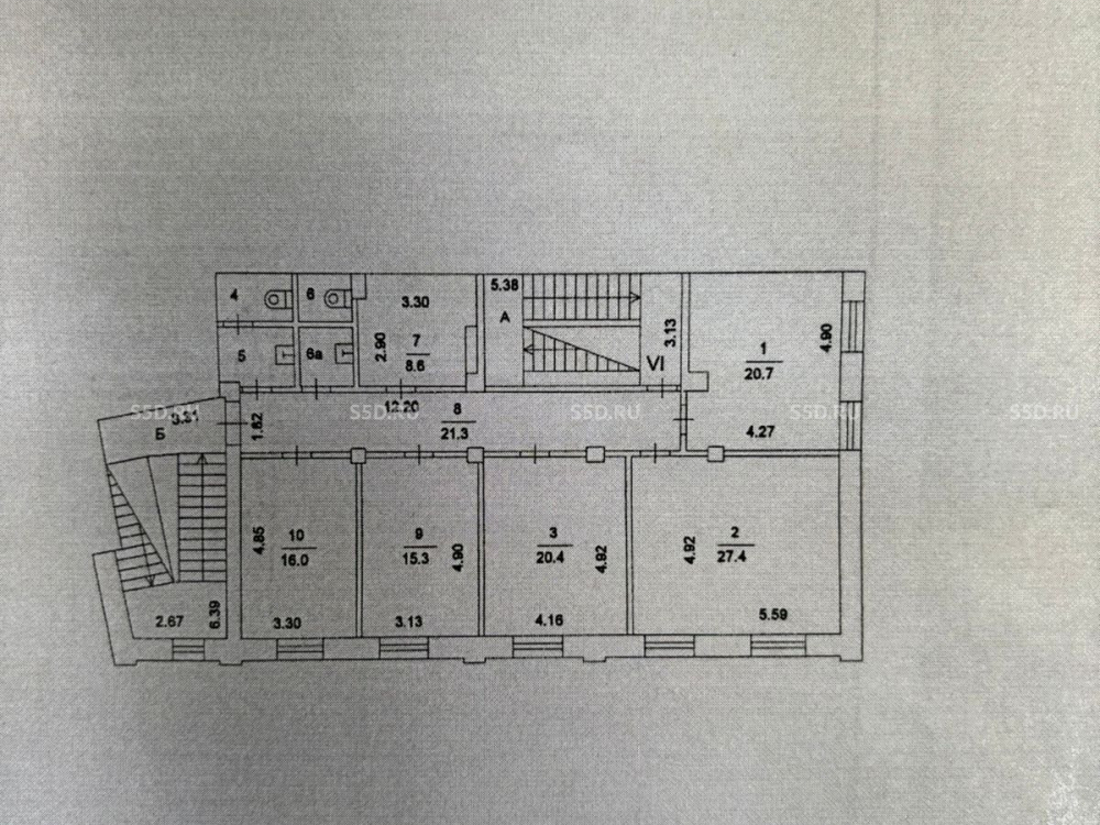
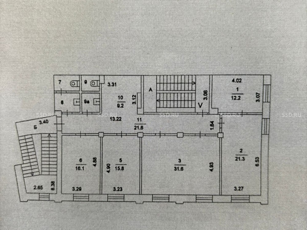
Здание 1995 года постройки. Общая площадь помещения – 490 кв. м.,(Подвал- 63,7 м2, 1 этаж - 67.7 м2 , 4 этаж - 138 ,6 м2 , 5 этаж - 139,9 м2 ( 90 м2 лестницы). Отдельный вход. Планировка кабинетная. Электрическая мощность – 70 кВт. Помещение оборудовано офисной мебелью представительского класса, противопожарной сигнализацией, приточно-вытяжной вентиляцией, системой центрального отопления, кондиционерами, двумя санузлами. Подключены телефоны, оптоволоконный кабель, компьютерная разводка в каждом кабинете. Парковка на 3 места на территории. Безопасность здания обеспечивается точкой контроля доступа, видеонаблюдением.

Коммерческие условия:
Стоимость объекта – 155 000 000 рублей.
Стоимость за 1 кв. м. – 316 326 рублей.

Технические характеристики

Тип здания: Бизнес центр,Особняк/здание,С отдельным входом,Офис

Общая площадь: 490  м2

Этаж: 1

Всего этажей: 5

Электрическая мощность: 70 кВт

Высота потолков: 3 м

Парковка: 2 м.места

Коммерческие условия

Цена за все: 155 000 000 RUB

ФОРМА ВЛАДЕНИЯ: ООО

карта

Расположение

Адрес: Москва, Мерзляковский переулок, 13с3

Округ: Центральный административный округ

Близость метро: Александровский сад,Арбатская (Арбатско-Покровская),Библиотека имени Ленина

Транспортная доступность: пешая от метро Арбатская

Окружение

Торговое окружение: нет

Адрес:

Москва, Мерзляковский переулок, 13с3

Округ:

Центральный административный округ

Близость метро:

Александровский сад,Арбатская (Арбатско-Покровская),Библиотека имени Ленина

Транспортная доступность:

пешая от метро Арбатская

карта

Торговое окружение:

нет

Общая площадь:

490  м2

Этаж:

1

Всего этажей:

5

Тип:

Бизнес центр,Особняк/здание,С отдельным входом,Офис

Электрическая мощность:

70 кВт

Высота потолков:

3 м

Парковка:

2 м.места

ФОРМА ВЛАДЕНИЯ:

ООО

Цена за все:

155 000 000 RUB

Планировка

Роберт

Ваш брокер по работе с клиентами

Найдите лучшее место
для жизни, бизнеса, инвестиций

Оставьте свои контакты — с вами свяжется руководитель отдела для презентации нужного вам объекта

Похожие объекты