Id 156274

Москва, ЖК Sydney City, Сидней Сити, к5/2 - 244.6 кв.м. - Аренда помещения свободного назназначения

адрес Москва, ЖК Sydney City, Сидней Сити, к5/2

С отдельным входом
Торговая
Общепит
Новостройка

1 956 800 RUB | в месяц

(за 1 м2 — 8 000 RUB)

площадь 244.6 м2

QR код Qr код

Предлагается в аренду помещение свободного назначения спроектированном под ресторан на первой линии прогулочного бульвара/дороги ЖК премиум-класса Sidney City;
Концепция Well-being предполагает построение гармоничных отношений человека с самим собой, с окружающими, с природой. Sydney City легко достигает этого триединства;
Вторая улица от ЦАО и соседство с Москва-Сити, ЖК Бизнес класса Сердце Столицы, ЖК Level Звенигородская;
Прямые выезды на ТТК, Северо-Западную хорду и Звенигородское шоссе. Все виды общественного транспорта, в том числе речные трамвайчики, в пешей доступности;
В 100 м до новой станции метро «Звенигородская».

Технические характеристики помещения:
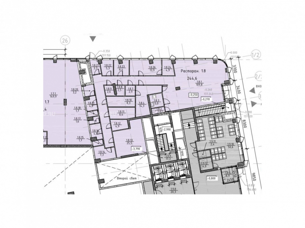
Общей площадью 244,6 кв.м. 2 отдельные входные группы. Расположено на 1 этаже 45-этажного многоквартирного дома, примыкающей к объединенной в едином стилобате с концепцией стильного и просторного единого фудхолла.
Эл. мощность 100 кВт. Высота потолков 6-7 метров. Выделенный вент канал на кровлю предусмотреный под кухню полного цикла.

Коммерческие условия:
Арендная ставка в месяц - 1 956 800 рублей;
Арендная ставка в месяц за 1 кв. м. - 8 000 рублей;

Ввод в эксплуатацию 4кв. 2025 г.

Технические характеристики

Тип здания: С отдельным входом,Торговая,Общепит,Новостройка

Общая площадь: 244.6  м2

Этаж: 1

Всего этажей: 45

Электрическая мощность: 100

Высота потолков: 6.7

Парковка: Подземная

Коммерческие условия

Цена в месяц: 1 956 800 RUB

ФОРМА ВЛАДЕНИЯ: ООО

карта

Расположение

Адрес: Москва, ЖК Sydney City, Сидней Сити, к5/2

Округ: Северо-Западный административный округ

Близость метро: Хорошёво,Шелепиха

Транспортная доступность: Прямые выезды на ТТК, Северо-Западную хорду и Звенигородское шоссе. Все виды общественного транспорта, в том числе речные трамвайчики, в пешей доступности; В 100 м до новой станции метро «Звенигородская».

Окружение

Торговое окружение: Мята Platinum, ВкусВилл

Адрес:

Москва, ЖК Sydney City, Сидней Сити, к5/2

Округ:

Северо-Западный административный округ

Близость метро:

Хорошёво,Шелепиха

Транспортная доступность:

Прямые выезды на ТТК, Северо-Западную хорду и Звенигородское шоссе. Все виды общественного транспорта, в том числе речные трамвайчики, в пешей доступности; В 100 м до новой станции метро «Звенигородская».

карта

Торговое окружение:

Мята Platinum, ВкусВилл

Общая площадь:

244.6  м2

Этаж:

1

Всего этажей:

45

Тип:

С отдельным входом,Торговая,Общепит,Новостройка

Электрическая мощность:

100

Высота потолков:

6.7

Парковка:

Подземная

ФОРМА ВЛАДЕНИЯ:

ООО

Цена в месяц:

1 956 800 RUB

Планировка

Владислав

Ваш брокер по работе с клиентами

Найдите лучшее место
для жизни, бизнеса, инвестиций

Оставьте свои контакты — с вами свяжется руководитель отдела для презентации нужного вам объекта

Похожие объекты