Id 156891

Проектируемый проезд № 4062, 6с5 - 2007,6 кв. м. - Продажа / ОСЗ

адрес Москва, Проектируемый проезд № 4062, 6с5

Бизнес центр
Особняк/здание
С отдельным входом
Офис

521 976 000 RUB | за все

(за 1 м2 — 260 000 RUB)

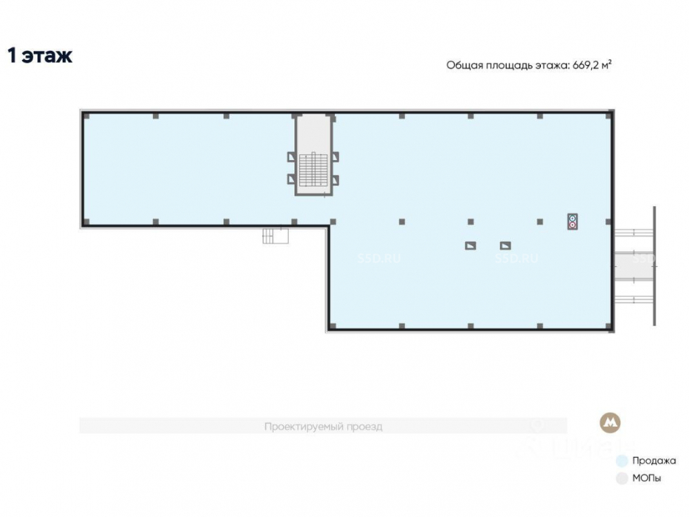
площадь 2 007.6 м2

QR код Qr код

Продажа отдельно стоящего здания (строение 5) на территории БЦ PORT PLAZA.
Адрес: г. Москва, ЮАО, Даниловский район, Проектируемый проезд № 4062, 6с5.
Объект расположен в престижном бизнес-квартале «PORT PLAZA» класса В+ с развитой инфраструктурой, высокой транспортной доступностью и панорамными видами на набережную. Идеальная транспортная доступность: 5 минут пешком от м. «Технопарк», 16 минут от м. «ЗИЛ». Удобный выезд на ТТК (1,8 км) и Проспект Андропова (500 м).
Развитое окружение: в пешей доступности ТРЦ «Мегаполис», парк «Остров мечты», головные офисы крупных компаний (МТС, Альфа-Банк, Райффайзенбанк). Здание имеет отличную видимость и рекламный потенциал благодаря высокому пешеходному и автомобильному трафику.


Технические характеристики:
Офисное здание (класс В). Общая площадь: 2 007,6 м². 3 этажа. Панорамное остекление с видом на набережную. Два входа — отдельный с улицы и через строение 2. Открытая планировка. Состояние: Без отделки. Высота потолков: 3,78 м - 4,2 м. Коммуникации: Электроснабжение — 126 кВт, водоснабжение (ХВС/ГВС), водоотведение, отопление, вентиляция и холодоснабжение. Круглосуточная охрана, видеонаблюдение, контроль доступа. Охраняемый паркинг на 600 машиномест. Профессиональная управляющая компания.

Коммерческие условия:
Стоимость объекта: 521 976 000 рублей (с учетом НДС).
Стоимость за 1 м²: 260 000 рублей.
Прямая продажа от собственника.

Технические характеристики

Тип здания: Бизнес центр,Особняк/здание,С отдельным входом,Офис

Общая площадь: 2007.6  м2

Этаж: 1

Всего этажей: 3

Электрическая мощность: 126 кВт

Высота потолков: 3,78 - 4,2 м

Парковка: Охраняемый паркинг на 600 машин

Коммерческие условия

Цена за все: 521 976 000 RUB

ФОРМА ВЛАДЕНИЯ: собственность

карта

Расположение

Адрес: Москва, Проектируемый проезд № 4062, 6с5

Округ: Южный административный округ

Близость метро: ЗИЛ,Технопарк

Транспортная доступность: в пешей доступности

Окружение

Торговое окружение: развитое торговое окружение

Адрес:

Москва, Проектируемый проезд № 4062, 6с5

Округ:

Южный административный округ

Близость метро:

ЗИЛ,Технопарк

Транспортная доступность:

в пешей доступности

карта

Торговое окружение:

развитое торговое окружение

Общая площадь:

2007.6  м2

Этаж:

1

Всего этажей:

3

Тип:

Бизнес центр,Особняк/здание,С отдельным входом,Офис

Электрическая мощность:

126 кВт

Высота потолков:

3,78 - 4,2 м

Парковка:

Охраняемый паркинг на 600 машин

ФОРМА ВЛАДЕНИЯ:

собственность

Цена за все:

521 976 000 RUB

Планировка

Виталий

Ваш брокер по работе с клиентами

Найдите лучшее место
для жизни, бизнеса, инвестиций

Оставьте свои контакты — с вами свяжется руководитель отдела для презентации нужного вам объекта

Похожие объекты