Id 157284

Новорязанская ул., 31/7с6 - 70 кв. м. - Продажа / ГАБ / Офис аудиторской компании

адрес Москва, Новорязанская улица, 31/7с6

Арендный бизнес
С отдельным входом
Торговая

Окупаемость: 6.2 года

Доходность:16.22%

18 400 000 RUB | за все

(за 1 м2 — 262 857 RUB)

площадь 70.0 м2

QR код Qr код

Продается готовый арендный бизнес с гарантированным доходом в ЦАО.
Адрес: г. Москва, ЦАО, Басманный район, Новорязанская ул., 31/7с6. Пешеходная доступность от двух ключевых станций метро: Бауманская (7 мин. пешком), Комсомольская (8 мин. пешком). Выход на три главных вокзала столицы. Остановки общественного транспорта в 2-3 минутах ходьбы. Высокий пешеходный и автомобильный трафик, обеспеченный близостью к вокзалам, деловым центрам и жилым кварталам. Инфраструктура района: Развитая деловая и социальная среда — офисные центры, банки (Сбербанк, ВТБ, Тинькофф и др.), кафе, ресторанов, столовых, супермаркеты и салоны красоты.

Технические характеристики:
Общая площадь: 70 кв. м. Цокольный (0/-1 этаж). Отдельный вход. Высота потолков: 2,7 м. Коммуникации: Электропитание 10 кВт (с возможностью увеличения), центральное отопление. Качественный дизайнерский ремонт офисного уровня. Бесплатная парковка для клиентов и сотрудников.

Коммерческие условия:
Стоимость объекта: 18 400 000 рублей.
Стоимость за 1 кв. м.: 262 857 рублей.
Текущий арендатор: Офис аудиторской компании (стабильная аренда 3-й год).
МАП: 250 000 рублей + коммунальные услуги.
ГАП: 3 000 000 рублей.
Право собственности: Собственник.
Окупаемость: 6 лет.

Технические характеристики

Тип здания: Арендный бизнес,С отдельным входом,Торговая

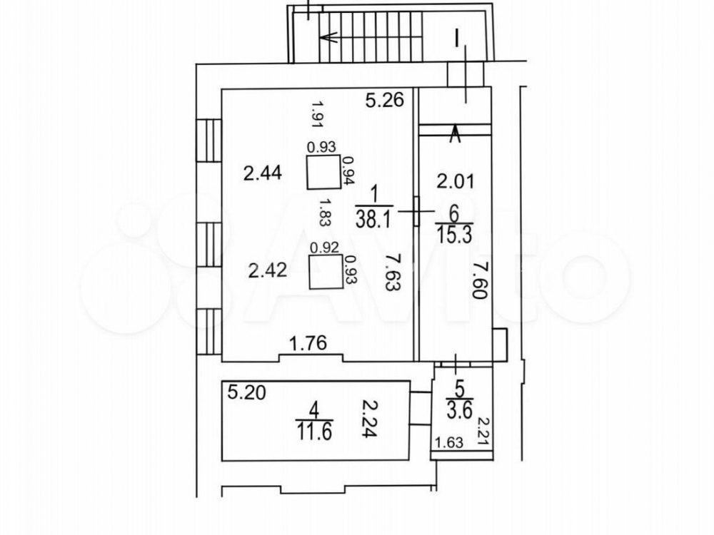
Общая площадь: 70  м2

Этаж: -1

Всего этажей: 5

Электрическая мощность: 10 кВт (возможно увеличение)

Высота потолков: 2,7 м

Парковка: наземная

Коммерческие условия

Цена за все: 18 400 000 RUB

ФОРМА ВЛАДЕНИЯ: собственность

Общий МАП: 250 000 RUB (данный МАП является минимальным, при оптимизации арендаторов арендный поток можно значительно увеличить)

Общий ГАП: 3 000 000 RUB

Окупаемость: 6.2 года

Доходность: 16.22%

карта

Расположение

Адрес: Москва, Новорязанская улица, 31/7с6

Округ: Центральный административный округ

Близость метро: Бауманская,Комсомольская

Транспортная доступность: в пешей доступности

Окружение

Торговое окружение: развитое торговое окружение

Адрес:

Москва, Новорязанская улица, 31/7с6

Округ:

Центральный административный округ

Близость метро:

Бауманская,Комсомольская

Транспортная доступность:

в пешей доступности

карта

Торговое окружение:

развитое торговое окружение

Общая площадь:

70  м2

Этаж:

-1

Всего этажей:

5

Тип:

Арендный бизнес,С отдельным входом,Торговая

Электрическая мощность:

10 кВт (возможно увеличение)

Высота потолков:

2,7 м

Парковка:

наземная

ФОРМА ВЛАДЕНИЯ:

собственность

Цена за все:

18 400 000 RUB

Общий МАП: 250 000

(данный МАП является минимальным, при оптимизации арендаторов арендный поток можно значительно увеличить)

Общий ГАП:

3 000 000

Окупаемость:

6.2 года

Доходность:

16.22%

Планировка

Виталий

Ваш брокер по работе с клиентами

Найдите лучшее место
для жизни, бизнеса, инвестиций

Оставьте свои контакты — с вами свяжется руководитель отдела для презентации нужного вам объекта

Похожие объекты