Id 157722

Руновский переулок, 5с1 / 116,9 кв. м. / Продажа ГАБ Дейли Грин Кафе

адрес Москва, Руновский переулок, 5с1

Арендный бизнес
Торговая

Окупаемость: 12.4 лет

Доходность:8.05%

73 928 400 RUB | за все

(за 1 м2 — 632 407 RUB)

площадь 116.9 м2

QR код Qr код

Продается помещение с арендатором Дейли Грин в центре Москвы, в 5 минутах от м. Новокузнецкая в особняке с арендаторами, по адресу: Москва, Руновский переулок д. 5 стр.1, ЦАО, район Замоскворечье. Исторический район со сложившейся инфраструктурой. Пешая доступность от станции метро Новокузнецкая. Активный пешеходный трафик. Городской паркинг рядом с помещением. торговое окружение: Бьюти коворкинг, Магнолия, Внешфинбанк, клиника Семейный доктор, кафе, бутик.

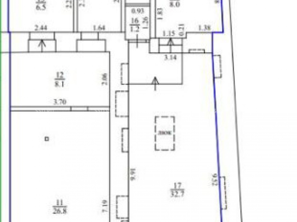
Технические характеристики: Первый этаж двухэтажного ТЦ, 116,9 (1 этаж 90,2 кв.м., подвал 26,7 кв.м.) м2,. мощность 40 кВт. Смешанная планировка. Состояние помещения - с ремонтом. Возможность паркинга на 5 м/м.

Коммерческие условия:
Стоимость помещения 73 928 400 рублей
Стоимость 1 кв. м. 632 407 рублей
МАП 497 595 рублей/ ГАП 5 971 140 рублей
Арендатор: кофейня Дейли Грин, ежегодная индексация 5%
Окупаемость: 12,4 лет
Продажа по ДКПН от физ лица

Технические характеристики

Тип здания: Арендный бизнес,Торговая

Общая площадь: 116.9  м2

Этаж: 1

Всего этажей: 2

Электрическая мощность: 30кВт

Высота потолков: 4

Парковка: 5 мм

Коммерческие условия

Цена за все: 73 928 400 RUB

ФОРМА ВЛАДЕНИЯ: СобственностьФЛ

Общий МАП: 497 595 RUB (данный МАП является минимальным, при оптимизации арендаторов арендный поток можно значительно увеличить)

Общий ГАП: 5 971 140 RUB

Окупаемость: 12.4 лет

Доходность: 8.05%

карта

Расположение

Адрес: Москва, Руновский переулок, 5с1

Округ: Центральный административный округ

Близость метро: Новокузнецкая

Транспортная доступность: Пешая от метро

Окружение

Торговое окружение: Магнолия, Внешфинбанк, клиника Семейный доктор. Ресторан, Кафе, салон красоты,

Адрес:

Москва, Руновский переулок, 5с1

Округ:

Центральный административный округ

Близость метро:

Новокузнецкая

Транспортная доступность:

Пешая от метро

карта

Торговое окружение:

Магнолия, Внешфинбанк, клиника Семейный доктор. Ресторан, Кафе, салон красоты,

Общая площадь:

116.9  м2

Этаж:

1

Всего этажей:

2

Тип:

Арендный бизнес,Торговая

Электрическая мощность:

30кВт

Высота потолков:

4

Парковка:

5 мм

ФОРМА ВЛАДЕНИЯ:

СобственностьФЛ

Цена за все:

73 928 400 RUB

Общий МАП: 497 595

(данный МАП является минимальным, при оптимизации арендаторов арендный поток можно значительно увеличить)

Общий ГАП:

5 971 140

Окупаемость:

12.4 лет

Доходность:

8.05%

Планировка

Александр Невский

Ваш брокер по работе с клиентами

Найдите лучшее место
для жизни, бизнеса, инвестиций

Оставьте свои контакты — с вами свяжется руководитель отдела для презентации нужного вам объекта

Похожие объекты