Id 158001

г. Москва, ЦАО, Денисовский пер, д 9 - 231,8 кв.м. / Продажа ПСН с арендатором в цоколе

адрес г. Москва, ЦАО, Денисовский пер, д 9

Арендный бизнес
Многофункциональный
Торговая

Окупаемость: 8.3 лет

Доходность:12.12%

29 500 000 RUB | за все

(за 1 м2 — 127 706 RUB)

площадь 231.0 м2

QR код Qr код

Продажа помещения в цоколе с арендатором. Здание находится в Басманном районе Центрального административного округа города Москвы. Ближайшая станция метро Бауманская. Удобная транспортная доступность: рядом пролегают улица Доброслободская, Денисовский и Аптекарский переулок.

Технические характеристики:
- высота потолков 2,4 м.
- Высокий цокольный этаж;
- отдельный вход;
- мокрая точка;
- в помещение выполнен косметический ремонт.

Коммерческие условия:
Арендатор - офис
МАП - 300 000 рублей; ГАП - 3 600 000 рублей;
Стоимость - 29 500 000 рублей;
Стоимость за 1 кв.м. - 127 705 рублей;
Форма сделки ДКП.

Технические характеристики

Тип здания: Арендный бизнес,Многофункциональный,Торговая

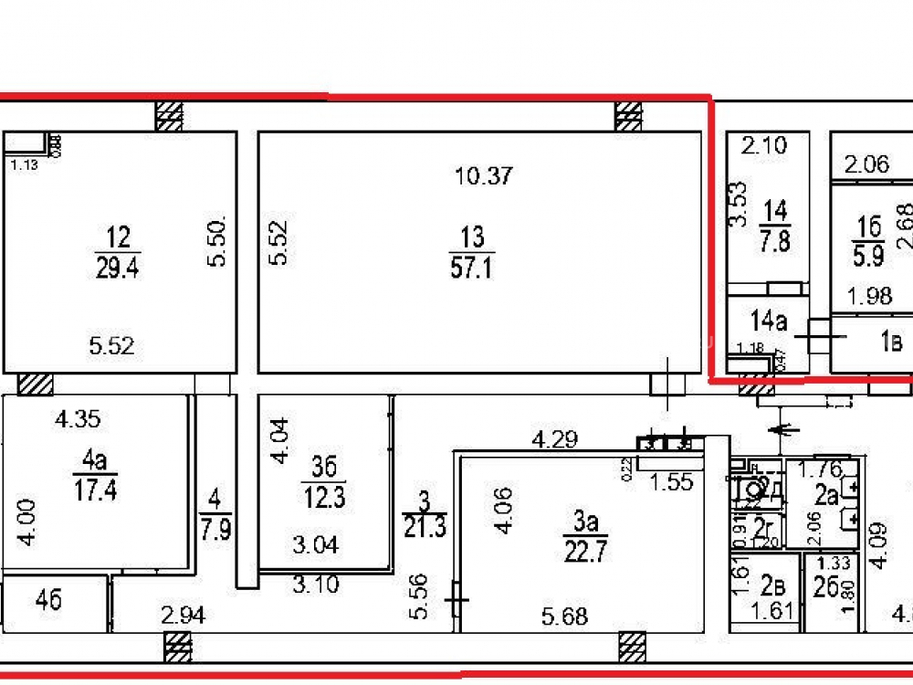
Общая площадь: 231  м2

Этаж: -1

Всего этажей: 5

Электрическая мощность: 15 кВт

Высота потолков: 2,4 м.

Парковка: да / на улице

Коммерческие условия

Цена за все: 29 500 000 RUB

ФОРМА ВЛАДЕНИЯ: ООО УСН

Общий МАП: 300 000 RUB (данный МАП является минимальным, при оптимизации арендаторов арендный поток можно значительно увеличить)

Общий ГАП: 3 600 000 RUB

Окупаемость: 8.3 лет

Доходность: 12.12%

карта

Расположение

Адрес: г. Москва, ЦАО, Денисовский пер, д 9

Округ: Центральный административный округ

Близость метро: Бауманская,Курская

Транспортная доступность: Да

Окружение

Торговое окружение: Да

Адрес:

г. Москва, ЦАО, Денисовский пер, д 9

Округ:

Центральный административный округ

Близость метро:

Бауманская,Курская

Транспортная доступность:

Да

карта

Торговое окружение:

Да

Общая площадь:

231  м2

Этаж:

-1

Всего этажей:

5

Тип:

Арендный бизнес,Многофункциональный,Торговая

Электрическая мощность:

15 кВт

Высота потолков:

2,4 м.

Парковка:

да / на улице

ФОРМА ВЛАДЕНИЯ:

ООО УСН

Цена за все:

29 500 000 RUB

Общий МАП: 300 000

(данный МАП является минимальным, при оптимизации арендаторов арендный поток можно значительно увеличить)

Общий ГАП:

3 600 000

Окупаемость:

8.3 лет

Доходность:

12.12%

Планировка

Александр Невский

Ваш брокер по работе с клиентами

Найдите лучшее место
для жизни, бизнеса, инвестиций

Оставьте свои контакты — с вами свяжется руководитель отдела для презентации нужного вам объекта

Похожие объекты