Id 158043

Новая Москва, ул. Кувекинская / 1635 м²./ Продажа ПСН.

адрес деревня Кувекино

Многофункциональный
С отдельным входом
Склад

235 175 130 RUB | за все

(за 1 м2 — 143 838 RUB)

площадь 1 635.0 м2

QR код Qr код

Предлагается в продажу Новая Москва, ул. Кувекинская, 1635 м². Проект представляет собой современный мультиформатный комплекс класса А, созданный для размещения легких производств и логистики. Парк включает в себя 10 зданий, а его общая площадь составляет 340 тыс. кв. метров. Фасады зданий выполнены из трехслойных сэндвич-панелей поэтапной сборки. В придоковой зоне используются железобетонные конструкции. Полы представляют собой железобетонную плиту с антипылевым покрытием. Кровля утеплена минеральной ватой. Здания имеют большую площадь остекления с тонировкой стекол.Промышленный парк находится в поселении Десеновское, вблизи деревень Кувекино и Евсеево, в 16 км от МКАД. В непосредственной близости расположены города Троицк и Подольск. Отличную транспортную доступность обеспечивает удобный заезд на Калужское и Варшавское шоссе. Метро «Ольховая» в 30 минутах транспортом.


Технические характеристики:
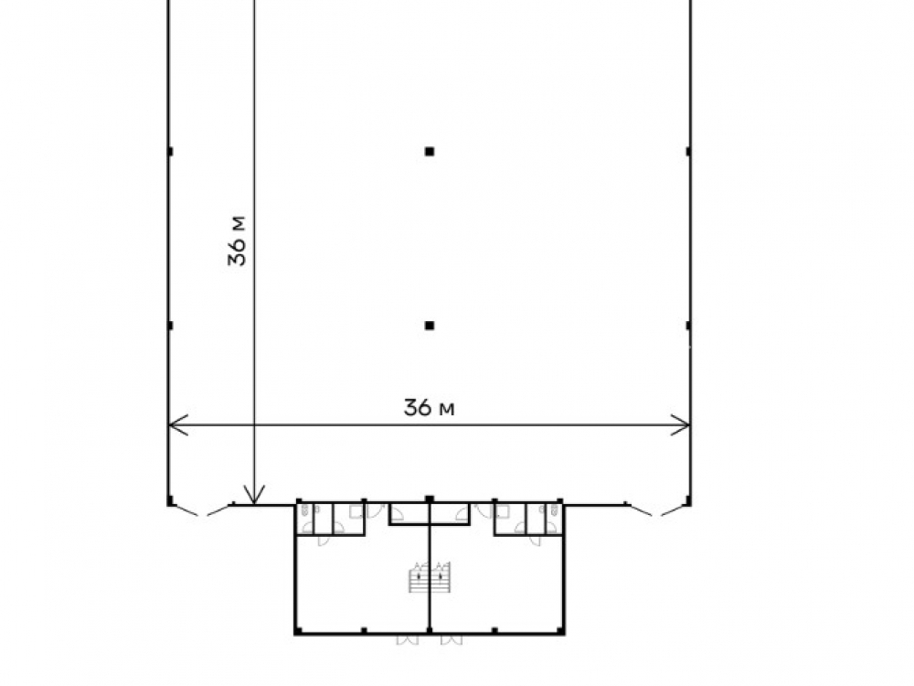
Площадь 1635 м²., располагается на 1 этаже, высота потолков 8 м., отделка чистовая, электрическая мощность 49.05 кВт.

Коммерческие условия:
Стоимость за все - 235 175 130 руб.
Стоимость за 1 кв.м. - 143 838 руб.

Технические характеристики

Тип здания: Многофункциональный,С отдельным входом,Склад

Общая площадь: 1635  м2

Этаж: 1

Всего этажей: 2

Электрическая мощность: -

Высота потолков: -

Парковка: -

Коммерческие условия

Цена за все: 235 175 130 RUB

ФОРМА ВЛАДЕНИЯ: -

карта

Расположение

Адрес: деревня Кувекино

Округ: Юго-Западный административный округ

Близость метро: Бунинская аллея

Транспортная доступность: -

Окружение

Торговое окружение: -

Адрес:

деревня Кувекино

Округ:

Юго-Западный административный округ

Близость метро:

Бунинская аллея

Транспортная доступность:

-

карта

Торговое окружение:

-

Общая площадь:

1635  м2

Этаж:

1

Всего этажей:

2

Тип:

Многофункциональный,С отдельным входом,Склад

Электрическая мощность:

-

Высота потолков:

-

Парковка:

-

ФОРМА ВЛАДЕНИЯ:

-

Цена за все:

235 175 130 RUB

Планировка

Шаклеина Юлия

Ваш брокер по работе с клиентами

Найдите лучшее место
для жизни, бизнеса, инвестиций

Оставьте свои контакты — с вами свяжется руководитель отдела для презентации нужного вам объекта

Похожие объекты