Id 160793

деревня Сапроново, ЖК 1-й Донской, 4 / Продажа / Помещение свободного назначения / 1464 кв. м.

адрес деревня Сапроново, ЖК 1-й Донской

Многофункциональный
С отдельным входом
Торговая
Новостройка

377 361 454 RUB | за все

(за 1 м2 — 257 761 RUB)

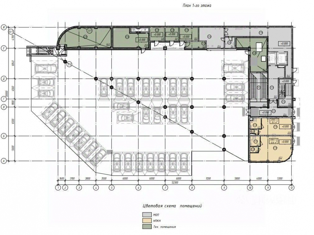
площадь 1 464.0 м2

QR код Qr код

Продажа отдельно стоящего двухэтажного здания, предназначенного для размещения торгового центра. Здание расположено в центральной части жилого комплекса "1-й Донской" — на первой линии домов, с собственной зоной входов/выходов. ЖК состоит из 5 высокоэтажных корпусов (23-25 этажа) и 3 600 квартир, будет проживать около 9 000 жителей. Первая очередь (корпуса 1 и 2) были сданы во 2 кв 2025г. Вторая очередь будет сдана в 3 кв 2026г. Ввод в эксплуатацию — 1 квартал 2027 года.

Рядом ЖК «Видный Берег», «Видный Берег 2», «Первый Квартал». Станция «Калинина(МЦД5)» - 15 минут пешком, м. Домодедовская - 20 минут на автомобиле.

Локация и трафик
ТЦ находится в густонаселенном районе с высокой плотностью жилой застройки. Комплекс формируется вокруг нового общественного центра, а само здание оказывается в точке естественного притяжения пешеходов и автомобилистов.
Транспортная доступность
15 минут пешком до станции "Калинина" (МЦД-5) — пассажиропоток линии обеспечивает дополнительный транзитный трафик.
20 минут на автомобиле от метро Домодедовская — удобный подъезд для гостей из соседних районов.

Коммерческие условия:
Стоимость: 377 361 454 рублей, включая НДС.
Стоимость за кв.м: 257 761 рублей.

Технические характеристики

Тип здания: Многофункциональный,С отдельным входом,Торговая,Новостройка

Общая площадь: 1464  м2

Этаж: 1

Всего этажей: 2

Электрическая мощность: по запросу

Высота потолков: по запросу

Парковка: Есть

Коммерческие условия

Цена за все: 377 361 454 RUB

ФОРМА ВЛАДЕНИЯ: ИП

карта

Расположение

Адрес: деревня Сапроново, ЖК 1-й Донской

Близость метро: Потапово

Транспортная доступность: «Калинина(МЦД5)» - 15 минут пешком, м. Домодедовская - 20 минут на автомобиле.

Окружение

Торговое окружение: Большое.

Адрес:

деревня Сапроново, ЖК 1-й Донской

Округ:

Близость метро:

Потапово

Транспортная доступность:

«Калинина(МЦД5)» - 15 минут пешком, м. Домодедовская - 20 минут на автомобиле.

карта

Торговое окружение:

Большое.

Общая площадь:

1464  м2

Этаж:

1

Всего этажей:

2

Тип:

Многофункциональный,С отдельным входом,Торговая,Новостройка

Электрическая мощность:

по запросу

Высота потолков:

по запросу

Парковка:

Есть

ФОРМА ВЛАДЕНИЯ:

ИП

Цена за все:

377 361 454 RUB

Планировка

Павел

Ваш брокер по работе с клиентами

Найдите лучшее место
для жизни, бизнеса, инвестиций

Оставьте свои контакты — с вами свяжется руководитель отдела для презентации нужного вам объекта

Похожие объекты