Id 158585

Москва, Рязанский проспект, 2/2 корпус 1, ЖК «Аквилон Beside» - 151.74 кв.м / Продажа ПСН

адрес Москва, Рязанский проспект, 2/2к1 (ЖК Аквилон Beside)

С отдельным входом
Торговая

47 214 166 RUB | за все

(за 1 м2 — 311 234 RUB)

площадь 151.7 м2

QR код Qr код

К продаже предлагается торговое помещение в монолитном 27и этажном ЖК «Аквилон Beside» 2024го года постройки по адресу: г. Москва, ЮВАО, Рязанский проспект, 2/2 корпус 1. Ближайшие станции метро: Нижегородская – 10 мин. пешком, Стахановская – 12 мин. пешком. «Аквилон Beside» — это два корпуса комфорт и бизнес-класса с эффектной индивидуальной архитектурой. Всего в комплексе 1356 квартир. ЖК «Аквилон Beside» 1356 квартир + ЖК «Среда» - 2569 квартир.

Технические характеристики:
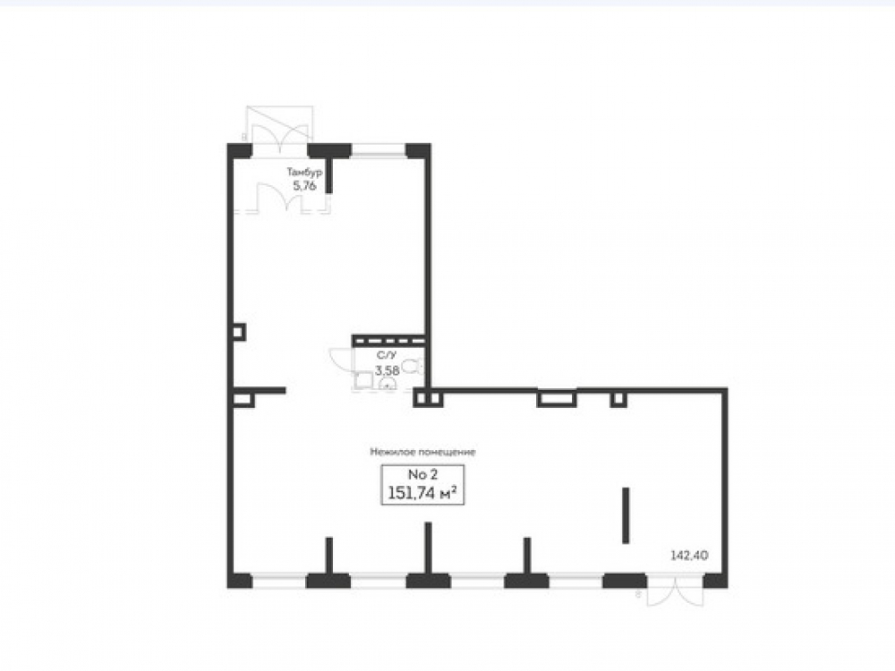
Общая площадь помещения – 151.74 кв. м. 1 этаж.
2 отдельных входа.
Панорамные витринные окна.
Высота потолков – 4 м.
Электрическая мощность – 35 кВт.

Коммерческие условия:
Стоимость объекта – 47 214 166 рублей.
Стоимость за 1 кв. м. – 311 152 рублей.
Продажа через уступку права требования (ООО на УСН)

Технические характеристики

Тип здания: С отдельным входом,Торговая

Общая площадь: 151.7  м2

Этаж: 1

Всего этажей: 27

Электрическая мощность: 35 квт

Высота потолков: 3.7м

Парковка: открытая, общая

Коммерческие условия

Цена за все: 47 214 166 RUB

ФОРМА ВЛАДЕНИЯ: переуступка

карта

Расположение

Адрес: Москва, Рязанский проспект, 2/2к1 (ЖК Аквилон Beside)

Округ: Юго-Восточный административный округ

Близость метро: Нижегородская,Стахановская

Транспортная доступность: Ближайшие станции метро: Нижегородская – 10 мин. пешком, Стахановская – 12 мин. пешком.

Окружение

Торговое окружение: барбершоп FIDEL, салон красоты Vista Style, магазин продуктов ФрешФрост, кофейня Кофейная Среда, бар Среда Обитания, алкомаркет Wine Republic, ногтевая студия Саванна Light, аптека Горздрав, парикмахерская Studio25, пункт выдачи Ozon, вейп-шоп Вдох-выдох.

Адрес:

Москва, Рязанский проспект, 2/2к1 (ЖК Аквилон Beside)

Округ:

Юго-Восточный административный округ

Близость метро:

Нижегородская,Стахановская

Транспортная доступность:

Ближайшие станции метро: Нижегородская – 10 мин. пешком, Стахановская – 12 мин. пешком.

карта

Торговое окружение:

барбершоп FIDEL, салон красоты Vista Style, магазин продуктов ФрешФрост, кофейня Кофейная Среда, бар Среда Обитания, алкомаркет Wine Republic, ногтевая студия Саванна Light, аптека Горздрав, парикмахерская Studio25, пункт выдачи Ozon, вейп-шоп Вдох-выдох.

Общая площадь:

151.7  м2

Этаж:

1

Всего этажей:

27

Тип:

С отдельным входом,Торговая

Электрическая мощность:

35 квт

Высота потолков:

3.7м

Парковка:

открытая, общая

ФОРМА ВЛАДЕНИЯ:

переуступка

Цена за все:

47 214 166 RUB

Планировка

Никифоров Андрей

Ваш брокер по работе с клиентами

Найдите лучшее место
для жизни, бизнеса, инвестиций

Оставьте свои контакты — с вами свяжется руководитель отдела для презентации нужного вам объекта

Похожие объекты